概念 项目空间概念生发于场地内:在这样一种令人兴奋的建造过程中通过更加现代但不同凡响的设计方式创作一首献给孤独的赞美诗。空间被认为是这个概念最简洁的表达方式,其中形式与空间并非主导,完美的融合与凝聚力共同导向了建筑的复杂性。为使人感受到空间内存在与虚无合一的微妙境界,项目以优雅映衬空阔。此处空间并非静止,它将随热烈奔放的情感而浮动,形式则仅是空间共鸣的产物。
建筑 项目位于目前较隐蔽的定居点,少有嘈杂,是为远离喧嚣城市生活的绝佳隐世之所。
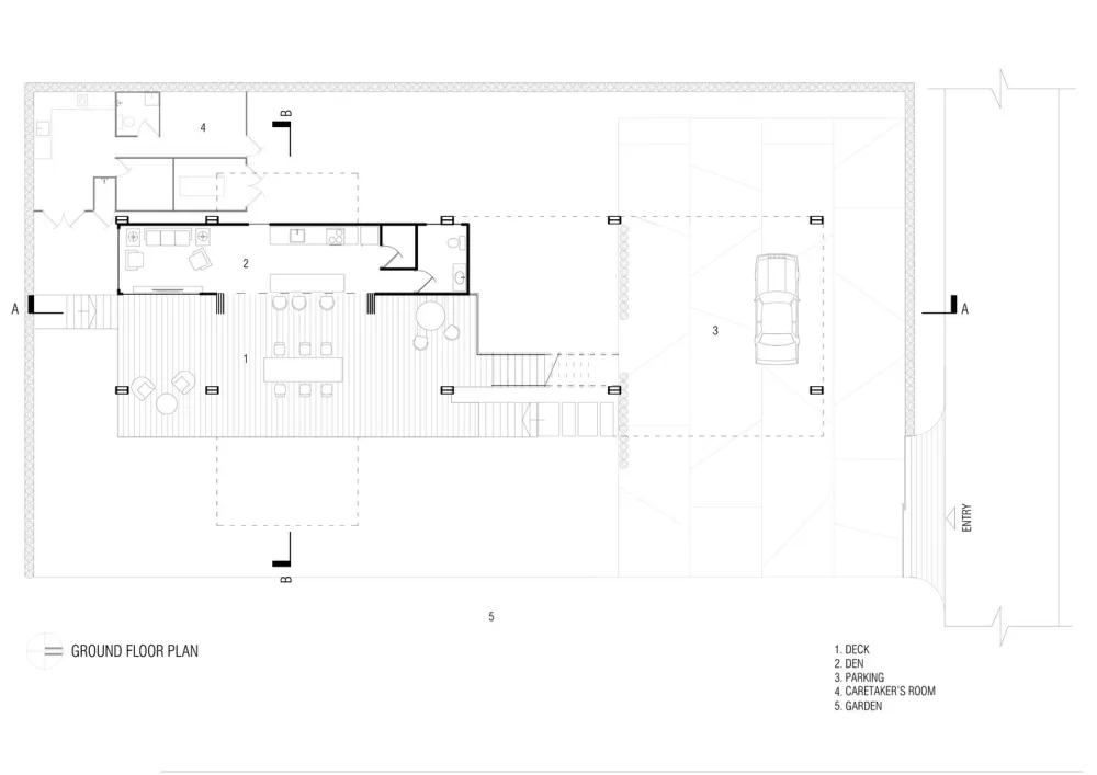
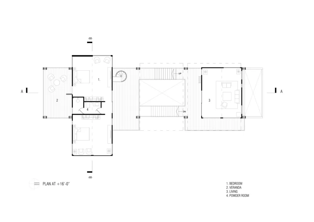
建筑钢结构骨架与四个集装箱融合,体现出别具特色的装饰感。其中最长部分由两个集装箱拼接而成作为卧室使用。集装箱所展现的粗野浪漫主义被项目建筑师欣然采纳并将场地改造成了超现实完美居所。

三层通高中庭内栽植的杏树与上方悬垂而下的绿藤让步入此处的人们体会到遗世独立的美感。在未来顶部轻盈的葡萄藤将会长成一片绿色天鹅绒般柔软的帘幕。集装箱顶部植入的绿色植物将作为缓冲层减少热量渗透。
项目技术 型钢框架结构将集装箱优雅环抱其中。框架部分各自独立建造以作为独立系统使其适用于基础设施建造。为进行最后一步改建并使其适于居住,我们将集装箱精准安放至所需水准后对立面进行了一系列切割、破孔以及连接处理来避免其脆弱性。
集装箱粗犷的外表经由一系列建筑细节糅合呈现出一种戏剧性的轻盈感。建筑的悬挑平台、纵横交错的楼梯以及集装箱多角度布局使得整个项目极具视觉冲击力。

材料 项目中最不同凡响的材料是集装箱,选择其作为材料的重要性暗含于对再利用的考虑内,并由此开启了可持续性设计第一步。材料库中的大部分都可被再利用。
限制与对策 除结构改造外,集装箱内部空间如何转化为舒适居留地这一复杂步骤是本质性难题。外表冰冷而毫无魅力的集装箱需被转化为理想舒适的建筑形式。所以在内部我们有意识地进行分裂切割以增加空间体量,此外每个独立集装箱比例都被详细考量以建立内外空间的对话。裸露钢框架结构塑造出无形墙体,与可见的集装箱互成对照。
景观细节 显然景观被尽可能留有空余以将注意力转移到对建筑的欣赏上,空阔的前院附着并修饰着整体结构,为这座郊区住宅打造出一片完美秘境。
















建筑师 : Kazi Fida Islam, Md. Abdul Awyal, Sumaiya Shameem, Mousumi Kabir, Irtefa Iradat, Abid Khan 地址 : Dhaka, 孟加拉 建筑面积 : 134.0 m2 项目年份 : 2017 摄影师 : Maruf Raihan, Hasan Saifuddin Chandan, Snahasis Saha
版权声明:本文内容由用户自行发布上传或投稿由设计芝士代为发布,版权归原作者所有,设计芝士不拥有其著作权,亦不承担相应法律责任。如果您发现本站中有涉嫌抄袭或侵权的内容,请点此提交工单进行举报,一经查实,本站将立刻删除涉嫌侵权内容。

