捕捉光的温度:本项目位于太原长兴路,华润万象城西门入口处,总面积160m²,平面呈直角三角形,沿街面为长达20米,高5.5米的落地玻璃窗。过于通透的立面剥夺空间围合感,不利于塑造舒适的空间氛围,如何平衡开放与私密,在吸引顾客目光的同时,降低三角形空间带来的侵略感,是此次设计中的重难点。
透过金属,捕捉光的温度 | Using the metal; Catching the light; Gaining the warmth 餐厅外立面通透,且朝向西北,光照条件十分优渥,但光没有实质,其变化也是不易察觉且稍纵即逝的,为了增强光的存在感,我们采用了大面积的金属折板。光赋予金属渐变的色泽,而变幻着的颜色则为我们标记着光的脚步。
午前,空间主色调是吧台处金属折板的蓝色,午后,空间主色调则变为暖暖的金色。
穿针引线 | Acting as a go-between 餐厅平面上呈现为三角形,沿街面过于通透,因此我们将座位区聚集在一侧,依托原始的结构柱来构建围合感,塑造相对私密的空间氛围。我们在每个直角转折处都加入了拱形元素,形成延续感,并引入线形的长条灯打破厚实的体块,赋予空间通透感。
拱形的加入使厚重的结构柱变为通透的“门”,半圆形的镜子与金属组成无限延伸的“通道”









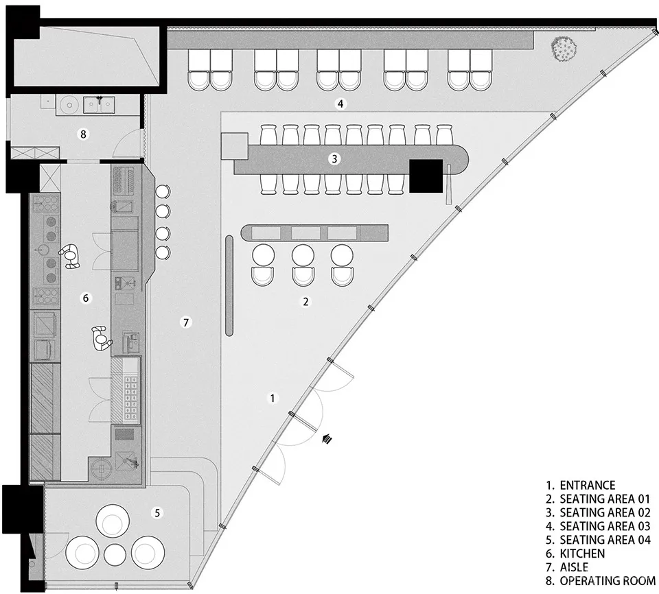
平面图
室内立面图
轴测图
设计机构:武汉朴开十向设计事务所 网站:www.puresdesign.com 邮箱:puresdesign@126.com 空间设计师:熊天宇 张筱锴 设计执行:陆宏达 项目地址:太原市万柏林区华润万象城L153 项目面积:160平米 完工时间:2018.10 编辑:冯程程 摄影:张筱锴 材料:水磨石,不锈钢
版权声明:本文内容由用户自行发布上传或投稿由设计芝士代为发布,版权归原作者所有,设计芝士不拥有其著作权,亦不承担相应法律责任。如果您发现本站中有涉嫌抄袭或侵权的内容,请点此提交工单进行举报,一经查实,本站将立刻删除涉嫌侵权内容。

