咖啡厅的主人希望这是一个能让繁忙人群小憩和停留的地方。因而我们倾向创造一个纯粹、安静的场景,避免过度渲染繁复和嘈杂的空间氛围。




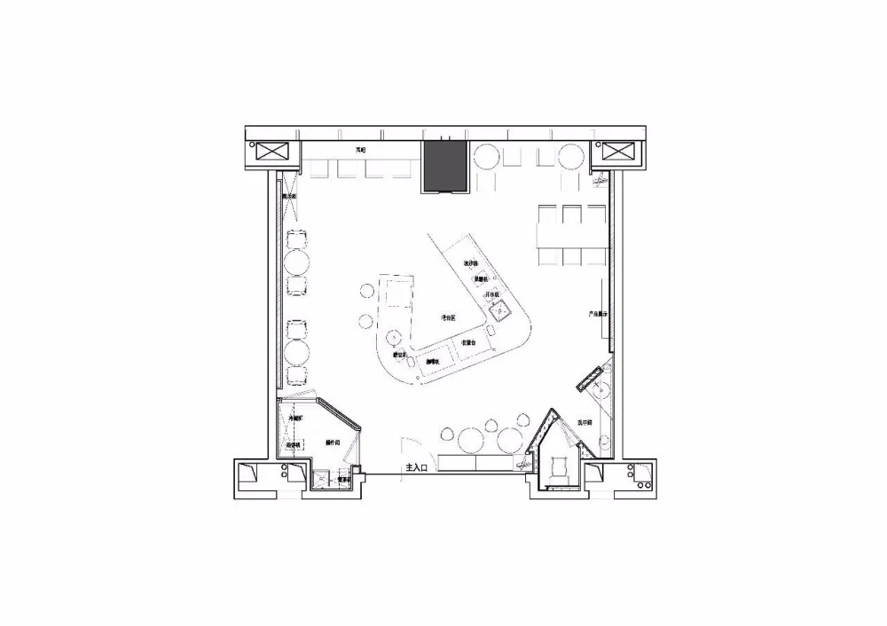
这个项目所在空间是一个立方体,犹如一个盒子,简单明了。朦胧的玻璃门推开,别具用心的弧线多边形吧台和吊顶置于正中央,让人第一眼就被牢牢吸引住。


弧线的多边形吧台打破了四边方正的格局,让行走动线环绕中心,旋转流淌了起来;吧台每一条斜边都和四周墙壁形成一种柔和的对抗,又于无形中划分出了几个不同的功能区块。每个区域都呈现出不同的私密性和景致,给人提供了多种意境的选择。


相同造型的上空吊顶,人们能从其中那些异形又深邃的孔洞中看到折射的空间一角,像是无意间发现的隐秘世界;地面白色灰色的弧形间隔晕染开,犹如水面的波澜。置身其中,能感受到空间中直角与弧度之间的优雅交错。

灵动的体块关系和光影,让一种自在自如的情绪徜徉于空间之中。











项目名称:E² CAFE 项目地点:深圳宝安区创业二路华联全景国际G1205 项目面积:65㎡ 完工时间:2018年10月 设计公司:埂上设计事务所 主创设计:李良超 文志刚 黄元满 专案设计:向维方 杜凯 摄影团队:黄缅贵
版权声明:本文内容由用户自行发布上传或投稿由设计芝士代为发布,版权归原作者所有,设计芝士不拥有其著作权,亦不承担相应法律责任。如果您发现本站中有涉嫌抄袭或侵权的内容,请点此提交工单进行举报,一经查实,本站将立刻删除涉嫌侵权内容。


很棒的学习资料