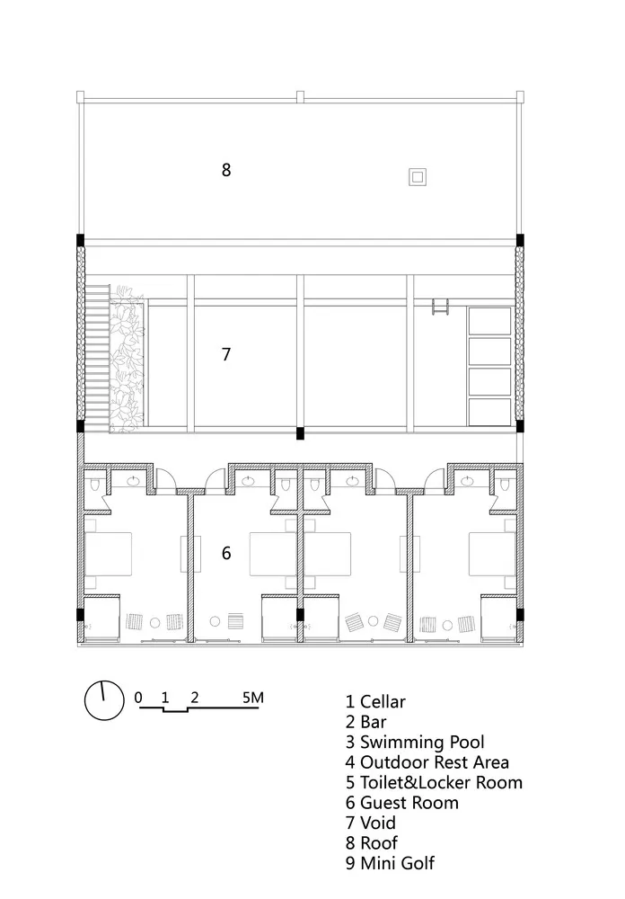
宿里三号度假酒店位于莫干山山谷地带一处废弃厂房的基地上,面积约580m2,内含酒吧、泳池、客房及游乐设施。建筑采用普适、经济的钢筋混凝土框架结构,较大的柱跨将其与当地民居的结构尺度区分开来,带有“外来的”、“城市的”特征。框架结构具有的空间划分的灵活性,可应对未来功能与使用年限过后土地性质的变化。
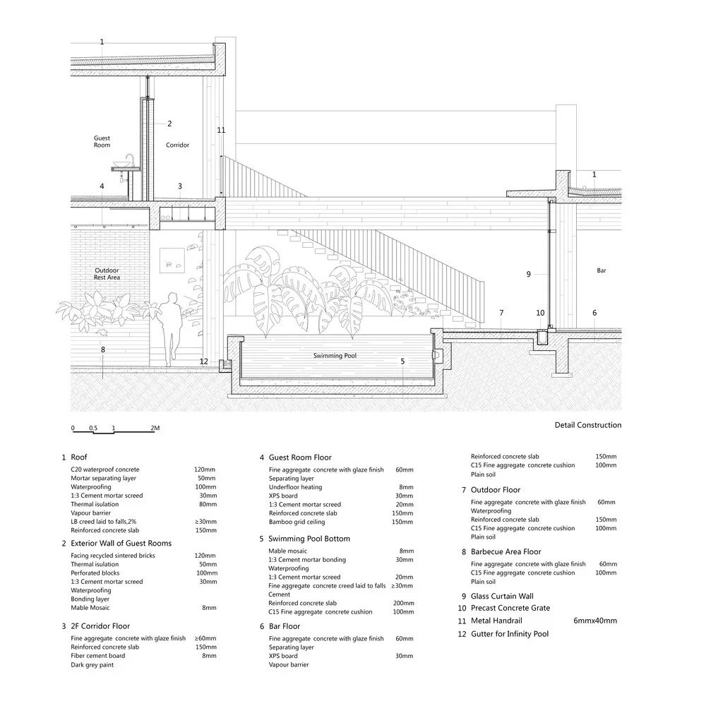
建造以经济性为前提,结合工匠与工业化的建造方式,对普通建材进行组合和重构,营造自然、适当的建筑氛围,体现具有地方特征的当代性。现浇混凝土框架松木模板的错缝拼接与修长的尺寸划分,同作为填充的毛石墙、清水砖墙的编织纹理相呼应,使不同属性的建造实体具有一致的表面特征,建筑物由此获得一种整体感。
热工舒适性与建筑艺术性在设计中并非处处等量齐观,而是有针对性地处理具体问题。在客房外墙使用“回收烧结砖—XPS保温板—多孔砖(由外至内)”的双层夹心保温墙构造,确保居住空间的舒适度;对经常有人穿越的酒吧,则弱化建筑对热工性能的苛求,强化穿透内外的结构元素——梁,以获得富有张力的空间效果。
与世俗社会通过某种“建筑风格”和“装修样式”,体现生活品质与社会地位不同,宿里呈现出的建筑基本状态与不菲的房价挑战了当地居民的固有观念。建筑师通过实验性的建筑实践,意图引发社会对“美丽乡村建设”方式的思考。























建筑师 : Atelier XÜK 地址 : 莫干山,湖州,浙江,中国 主创建筑师 : Xu Zhang, Kenan Liu 设计团队: Wenliang Sun, Yifei Xu 建筑面积 : 580.0 m2 项目年份 : 2017 摄影师 : Lei Zhu, Yifei Xu, Qing Zhou, Xu Zhang, 陈颢
版权声明:本文内容由用户自行发布上传或投稿由设计芝士代为发布,版权归原作者所有,设计芝士不拥有其著作权,亦不承担相应法律责任。如果您发现本站中有涉嫌抄袭或侵权的内容,请点此提交工单进行举报,一经查实,本站将立刻删除涉嫌侵权内容。


真不错,希望多一些这样的改造案例,