在孟加拉国达卡一个僻静的郊区,建筑公司river & rain将四个集装箱的部分改造成一幢三层的住宅,并起名escape den。它由钢架骨架和回收的容器组成,房子由一系列的大开口、露台和大量的户外空间组成,给人一种轻盈、精致的感觉。
architecture firm river & rain has repurposed parts of four shipping containers into escape den, a three-storyresidence in a quiet, secluded suburb of dhaka, bangladesh. comprised of a steel frame skeleton and the recycled containers, the house is completed with a series of large openings, terraces, and plenty of outdoor space that attribute a lightweight, refined feel to its otherwise bulky appearance.
在达卡的bashundhara住宅区内,river &rain的房子孤零零地矗立在一大片土地上,让人想起了乡村浪漫主义。当地的建筑工作室开发了这个设计,住宅上有着较大的窗口和反光的材质表面,在室内可以充分利用早晨的光线,而在晚上则可以发出暗淡的光线。
evoking a rustic romanticism, river &rain‘s house stands solitary on a large piece of land in dhaka’s bashundhara residential area. the local architecture studio has developed the design with large openings and reflective surfaces, which allow the interior to make the most of the morning light and emit a dim glow at night.
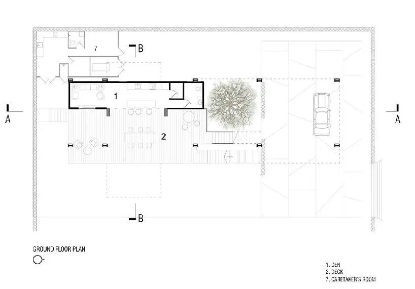
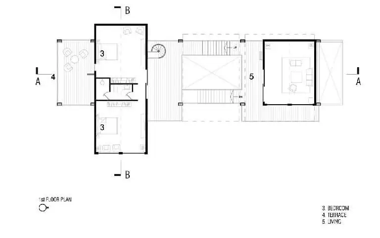
escape den包含了一层的厨房和用餐区,而起居室和卧室则位于二层。三个容器通过一组楼梯连接,楼梯也连接着房子的各种平台和露台。
escape den contains the kitchen and dinning area on the ground floor, while the living room and bedrooms are situated on the two upper levels. the three containers are connected via a set of stairs which also connects the house’s various decks and terraces.
完整项目信息
项目名称:Container housing design
项目位置:达卡, 孟加拉国
项目类型:建筑改造/住宅设计
使用材料:集装箱
设计公司:river & rain
设计团队:kazi fida islam, md abdul awyal, sumaiya shameem, mousumi kabir, irtefa iradat, abid khan
摄影:river & rain
本文内容来源于:Loft中国




















