落差巨大的家
A House with Huge Differences
我们建造的物质环境 既是物质现象又是社会现象
The physical environment we build is both a material phenomenon and a social phenomenon

改造前Before transformation
业主为了给孩子更好的教育,选择三十年房龄的学区房
70M²的户型,其中20M²户外庭院,50M²室内面积
In order to provide children with better education, the owner chooses a school district house which has been built for 30 years.This house covers an area of 70M2, including 20M2 of outdoor courtyard and 50M2 of indoor area.



业主是一个二胎家庭
一家六口从优越的130M²搬到不足70m²的老房子
通风性差,潮湿又阴暗,隔音差
一家六口共用一平方的洗手间
由于房子的隔音差
严重影响一家人的休息 睡眠 生活
The owner has two children
This six-people family moved from a house of 130M2 to an old house of less than 70m2
Poor ventilation, damp and dark, poor sound insulation
A family of six sharing a one-square bathroom
The poor sound insulation of the house
Seriously affects the rest, sleep and life of the family

改造核心六难题
空间布局不合理
三世同堂居住空间小
室内采光极差、通风不佳
收纳空间不足
一楼地面潮湿
老工房隔音效果差
Six core difficulties of transformation
Unreasonable space layout
Small living space for three generations
Poor indoor lighting, poor ventilation
Insufficient storage space
Wet floor on the first floor
Old workshop has poor sound insulation
设计手稿
Design manuscript

每一步都要在仅存的空间里找到最好的平衡点
为委托人保留美学的同时也拥有同样的功能性
Every step requires the best balance point in the remaining space
Provide the functionality while preserving aesthetics for the client
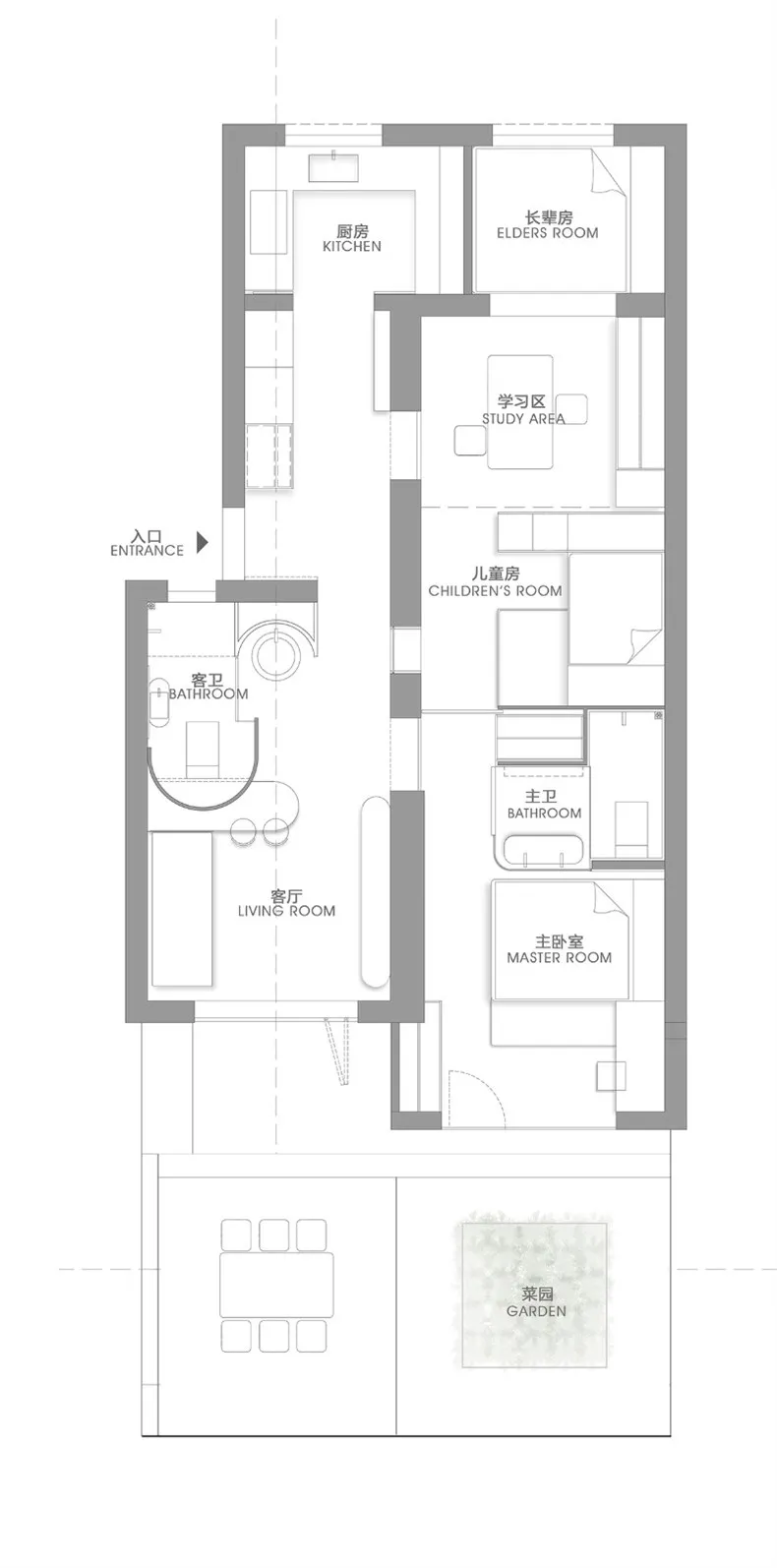
01 平面规划
01 Plane Planning
原本已经不大的房子被厚厚的承重墙一分为二
The small house is divided by the thick load-bearing wall

将南北面的老旧小窗替换成整面的大玻璃窗
打开南北对流通风系统
让阳光进入
Replace the old small window on the north and south sides with a large glass window
Open the north-south convection ventilation system
Let the sunlight in

我们把业主的愿望清单 假设成一个个方形模块
We assume the owner’s wish list as square modules
利用承重墙的分隔把功能分为 动 静 分区
动区:玄关 厨房 客厅 餐厅 洗手间
静区:老人房 儿童房 主人房 洗手间
Use the load-bearing wall to divide the house into activity area and quiet area
Activity area: entryway, kitchen, living room, dining room, washroom
Quiet area: elderly room, children’s room, main room, washroom





空间与空间中动线连接, 面积复合使用
Connect the space with the moving line, composite use of the area
改造后(平面图)
▼
在施工过程中
发现楼层底下有60CM的30年积水
这导致一楼潮湿、滋生霉虫、臭气积蓄
大 难 题 !
必须停工 寻求解决根源方案
During the construction process
It is found that there is a standing water with a depth of 60CM for 30 years under the floor
This makes the first floor wet and breeds mold and odor
A big problem !
It is necessary to stop working and seek solutions to the root cause


▲第一步
打开房屋地板
把整栋排楼底部积压30年积水抽出
▲Step 1
Open the floor of the house
Pump the 30-year standing water under the entire building
第二步
用专业烘干灯底部烘一周
Step 2
Bake the bottom with a professional drying lamp for a week
第三步
底部烘干后做封闭防水层
彻底解决潮湿问题
Step 3
Make a sealed waterproof layer after drying the bottom
Solve the problem of humidity completely
02 移门系统
02 Sliding door system

通过这个移门,可以增加空间的尺度,同时产生环形路线,令小朋友既安全又无忧无虑的玩耍、活动。
Through this sliding door, you can increase the scale of the space and create a circular route to make the children play safe and carefree.



▲通过弧形线条把空间的锐角消除,把角落的空间释放出来
我们不单纯是设计“童趣”,更多的是创造环境,让小朋友的成长以及追寻其生活轨迹,在安全环境中学习成长,来实现一个可持续的成长教育,需协助他们形成自身的生活轨迹,书柜上的“洞口”也成为连接父母及孩子的一个窗口。儿童了解里面和外面,必须进去、出来。
We are not simply designing “children’s interest”, but more about creating the environment, letting children grow up and pursue their life trajectories, learning and growing up in a safe environment, to achieve a sustainable growth education, and to help them form their own life traces, and the “hole” on the bookcase also becomes a window to connect parents and children.Children understand the inside and outside, and must go in and come out.
03 灯光系统
03 Lighting system
自然采光之外,设计一套智能化调光系统,保护儿童视力健康
在客厅区与学习区智能的调光系统
聚会模式
学习模式
用餐模式
休闲模式
In addition to natural lighting, design a set of intelligent dimming system to protect children’s vision health
Intelligent dimming system in the living room area and study area
Party mode
Learning mode
Dining mode
Leisure mode

04 收纳系统
04 Storage system


设计六大收纳系统
玄关收纳
客厅收纳
厨房收纳
冰箱收纳
衣物收纳
书物收纳
17M³体积 = 500个20寸的行李箱
Design six major storage systems
Entrance storage
Living room storage
Kitchen storage
Refrigerator storage
Clothing storage
Book storage
17M³ volume = 500 20-inch suitcases





可变家具之学习桌/餐桌
客厅一旁的的餐桌桌脚安装了定向轮
可轻松挪动承担一部分的就餐功能
亦可满足往日父母工作、小朋友绘画学习之用
设计依然考虑了多人正式就餐的需求
Variable furniture study – table/dining table
The directional wheel is mounted on the table legs at the side of the living room
It can be easy to move and perform part of the dining function
It can also be used for parents and children to do daily work and to paint and study respectively
The design still considers the need of formal dining for multiple people






客厅及主卧各有一个洗手间,保证干湿分区以防滑倒,地面也铺设了防滑瓷砖
There is a washroom in the living room and master bedroom respectively, ensuring that the wet and dry areas are separated to prevent from slipping down, and the floor is also laid with non-slip tiles.

内厨房被设计成U型,操作仅仅需要一个转身。可同时容纳三人,瓶瓶罐罐亦有特定的放置空间
The inner kitchen is designed to be U-shaped and operation only needs one turn. It can accommodate three people at the same time, and tins and bottles can also be stored in a specific space.
生活有很多的繁忙和各种因素
打乱了对一切美好的期望
通过对家的合理改造
找到生活的本质
房子换了≠生活的品质换
Life has a lot of busyness and various factors
To disorganize all the good expectations
Through reasonable transformation of the house
You’ll find the nature of life
The house has changed ≠ The quality of life has changed




▼哥哥回家后第一张画

孩子在自由当中找到规则
拥有自己的时间和空间
生命才会很完整的成长
Children find rules in freedom
Have their own time and space
And they will grow very well in their life
作品名称:落差巨大的家
所属类别:住宅
公益主办:东方卫视《梦想改造家》
设计单位:PONE ACHITECTURE
施工单位:义庭建筑装饰工程有限公司
特别参与:何思玮
项目总控:梁穗明 邓江蜜
主笔设计:梁穗明
执行设计:梁 颖
设计团队:梁 颖 邓江蜜 汪 博 江键韵 洪俊能 陈 辉
助理设计:陈晓鸣 陈炜婷 黄培琪 黄伟森 符振星 彭仁才 殴浩飞 王奕茂
行政执行:邓平好 马小乔 刘亚平
推广文案:梁嘉茜 吴佳音
项目摄影:恩万建筑影像
案例面积:70㎡
设计时间:2018年5月
建成时间:2018年9月
建成地点:杭州
本文内容来源于:设计腕儿

