由建筑师提供的文本描述。Nicha在土家族方言中是“你好”的意思,是Atelier A最新项目的名称,这是一家土家族美食餐厅。其自然质朴的装饰特色是土家族的民族风格和艺术传统。
餐厅位于北京大栅栏六里场街和杨梅竹榭街的不起眼的交汇处。通过突出原建筑的红砖,建筑师设法使它在该地区的灰色建筑中引人注目,但又不突兀。
红砖在这栋建筑中被广泛使用,包括立面、墙壁和地板。为了保持原来的风貌,大多数旧砖被保存了下来。只添加了几个新的。这些额外的砖块不是新造的,而是回收利用的,从上海的老建筑中拆除,然后一路运到北京。它们的质量和颜色都与原砖相同,而原砖在北京是找不到的。额外的砖的痕迹是故意留下裸露,按照真正的和不受影响的风格工作室A。
立面被重建成空心的拼花图案,在白天冲淡了直射的阳光,在晚上创造出一种神秘的效果。入口的钢隔断向内移动了一米,在室内和繁忙的街道之间留下一个过渡,这样里面的顾客就不必直接面对行人,那些等待进入的人可以有地方站着。
热轧钢材的氧化表面自然呈深灰色,用于楼梯和框架。城墙上的红砖被保存了下来。墙体上部采用暖灰色灰泥,覆盖电缆痕迹,使空间明亮。
室内装饰的主要语言是由线条构成的。自然凿刻的线条与灯光轨迹和气泡灯的曲线相对应。墙上挂着土家族妇女的画像,由建筑师本人用抽象的线条描绘,代表土家族的传统服饰和头饰。
土家族的另一个艺术特色是锡兰卡布,一种传统而独特的织锦工艺品。锡兰卡布挂毯由当地工匠制作,颜色和图案各异,以适应房间的不同主题。
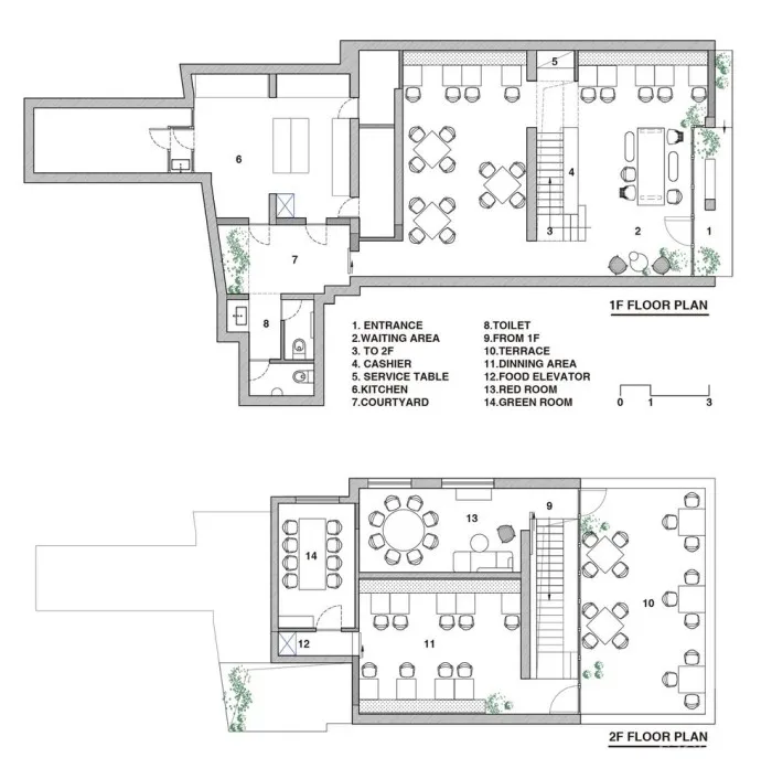
保留了二层原有的布局,分为一个大的包间、一个小包间和一个公共用餐区。两个房间分别用绿色的瓷砖和红色的瓷砖按照各自的主题进行装饰。
露台的地面也铺有红砖,以配合其胸墙。墙壁周围安装的气泡灯呼应了室内线条的主题。顾客可以在楼下远眺大栅栏,也可以欣赏到繁华的杨梅竹榭街。
Architects Atelier A
Location Yangmeizhuxie Street, Beijing, China
Category Restaurant
Project Architect Yanwen (Lily) Zhu
Design Team Byungmin Jeon, Zeng Bo
Area 235.0 m2
Project Year 2019
Photographs Byungmin Jeon

