© Germán Cabo
(Germán Cabo)
架构师提供的文本描述。这个独特的私人“阁楼”坐落在马尔瓦罗萨海滩附近,在巴伦西亚市独特的“卡巴尼亚”附近。原始人的房子对顶层的一种非常常见类型的城镇房屋之间的聚会墙。它是从这条街通过狭窄的楼梯进入的。地势的深度要求有一个小庭院照明和通风的中间房间;另一方面,厨房和“厕所”作为附属部分占据后立面,并通过一个已经关闭的古老露台连接起来;最后,整个屋顶都是一块石膏天花板,掩盖了陡峭山墙的实际体积。
Text description provided by the architects. This peculiar and personal “loft” is located near Malvarrosa Beach, in the distinctive neighborhood of “El Cabañal” at Valencia City. The Origin house responded to the top floor of a very common type of town house between party walls. It’s accessed from the Street through a narrow staircase. The depth of plot required the existence of intermediate rooms that were illuminated and ventilated by a small courtyard; on the other hand, the kitchen and the “toilet” occupied the rear façade as attached parts, and connected through an ancient terrace that had been closed; Finally, throughout the house roof was a ceiling of plaster that hid the actual volume of the steep cover Gable.
© Germán Cabo
(Germán Cabo)
根据一个基本需要的程序,需要有一个单一的房间和一个露台,这个项目出现作为一个“阁楼”,其中唯一的封闭部分是浴缸。通过这种方式,原始卷将被放入预期值:所有内部分区都会被删除,以创建一个唯一的空间,在这里一切都会发生。
Based on a program of basic needs that requires the existence of a single room and a terrace, the project arises as a “loft” in which the only closed part is the bath. In this way, the original volume is put in prospective value: all the interior partitions are deleted to create a unique space where everything happens.
© Germán Cabo
(Germán Cabo)
因此,基本工作的基础是移除和选择留下的东西。我们只添加了一个小小的“平台”,它似乎漂浮在空间的中间,在实质上与其他原始的建设性元素形成了鲜明的对比。
The fundamental work was based, therefore, on removing and choosing what is going to stay. We only added a slight ‘platform’ that seems to float in the middle of space and contrasts in materiality with the rest of the original constructive elements.
某些元素被保存下来,并被揭露出来,甚至用另一种效用来“重新解释”,因此,房子对话的过去和未来平静地:
Certain elements were pserved and brought to light, or even “reinterpted” with another utility, so the past and the future of the house dialogue calmly:
-前墙和后壁留在原来的砖墙中,整个木梁屋顶被清理和修复。
-The anterior and posterior walls were left in the original brick wall, and the entire roof of wood beams was cleaned and restored.
© Germán Cabo
(Germán Cabo)
-旧的天花板线是通过各种资源在空间中绘制的:通过一些轻微的体积变化,保持原来石膏层的高度-哦,柱子,并保留支撑它的两根主梁。
-The old ceiling line was drawn in the space through various resources: with a few light volumetric changes, remaining the height of the original plaster cladding oh the pillars, and retaining the two main beams that supported it.
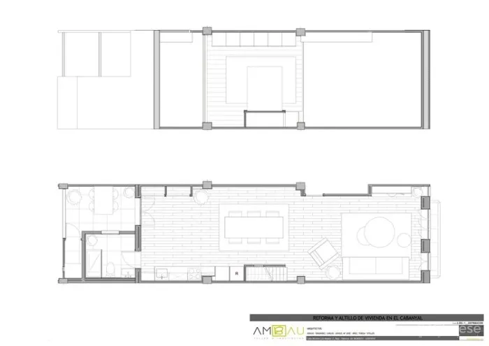
Floor Plan
-这个保存下来的木结构成为了卧室阁楼的空间限制,也被用作新栏杆玻璃的一部分。
-This pserved wood substructure became the space limit of the attic which is the bedroom, as well as used as part of the new railing glass.
© Germán Cabo
(Germán Cabo)
-这个狭小的庭院变成了一个天窗,照亮了房子的中心。一扇古老的窗户作为装饰件被保存下来,当时给餐厅带来了光明。
-The small and narrow courtyard became a skylight which illuminates the heart of the House. An old window was pserved as a decorative piece, at the time that brought light to the dining area.
© Germán Cabo
(Germán Cabo)
-这个古老的木制品被修复并涂成白色,以给空间带来更多的光。一个旧的橱柜成了一个关键的东西,作为一个架子,衣柜,储藏室和仓库。
-The ancient woodwork was restored and painted in white to bring more light into the space. An old cupboard became a key piece that serves as a shelf, wardrobe, pantry and warehouse.
© Germán Cabo
(Germán Cabo)
-位于其中一堵墙上的新的直线厨房是以灰色色调设计的,它突出了两卷,与现代和干净的图像结合在一起,远离了其他保存下来的木制品的纹理、颜色和形状。
-The new linear kitchen which was situated in one of the walls was designed by contrast in gray tones that highlights two volumes twinned with a modern and clean image which moves away from the textures, colors and shapes of the rest of pserved woodwork.
© Germán Cabo
(Germán Cabo)
-在浴室中使用了类似的方法:灰色的体积和平原与旧的修复后的窗户的质感墙相反。
-In the bath a similar method was used: gray volumes and plains are opposed to the textured wall of the old restored window.
Architects AMBAU TALLER D’ARQUITECTES
Location Camí del Cabanyal, València, Valencia, Spain
Category Renovation
Area 73.0 sqm
Project Year 2015
Manufacturers Loading…

