△ 木头展示墙 摄影:雷坛坛
B.L.U.E.建筑设计事务所
建成时间 2020年11月
总建筑面积 225平方米
项目是继北京国子监失物招领店铺后,我们与业主品牌的第二次合作——位于杭州文化地标天目里的生活提案店。杭州天目里是由建筑师伦佐·皮亚诺设计的集办公、艺术空间、商业、秀场、设计酒店等功能于一体的综合性园区。失物招领作为一个生活家居品牌,除家具以外,也提供包括手工陶艺、植物、居家器物、织品等生活用品。
△ 从建筑外望向店面 摄影:雷坛坛
△ 门店入口 摄影:雷坛坛
此次设计中我们延续了家的概念,同时也呼应了业主品牌“惜物”的生活方式。空间设计围绕自然肌理与手工工艺的核心展开,在天目里这样一个现代感的艺术园区里,呈现“家”的样貌和内涵。
△ 店面轴测示意图 ©B.L.U.E.建筑事务所
△ 从入口走向活动分享空间 摄影:雷坛坛
△ 展示区与活动分享区 摄影:雷坛坛
△ 台阶材质细节 摄影:雷坛坛
店铺空间主要分为几组家具展示区和一个活动分享区。展示区由三个水洗石小盒子组成,划分出不同生活场景——客厅、餐厅、卧室。高低错落的墙面形成半围合半开放的小空间,赋予原本单一的空间更丰富的延展方式,给客人创造一种探索性的动线,像在街巷中一般,一边寻找一边发现。水洗石墙面粗粝的自然肌理,也给人一种温润的感受。
△ 展示区轴测示意图 ©B.L.U.E.建筑事务所
△ 展示区 摄影:雷坛坛
穿过展示区,是进行活动和展览的分享空间,这里的空间形态是一个开敞的小木屋,收银台和试衣间也集中分布在木屋的一侧。它的灵感来源于茶园边上的小房子——踏上一级青石板,人们聚集在一个大的坡屋顶下面,虽然是在室内场所,却营造出一种在大自然中,人们在屋檐下休息的惬意生活场景。
△ 活动分享区轴测示意图 ©B.L.U.E.建筑事务所
△ 活动分享区 摄影:雷坛坛
我们为分享空间的小房子设计了没有玻璃的木框推拉门,在视觉上轻盈地把家具展示区和分享空间分隔开来。房子的顶、地面和墙面使用业主品牌中家具常用的五种木材(榉木、胡桃木、白橡木、樱桃木、白蜡木)进行搭配拼接。小房子的推拉门及店铺入口的平开门等细节设计,也同样使用了这五种木材做混合搭配。对于木材的处理,我们在最大程度上减少人工的修饰加工,以呈现出木材最为天然真实的质感。
△ 活动分享区 摄影:雷坛坛
店铺的另一处亮点是进门一侧的木头展示墙。整个展示墙不仅是店内视觉的焦点,也可作为展示物品的功能性墙面。材料选择了家具工厂在生产中废弃的木料。在被工业品围绕的现代生活中,废木料独特的质感体现着生活的累积和时光的沉淀。由于木料尺寸不一,状态不同,我们在设计过程中无法依赖电脑出图,只能用实物进行手工实验推敲,最后在施工现场与工人师傅一起堆叠完成。这样即兴的建造方式,突破了常规的工作模式,也是一种新鲜的挑战。
△ 手工推敲 供图:B.L.U.E.建筑事务所
△ 展示墙 摄影:雷坛坛
视觉墙的“设计”,不是经过准确的计算,而是靠时间、人工和手工经历时间慢慢产生和呈现的,建造的过程也赋予了材料情感,给最终的呈现效果带来一种独特的力量,唤起人们对日常的珍视。大面积的木材堆叠给空间内带来自然原始的气味,这种味道也会随着时间和人的体验发生变化。我们相信空间内特殊的感官体验拥有把人们重新带回线下店铺的力量。
△ 原材料 供图:B.L.U.E.建筑事务所
△ 施工过程 供图:B.L.U.E.建筑事务所
滑动查看>> 展示墙材质细节 摄影:雷坛坛
利用自然和废弃的物料,用手工工艺建造,在人和时间的共同作用中,寻回日常生活的美和意义。这样的空间设计理念呼应了业主的品牌精神,同时,在天目里这个独特文化地标中的“家”,也体现着艺术和生活的交融。在如今城市快速发展的背景下,失物招领天目里店给了我们一个寻回丢失的日常生活和情感的可能性。
△ 材质细节 摄影:雷坛坛
水洗石材质细节 摄影:雷坛坛
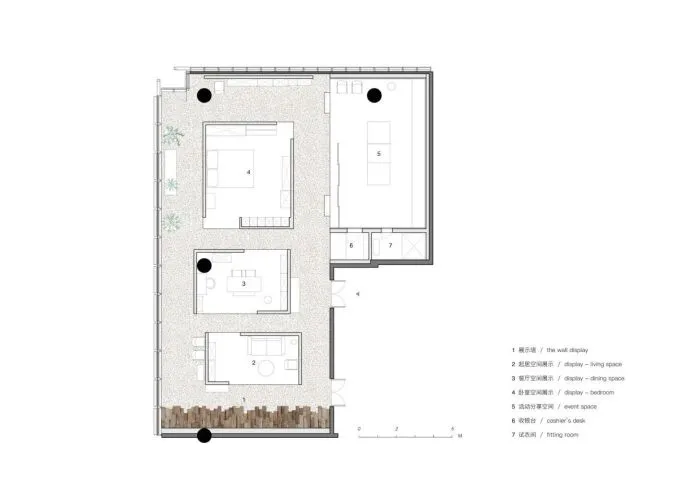
△ 平面图 ©B.L.U.E.建筑事务所
项目名称:失物招领 杭州天目里 生活提案店
项目地点:浙江省杭州市西湖区天目山路
项目类型:店铺 / 室内设计
建筑师:青山周平、陈雨圆、窦征、刘凌子
总建筑面积:225平方米
主要材质:水洗石、浅灰色肌理涂料、榉木、樱桃木、白蜡木、橡木、黑胡桃木、老杨木
设计周期:2020年7月—2020年9月
施工周期:2020年9月—2020年11月
视觉 / 李茜雅 校对 / 李博超

