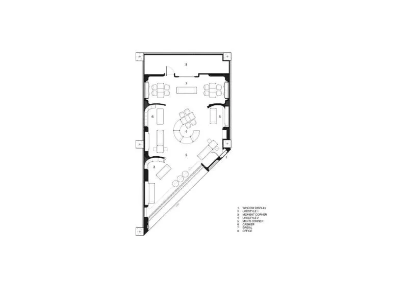
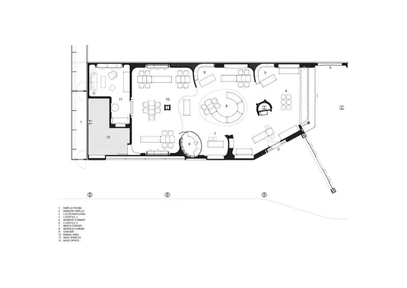
凭借其公认的领先珠宝和钻石品牌地位,ANANTA JEWELRY在其长达三十年的历史中迈出了具有里程碑意义的一步,决定重新设计公司的形象和零售空间。
从高级珠宝业务到生活方式珠宝品牌的转变,ANANTA为其产品带来了多样性,可满足各种需求,可满足所有年龄段,口味,行为和预算的客户的需求。
更重要的是,新的品牌标识旨在引入一种新的观念和价值,以使钻石和彩色宝石珠宝更易取用,可穿戴,成为每个人难忘的一刻,同时又保持该品牌的最高水准。
对于此次品牌重塑,IF负责室内设计和环境图形,所有这些均基于名称“ ANANTA”及其梵语中“永恒”的概念化定义。名称的字面含义与品牌无限徽标的交织线条之间存在相对性。

