项目名称|千墨(HOUSE OF MO)
项目业主|米柯维(上海)酒店管理有限公司
设计时间|03/2019—06/2019
施工时间|06/2019—07/2020
设计团队|李钢、戚帅奇、徐俊彪
结构设计|介直设计工作室
灯光设计|上海博纵照明
建筑施工|启劲建筑装饰工程有限公司
主要材料|混凝土、矿物涂料、超白玻璃、白橡木、水磨石
DESCRIPTION
千墨(HOUSE OF MO)位于上海浦东川沙新镇,临近迪士尼度假区,周边建筑多为上世纪七八十年代所建,几经变迁,整个镇子呈现混乱与无序的状态。
HOUSE OF MO is located in Chuansha New Town, Pudong district, Shanghai, close to Disney Resort. Most OF the surrounding buildings were built in the 1970s and 1980s. After several changes, the whole town psents a state OF chaos and disorder.
The surrounding geographical environment of the project
第一次勘察场地,门前巨大的稻田占据了整个视野,田边水杉的竖向线条与稻田所形成的几何感呈现出塞尚般的画面。建筑所占据的独特地理位置给这个场地提供了一个很好的景观支撑。
原建筑为4幢上世纪80现代居民楼,砖体预制板结构,外加东西各一幢两层瓦房,原有的宅基地限定出了建筑的红线范围,也使整个建筑边界框定在了长条形的体积内。
The site is located on a slope in the middle of a mountain, and the building covers an area of 20m×6m. The construction of 4 relatively independent accommodation Spaces is the only functional requirement of the site.
Original Building Profile
设计之初,希望最终矗立在稻田尽头的不单单只是个民宿,而是带有某种精神性感知的建筑物。因此摒弃了传统民宿的固有概念,选用带有凝聚性力量的黑色作为建筑的主基调,极简的建筑形态与周边混乱的建筑肌理形成对立美学,以守望者的姿态出现在稻田尽头,打开一种全新的日常体验。
From the beginning, it was hoped that what would eventually stand at the end of the rice field would be not just a b-B, but a building with a sense of spirituality. Therefore, the inherent concept of traditional home stay is abandoned, and the black with cohesive power is chosen as the main keynote of the building. The minimalist architectural form forms an aesthetic contrast with the chaotic surrounding architectural texture. It appears at the end of the rice field as a watchman, opening a brand new daily experience.
Black building block
考虑到原有建筑结构的脆弱性和混乱的表皮肌理,决定从建造这一思考逻辑出发,对建筑进行由结构至形体的整体改建。强化结构保证建筑稳定性,简化形体,以纯粹回应眼前的这片稻田。
Considering the fragility of the original building structure and disordered skin texture, it is decided to reconstruct the building from structure to form from the logic of construction. The strengthened structure ensures the stability of the building and simplifies the form to purely respond to the rice field in front of us.
▼由结构至形体的整体改建
The integral reconstruction from structure to form
作为主体的长条形建筑体,在4m*9m的开间模度下,强化地基,增加钢筋混凝土立柱作为结构支撑,同时依据南北方位界定出辅助空间与使用空间两大区域,将房间按4m的柱间距模度在南面依次排开,给入住者提供最佳的景观支持。
The strip building as the main body strengthens the foundation and adds reinforced concrete columns as structural support under the 4m*9m split modulus. At the same time, the two areas of auxiliary space and use space are defined according to the north-south orientation. The rooms are arranged in turn in the south according to the 4m column spacing modulus to provide the best landscape support for the occupants.
Model analysis
Building volume construction
餐厅部分沿用整体的黑色基调,在8m*8m的建筑红线内,利用对角拉出整个屋面的受力结构体,使整个屋面呈现悬浮感,斜面的处理也弱化了由于尺度限制所带来的空间局促感,在视觉上形成多维度的空间纵深感。
Part of the restaurant follows the overall black keynote. Within the building red line of 8m*8m, the stressed structure of the whole roof is pulled out diagonally to make the whole roof appear suspended. The treatment of the inclined plane also weakens the spatial constraint caused by the scale restrictions, forming a multi-dimensional spatial depth perception visually.
将辅助空间作为整个建筑的通道路径,串联起各个功能区,受制于场地条件,通道呈现狭长的形态,设计上,以纯白色柔和光线不足带来的幽闭感,二层部分使用了挑高处理,增加空间的层次,顶面狭长的天窗将自然光线引入通道,给行走的路径带来一份不确定的惊喜。
Ancillary space for the whole building of channel path, series connection has the various functional areas, subject to the site conditions, channel very elongated form, design, pure white downy light inadequacy of claustrophobia, second part USES the high processing, increase the level of the space, the top of the long and narrow skylight introducing natural light channel, bring to walk the path of an uncertain surprise.
Soften path rays
Introduce natural light
作为主体的住宿空间,采用模块化设计方式,在节约成本的同时方便施工管理,17个房间共分5个模块处理,用极简的手法与建筑形成统一关系。
As the main accommodation space, modular design is adopted to save cost and facilitate construction management at the same time. The 17 rooms are divided into 5 modules, and the minimalist approach is adopted to form a unified relationship with the building.
Standard module room design
Atmosphere of the terrace
Roof floor design
Structure of the building
DESIGN DRAWINGS
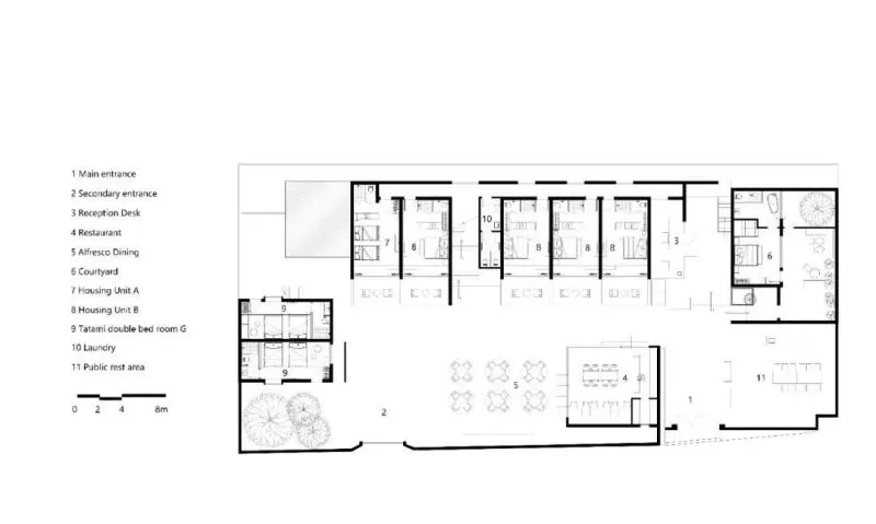
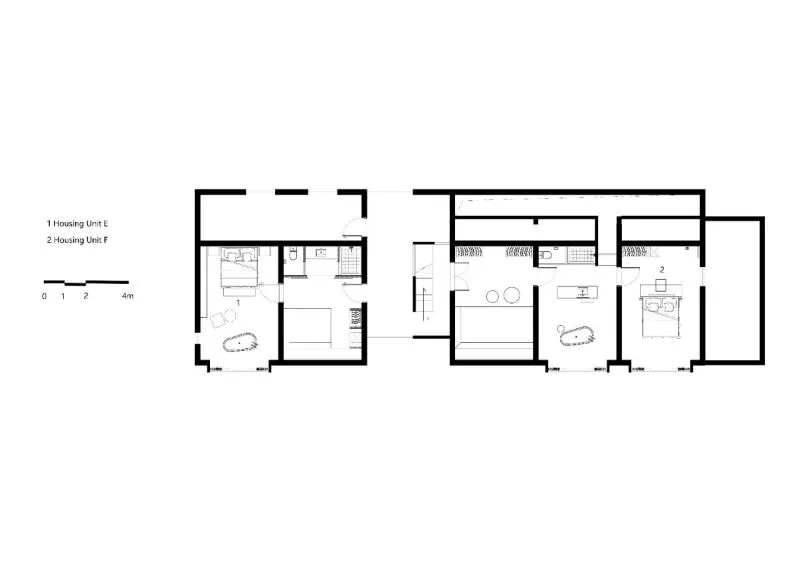
Architectural plane
偏离设计是一家小型多元化的设计研究室,由设计师小岛于2017年创立。尝试抛开固定设计思维,以当事者的态度参与每一个事件的发生,从事物本身出发,提供设计的多种可能性。集建筑、室内、景观、产品等于一体,以团队合作为基础,多角度,综合叠加,差异而独特的思考为每一次新挑战提供创造性基础。
DPAAdesign studio is a small, diversified design lab founded by designer Dao in2017. Try to put aside the fixed design thinking, to participate in theoccurrence of each event with the attitude of the person concerned, from thethings themselves, to provide a variety of design possibilities. Setarchitecture, interior, landscape, products equal to one, based on teamwork, comphensivesuperposition, Different and unique thinking provides a creative foundation foreach new challenge.

