接待区 © 叁三影像
温润自然的质感,呼吸属于自然界的气息。万物之始,大道至简。物以极简为美,生活也是。入眼错落有序的空间,营造的视觉差异,伴随着渐起的禅音,在门徐徐关闭的瞬间,实现自身
▼室内概览 © 叁三影像
空间借助下沉地面以及弧形天花,避免产生任何视觉的死角,高挑的屋顶和下沉的地面形成一个可以呼吸的空间,改变了人对内部空间比例的感知。
▼入口换鞋区 © 叁三影像
▼入口处的弧形玄关 © 叁三影像
在整个空间序列上,我并没有拘泥于横纵线上的排列,而是通过分割、叠加、端景等设计手法,使空间错落有致,同时注入空间应有的自由与寂静。
▼从接待区看入口 © 叁三影像
▼接待区 © 叁三影像
▼洗手台 © 叁三影像
将光影与空间能做一个更好的衔接。在一切排列有序之后,能够自然形成一个回转的动线。从头至尾贯穿整个空间,从而包裹围合出一个封闭且开敞的功能区域。
▼窗边座椅 © 叁三影像
▼喝茶品酒区 © 叁三影像
各个空间的错落,我们在每一处转角都与景结合。一步一景, 十步十景, 我希望在更多的景中,去注入精神层面的表达。
▼公共走廊 © 叁三影像
步入漫道,没有主灯的强射,只有辅光的点缀,宁静氛围的侵染着实让人安定。漫道两侧,三两树丛,回归自然。龛中小物,唯诧唯寂,指引深径。
▼客人休息区 © 叁三影像
“桉”———桉树。我在空间里留了一座山。玉在山而木润,玉韫石而山辉。
▼禅修室 © 叁三影像
整个空间以素色为主,空间色相高度统一,相辅相成。我们没有使用过多的装饰手法,极简素雅的造型,搭配洒落的盏盏微光,相辅相成。
▼spa房间 © 叁三影像
人与人之间很多的关联都未必是以语言来连接,有时“润物细无声”的情感传递才是沟通的更高境界。利用空间给予SPA更深层的五官享受,让客人们身心同步,便是拢合。所见即所得:“栖 影 桉 榆 柠 桦 本 雨 合 渡”。“本”———事物的起源,一切的初始状态。杂乱无序形成一个有机的空间,让时间和自然光线轻柔地流入内部场所。
▼spa房间 © 叁三影像
室内墙体模仿溶洞的起伏和穿梭,形成了多种有机体,支配着空间分布。随着洞穴不断变化的曲面,无限延伸至每个功能区。
▼VI设计 © 叁三影像
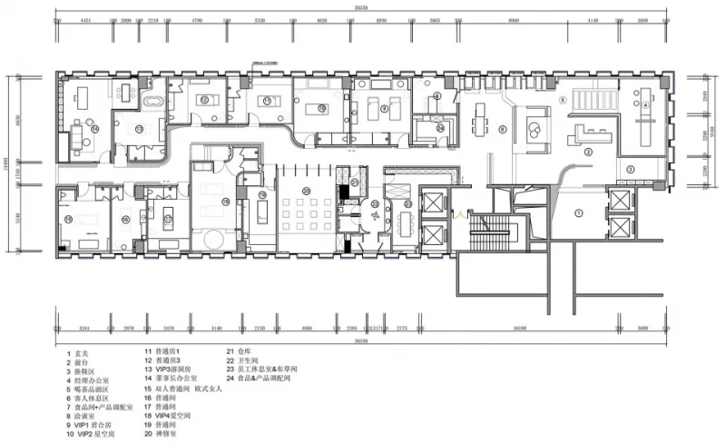
▼平面图 © 杭州潜木室内设计研究所
项目名称:森渡SPA 设计方:杭州潜木室内设计研究所 联系邮箱:
379324691@qq.com
项目设计 – 完成年份 设计:2019.12月 – 完成:2020.6 主创及设计团队:杭州潜木室内设计研究所 项目地址:杭州资辉一方汇三楼 建筑面积 :1000平方米 摄影版权:叁三影像 客户:森渡SPA


谢谢分享