嵩山是一块处于天地之中的风水宝地
绿地集团选择在嵩山脚下打造一个
禅意与诗意并存的江湖——绿地嵩山小镇
使室内空间蕴藏了更多的内在力量
室内空间人字形的挑高空间
纵向与横向线条自然组合
呈现出一个富有旋律的简洁空间
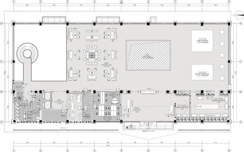
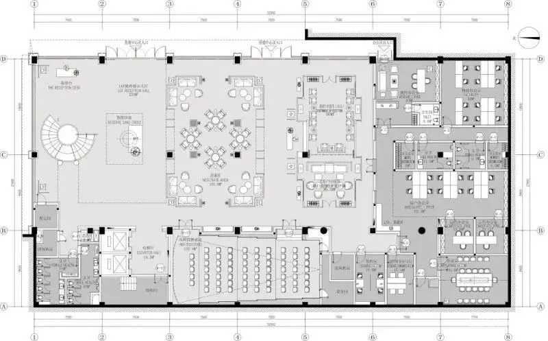
布局延续了建筑的轴线关系
对称的格局营造出强烈的仪式感
唤醒人们对传统文化的敬畏
素雅的色彩、自然的材料、粗糙的肌理
带有巍峨山脉痕迹的陈设
体现一种静态的时间流逝
让身处其间的人们感受到一份
玻璃墙、通透开放的门廊设计
打破空间与空间之间的界限
取法极致,方能得乎其上
极致古朴的斧凿壁石墙面
一平一方一间中悠然呈现
其中沾染的不仅仅是浅淡美学
项目名称:绿地·嵩山小镇营销中心
工程地点:河南省·郑州登封
甲方室内管理团队:张道飞、孙文谦、段广超

