桃花源,历来为人所向往,尤其对于在都市中匆忙奔走、用劳作安顿焦虑,以物质填充消耗的逐梦者来说,能够穿越喧嚣,重抵宁静,实现诗意生活更显美好。
本案业主是三口之家,男主人热爱游戏,女主人喜欢舞蹈,设计师考虑业主个性需求,将其转换为设计语言。
在对功能空间进行梳理后,设计了除2F的核心生活空间以外,还包括钢琴区、舞蹈室、会客区、健身房、保姆房、工具设备间等在内的所有功能空间,并运用合理的动线将各个空间串联,形成良好的互动。
功能齐备的家,能满足业主回家之后就可以“与外部世界短暂隔离、独享家庭宁静与自由”的精神诉求。
业主不喜华丽,希望能以简洁的室内布局和设计线条,创造安静舒适的生活空间。
设计师以简洁洗练的设计手法,令空间重归纯粹本质,让设计落到平凡的日常里。家居以沉静的内敛之力,唤醒居者的内心真挚与热爱,赋予“都市桃源”以全新注解。
Location:苏州融创桃花源
Area:750㎡
Nature:住宅
Interior Design:周森
Style:现代极简
Range:全案
Provide:RARA(苏州店)
▼
玄关
“有堂皆井”是徽派建筑的一大特色。在苏居中,利用天井来造景,亦是格调与雅致的表现。
在本案项目中,设计师保留了传统南方住宅四水归堂、自然融合的优点,将天井利用玻璃材料进行围合,打造出别致的景观花园,从而赋予空间以生趣和自然,也为正堂和门厅创造巧妙过渡。
客厅
天井两侧分设客厅与餐厅,直接引光进入。
在空间布局上,设计师打破了室内外的阻隔,以大面通透的对外窗引景入室。开阔的视野和简约舒适的生活空间,开启诗意的人居方式。
客厅以白色为主调,搭配舒适的灰色沙发及座椅,尽显利落与柔和。白色岩板宁静而又充满质感,它与家居和睦相融,为空间倾注优雅气质。
客厅与餐厅之间,利用内凹形成隔断,壁炉闪烁在白色的空间里,令整个空间瞬间灵动起来。
厨房与餐厅
开放式的厨房与餐厅,创造通透开阔的空间印象,满足业主自由开放的生活态度。
在空间的各处,设计师对光的运用同样别具匠心,不论是顶部灯带还是极简造型灯饰,都能烘托优雅氛围。
卧室
卧室,并非为了观望而存在,而是让人安定下来的地方。这里的设计诉求简约调性,以恰好满足的需求,让业主居住在更为舒适的空间里,而不是让物品抢占空间。
木色床头背景墙勾勒空间轻盈线条,配合艺术装饰画,强调了业主内外兼休的精致和优雅。
利用超大窗户引进自然光,使整个空间明亮而又温暖。
诗人笔下的桃源承托美好,成为了无数人心中的理想追求。而一处能够释放内心情感、安放灵魂的精神乐园,则是当代生活里,距离我们最近的桃花源。
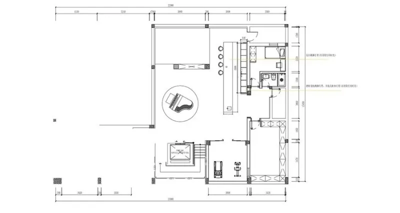
一层平面图
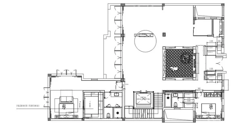
二层平面图
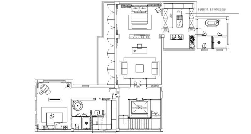
负一层平面图
本案主创:苏州一野设计事务所 首席设计师 周森
苏州一野设计事务所,是专业从事室内设计、商业办公空间设计的综合性设计机构,“一野”是英文单词“YEAH”的音译,传达了年轻人的设计思想,以及朝气蓬勃的工作动力。
一野设计专注于为追求高品质室内设计的客户服务,力求设计科学与视觉艺术的完美结合,倡导高品质的生活方式。
设计理念:把每一个微小细节做到最好,才能成就一个优秀的设计。要就不做,做就要做到极致。

