项目名称:华夏幸福·深哈中心
软装设计:北京意法多经贸有限公司(迦思设计)
设计时间:2020年6月
完成时间:2020年11月
项目地点:中国,哈尔滨
设计面积:2000平方米
主要材料:白金摩卡大理石、木饰面膜、U 形玻璃、木饰面、亚克力
设计的本质是一个做加减法的过程,留下流动性的使用空间,人穿梭于其中,悠然自得。
项目位于哈尔滨世贸大道与科技大道交汇区域,新区未来发展可期,居住氛围日趋成熟。室内设计充分尊重建筑的形体结构,从外围到内核,层次递进,在一体化的设计逻辑中展现“内建筑”的整体呼应。设计从在地性出发,以建筑外观的“冰之川”为表征,捕捉当地最绚烂的“光之城”作为灵感元素,将其化用为室内的阳光、疏影、折射等,并以现代设计手法将自然形态几何化,力图在中心城市打造一座温暖的“城市艺术馆”。
设计延续建筑形制,化繁为简,采用精炼的手法构建大块面轮廓,进一步强化空间的整体感与开阔度。
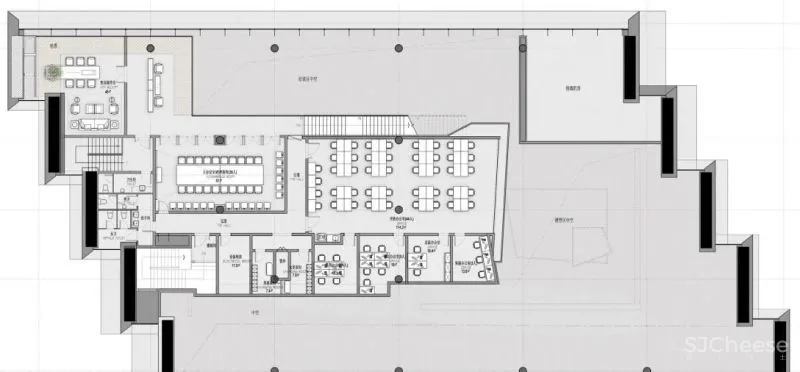
接待前厅作为第一印象,从不缺乏创新意识与试验精神。设计采取大面积玻璃幕墙采光,空间在无垠的光线里更加通透。不规则的大理石接待台,结合富有质感的高立柱,在自然色系的铺陈背景里,赋予参观者温馨宁静的观感。
室内空间的“L型”设计,通过艺术长廊成为风景叠加地,块状结构的叠加,传递出室内再造建筑的视觉呈现,彰显空间的立体感与层次感。
断裂、层叠的堆砌陈积,既呼应了建筑的冰川之形,又结合原石、古松的陈列,辟出一方独立的场域,自有一份纯粹的淡泊悠远。
沙盘区以交叉、切割的形式展示冰川的断层,又以U型设计呼应冰柱,在内建构的空间里,融合进温暖的色彩,去主动呈现静态中的节奏变换。
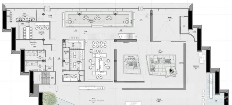
景观洽谈区以高挑空的处理营造良好的建筑条件,通过一整排的透明玻璃引入室外风景,畅通室内外空间的置换与联动。
洽谈区的设计更多地从通旋光性与趣味性方面考量,自由的动线设计最大程度地将自然光导入空间,天花悬置的艺术装置,赋予功能之外的观感。
一、二层的衔接,借助以中央为轴的云中阶梯,实现流线与窗外风景的对望。飘带状的设计,融合干净纯粹的材质,腾起于水吧台之上,让阶梯愈加轻盈,描摹出一幅自然的长卷。
水吧区藏于阶梯正下方,以谨慎的空间体块和色彩来表述永恒性,发光吊柜的使用,在一片秩序井然中,将空间比例、线条构架、明暗均衡的特征表达地淋漓尽致。
一系列重复层叠的结构,于凹凸错落中,彰显墙面的对比感与变化性。同时关注线、面、体的多维设计哲学,以一种潇洒随性的走向,在韵律与肌理的不断叠加中构建另外一番奇境。
“Matrixing纵横”创立于2010年,是矩阵旗下子品牌之一,涵盖地产、酒店、办公、商业、教育、康养等设计业态。纵横始终以“实现大众对美好生活的向往”为设计出发点,通过创新思考、专业服务,为人居赋能。作为地产头部设计品牌,纵横还致力于通过自身行业影响力,积极参与行业整合升级,力图用智慧与责任展示设计魅力,做人居美好生活的践行者。

