这套143㎡四室两厅的公寓位于深圳,由两个户型打通组合而成。
喜欢富有个性的法式优雅风格,因此设计师选用
精致的石膏线、优雅的油画,
搭配白色折叠门,营造慵懒舒适的居家氛围。
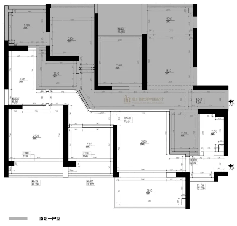
1、入户处放置鞋柜略显拥挤;
2、客厅狭小,空气不流通且采光一般;
3、厨房位置封闭,与餐厅之间的动线不合理;
4、过道狭长,呆板无趣;
5、主卫过大,而主卧储物空间不足;
6、动线多为重复,功能分区不明。
1、将两个户型的厨房打通,增加中岛,扩宽储物区,同时解决单人用餐问题;
2、将厨房一部分空间给到客厅,拓宽其空间尺度;
3、主卫缩小,挪出一部分空间给到主卧做衣帽间,利用率max;
4、利用过道的部分空间来扩宽未来的儿童房。
原先是打算通过内包阳台来改善客厅沉闷、空气不流通的缺陷,但物业不允许,只能作罢。而是在后期选用明度高的、多为白色的软装搭配。
入户处巧设玄关柜,用于收纳日常的外套、包包、鞋子等,保证室内的干净整洁。
▲ 进门后就是客厅区域
客厅与阳台利用联动式折叠门无缝过渡,集颜值与实用于一体,间接引入了充足的光线。
折叠门捕获着全天的光线移动,让照射进来的每一缕光都填充着美好与温馨。优雅的白色也与全屋的法式调性相呼应。
石膏线的造型贯穿全屋,线框中挂一幅有趣的油画作为空间跳色,尽显法式的浪漫和高级,也呈现出客厅的灵动。
天花顶上的吊灯,形似17、18世纪欧洲贵族名媛的帽子,华丽而吸睛。
电视背景墙用一块岩板叠加在石膏线上,上下内嵌灯带,打造见光不见灯的视觉感,更显高级优雅。
电视柜前放一张黑白撞色的懒人椅,干净舒适,色彩上又与整体色调相呼应。
冬日里,一家人坐着喝茶聊天,感受暖暖的阳光,舒适又惬意。
天鹅绒般的沙发质感,既能感受到极致的风格品味,也为家营造了安静的氛围。造型独特的小茶几也为空间增色不少。
云朵型的曲面茶几,也与空间格调保持一致。
▲ 联动式长虹玻璃推拉门
厨房取消隔墙,用联动式长虹玻璃推拉门做隔断,隔绝厨内油烟,可开可合,通透不沉闷。
一字型厨房格局,辅以丰富的墙面收纳柜,并搭配岛台。做完饭,转个身就可以把菜放在岛台上。
烹饪结束,再将所有的菜放至餐厅,动线十分流畅,整个空间充满了协调感和活力感。
餐厅与客厅,隔而不断,中间是通道。将餐厅的墙体设计成拱形,行走过一个拱形垭口去用餐,满满的仪式感。
餐厅的吊灯仿佛一朵优雅的大花朵,与壁面的油画呼应。
人字铺地板从客厅延伸至餐厅,呈现出空间视觉张力,更有立体感。
除了一日三餐,偶尔在这儿休闲与会客,也是很不错的选择。
另一侧墙面上精选了四副迥异的油画点缀墙面,餐边柜选用金色的柜门把手,法式的精致都藏在这些小细节里。
走廊墙体也做了弧形处理,圆润不生硬,主卧门打开时,主卧油画也作为走廊的尽头的风景。
天花设计与简洁石膏线延伸到了主卧。
床前吊灯与落地灯,焦糖棕与明亮光线相交,形成色调与风格上的对比。
床围轻盈的跳色。微妙的细节,营造出一种低调的奢华感。
偶尔坐在这看书,发呆,晒太阳,舒服~
亮橘色的油画提亮整个空间色调,也作为走廊的端景。
将原先的大卫生间一分为二,为主卧腾出一个双面隔断式衣帽间,储物能力MAX!
公卫延续轻奢至简的空间风格。干湿分离的设计,实用有格调。


?