项目名称:方与圆的哲学私宅 Square and round philosophy private house 项目地址:嘉兴 Jiaxing 竣工时间:2021年1月 项目规模:1000㎡ 设计公司:上海壹尼装饰设计工程有限公司 设计总监:黄一 One.h 项目用材:真丝硬软包、大理石、夹丝玻璃、皮饰面 施工团队:周兴宏团队 供应团队:TIMPANI高级定制、蒙玛定制、勒力精工石材、Viega系统 项目摄影:AK摄影
“方”与“圆”是艺术设计中最为单纯的两个构成元素,却建构了丰富的设计艺术形态,并被赋予了深厚的设计文化内涵,在中国设计艺术之中闪耀出炫目的光彩。
Square and circle are the two most simple elements in art design, but they construct the rich art form of design, and are endowed with profound cultural connotation of design.
“方”与“圆”不仅作为两个最基本的构型元素,更渗透于设计艺术的方方面面,并遵循着由器至礼的演进规律。
Square and circle are not only the two basic configuration elements, but also permeate all aspects of design art, and follow the evolution law from Qi to Li.
在浙江设计两套打通的私宅时,根据业主与业主之子的年龄阅历的差别,分别运用弧形和圆、 直角和方的细节元素,是因业主认为自己较为圆融,希望提醒孩子在成长中懂得把握自己的棱角。 “原本单纯的设计元素,一旦在空间里与人产生关联,就放大了它存在的意义,通过与业主的深入沟通,无意中契合的点变成了一个有关设计与人生哲理的故事。
When designing the two completed private houses in Zhejiang, according to the difference in age and experience between the owner and the owners son, the detailed elements of arc and circle, right angle and square were used respectively, because the owner thought he was more harmonious, hope to remind children in the growth know how to grasp their edges and corners. The simple design element, once connected with people in the space, magnifies its meaning, and through the deep communication with the owner, the point of accidental convergence becomes a story about design and philosophy of life.
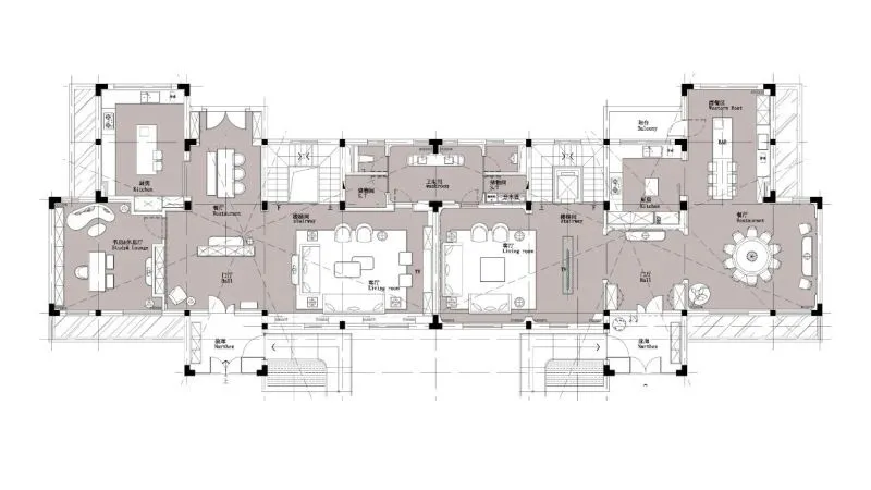
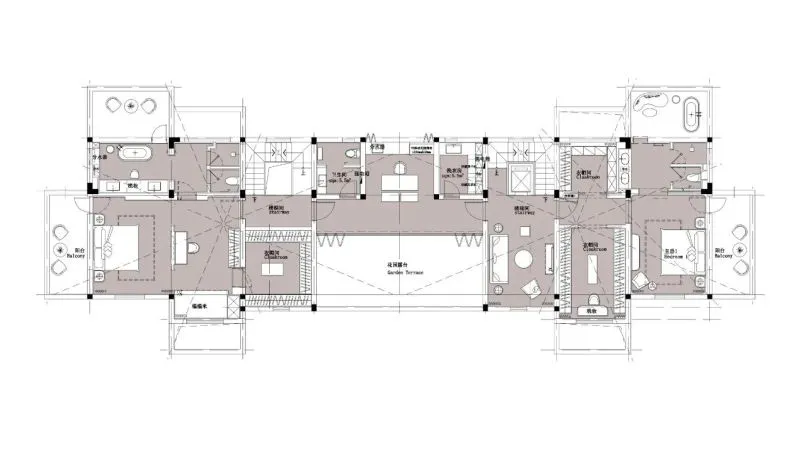
别墅拥有1千多平方米,只有2间主人套房和1间客用套房,其他都是大小主人的个人爱好空间,如书房、书画室、SPA、棋牌室、多功能KTV等。
Villa has more than 1,000 square meters, only 2 master suites and 1 Guest Suites, the rest are the size of the masters personal hobby space, such as study, painting room, Spa, chess and card room, multi-functional KTV.
两套别墅打通后,两代人的日常动线设计是重点,既不能产生疏远感也不能因太过紧密而缺乏私秘性,为此设计了三条可以互通的动线,分别为B1多功能KTV区、1F共用洗漱区、2F共享阳光房连廊区,每条动线均为功能区过度,为过度增添了顺其自然,避免了过于直接可能产生的尴尬。
After the opening of the two villas, the daily movement design of the two generations is the key. It can neither create a sense of alienation nor lack privacy because it is too close. To this end, we have designed three movements that can intercommunicate, b 1 multi-function KTV area, 1f shared washing gargle area, 2f shared sunlight room corridor area, each line is the function area excessive, for the excessive added natural, to avoid too direct may produce embarrassment.圆.空间Circle. Space something
客厅@玄关造壁 |Living Room@porch Wall
客厅 |Living Room
客厅局部 |Part of the living room
在空间形式上,设计遵循了一个原则“用酒店的美学设计去融入家的温馨”,对于成功企业家的私宅设计,我认为既要考虑空间的美学设计、仪式感设计等,也不能失去家的实用性设计和温馨感,两者之间的平衡是整个空间设计的核心。除此之外更要帮助业主去设计如何使用未来的空间,才能实现设计遵循的原则。
In the form of space, the design follows a principle: use the aesthetic design of the hotel to blend into the warmth of the home. For the design of a successful entrepneurs private residence, I think we should consider both the aesthetic design of the space, the design of the sense of ceremony, etc. , also can not lose the home practical design and the warm feeling, the balance between the two is the entire space design core. In addition to help the owners to design how to use the future space, in order to achieve the design principles followed.
餐厅 |Dining Room
中西餐厅 |Chinese and Western restaurant
西餐厅 |Western restaurant
厨房 |Kitchen
主人套房 |The master suite
主人套房卫生间 |The master suite方.空间Square. Space
客厅 |Living Room
客厅局部 |Part of the living room
玄关 |Entryway
餐厅 |Dining Room
厨房 |Kitchen
书房 |Work Room
主人套房 |The master suite
主人卫生间 |Master bathroom
方-楼梯间 |Stairwells
圆-楼梯间 |Stairwells
楼梯与踏步细节 |Stair and step detail感谢嘉兴貂帅服饰、爱未陌生品牌的支持及家庭氛围的感染,从项目设计到后续项目落地1年的周期里,让我和我的团队收获了设计及项目落地之外的正能量,也感谢施工团队及各配合厂商的无条件支持项目,才使得1千多平方米的大别墅1年完成如期,最终获得业主的高度认可。
ENI INTERIOR SPACE DESIGN 壹尼设计联合创始人
《最家计划栏目》特邀天团设计师
上饶职业技术学院特聘讲师
壹尼设计,简称:ENI。于2010年成立,壹尼设计核心团队均为内地精英、台湾、香港及海归资深建筑师及室内设计师,至今在全国各地乃至东南亚国家,完成了许多涵盖建筑规划设计、商业空间、办公空间、文化空间、住宅空间等工作。将广泛的国际经验引进实战十余年,大量复杂项目的经验让我们对各种类型、规模与计划的项目,皆能提供创新与务实的解决方案。
设计是通过视觉的形式传达出来的活动过程,每个项目都有“她”独特的故事背景,如功能、地点及历史,壹尼团队都会挖掘出来并通过经验确定其细节、材料、形状及灯光,让每个项目都在其独特的故事背景下得到淋漓尽致的体现。

