114㎡私人公寓| ONE MORE BURO
这间位于乌克兰基辅的私人公寓预计2022年完工,其设计理念是利用纹理、形状和阴影发挥的效果,来创造一个完整而实用的生活空间。
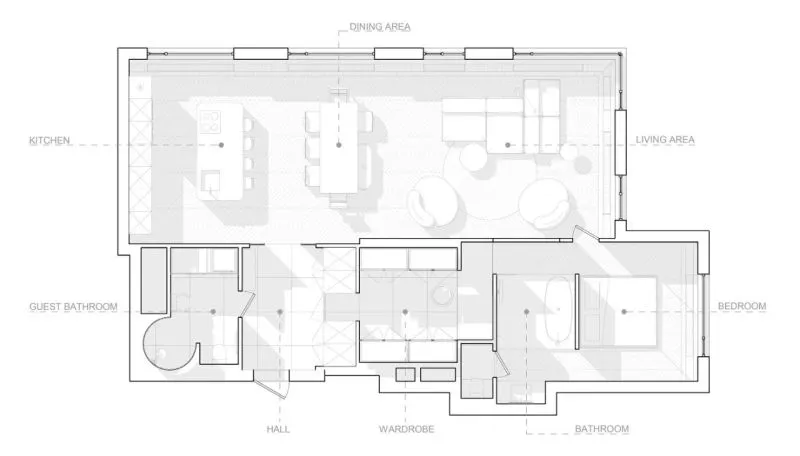
走廊是一个四处都可以抵达的公共区域,在这里分别可以到达客用浴室、衣柜、卧室、主浴室和主衣柜,而另一边则通向厨房、和餐厅。
厨房的一侧是一个特殊的版块,该版块结合了吧台和舒适的烹饪区域。吧台的表面利用光滑的铜包层组成,与厨房的哑光黑色外墙形成完美的配比。
餐厅延续了厨房的氛围,餐桌上的照明为整个区域增添了一份烟火气。
客厅的沙发呈不规则形状,一部分连接到桌子和扶手椅,另一部分则面向窗户。在这里,一盏夕阳落日灯代替了电视的位置,并为夜间的冥想提供了宜人的照明。
主卧和主卫的风格也呈现一体化设计,墙壁上的圆形调色板与客厅是共用一块,这种设计让天蓬床看起来更加简洁。
主浴有一个椭圆形浴缸和一整个完整的沐浴空间。
主卧内更大的亮点则是沐浴空间和厕所间是一道透明磨砂的玻璃分隔而成,这项大胆的设计被运用在了更私密的空间内。
在床和浴室的右侧,有一条通往业主衣柜的通道。
客用的浴室拥有一个独立的圆形水槽和带有浴帘的沐浴空间,另外还设计了一块独立的洗衣房。
ONE MORE BURO
ONE MORE BURO是一家位于乌克兰基辅的室内设计建筑所,他们执行不同范围的住宅和商业设计项目,他们认为自身是建筑师而不是设计师,这种认知能够是他们根据自身的技术技能和主要建筑原理来改造空间。
COLOR-BOX-PROJECT


谢谢分享