项目室内概览 ©是然建筑摄影
本项目是一个女装品牌体验店的咖啡区,位于一幢三层清水混凝土建筑一楼的一角,透过落地窗能看到外面一片墨西哥鼠尾草和香茅正在肆意生长。
▼项目外观 ©是然建筑摄影
▼咖啡厅主入口 ©是然建筑摄影
▼种满墨西哥鼠尾草和香茅的花园 ©是然建筑摄影
设计的初衷是不做太多的装饰,新的设计元素与原建筑之间有机的共生,保留了原建筑清水混凝土的质感及结构,并没有做太多的改动和添加,新做的地面用了一种类似水泥沙浆质感的水磨石,使地面与原来建筑的混凝土颜色接近,整体以灰色、金属色、浅木色为基调,希望创造一个简单开放的空间、内外融合的环境和享受咖啡的舒适场所。
▼项目室内概览 ©是然建筑摄影
▼整体以灰色、金属色、浅木色为基调 ©是然建筑摄影
▼新的设计元素与原建筑之间有机的共生 ©是然建筑摄影
一个直径接近四米的大圆桌位于咖啡区域的中心,喝咖啡的人们围合而坐,相见而欢。斜放的操作台和圆桌形成的操作区域,即独立又开放,咖啡师在操作时与顾客也能够很方便的互动。
▼咖啡区域中心的大圆桌 ©是然建筑摄影
▼窗边与圆桌之间的座位区 ©是然建筑摄影
▼独立又开放的多种座位形式 ©是然建筑摄影
▼大圆桌与座椅细部 ©是然建筑摄影
大圆桌上方环形软屏滚动播放的手绘插画,远端墙上挂的艺术家画作,给整个空间增添了一份动感及色彩。
▼滚动播放的手绘插画与远端墙上挂的艺术家画作 ©是然建筑摄影
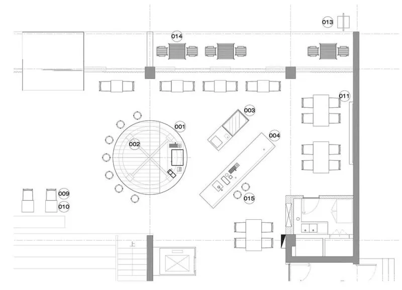
▼平面图 ©艾舍尔设计 A3 VISION
项目名称:broadcast-bo体验店咖啡区 项目地点:中国 上海 设计公司:A3 VISION 公司网址:
www.a3-vision.com
创意总监:王志峰 设计团队:范进、刘超 主要材料:不锈钢、橡木、水磨石 项目年份:2020.6 项目面积:135平方米 建筑设计:formless design 摄影公司:@是然建筑摄影

