Leopolis Achitecture Group新作,面积49㎡的公寓,空间不大,设计师设法布置了大厅,厨房,工作室,卧室,儿童房和浴室。它就像一个女士手袋,好像很小,但适合所有物品。
值得一看的是勃艮第的颜色,
设计师想打破刻板印象,即深色或鲜艳的颜色会加重空间,
结合浅色,笔直的形状和足够的照明,你将获得难以忘怀的内饰。
PROJECT TEAM
Leopolis Achitecture Group,一支由合格的建筑师和设计师组成的团队,于2013年在利沃夫(Lviv)开始工作。专业地创造舒适的生活,工作和休闲空间,体现每个客户的个性。
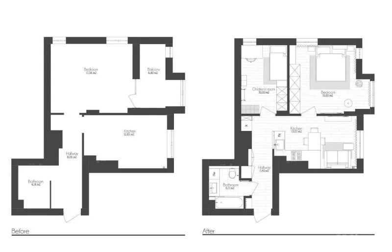
这套88.6㎡的设计项目是L
eopolis的另一新作,线条简单、色彩简单,冷静与平和,搭配木色地板,暖色的跳动穿插在安静的中性色当中,一番别具氛围的空间味道。

