的私人住宅,巨大的屋顶与周围环境立起柔和的联系。
4个屋檐下的空间被设计成庭院,部分用于餐厅和沙发空间。
宽敞空间使家庭活动在晴天和雨天都不受干扰。
每个庭院具有不同的用途,包括室外生活区、菜园等。
日式住宅的屋檐通常伸出房屋约1 m,而该项目的屋檐倒置在屋顶下,覆盖狭长的内部空间。起居空间得以向室外和包括农田在内的周边环境延伸,使该项目成为一座为农田遮阴、连接环境与生活的房屋。
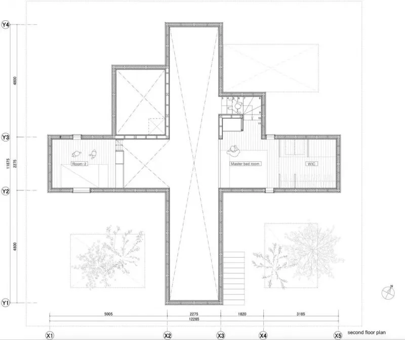
工程名称:Kasa住宅 坐落地点:日本 刈谷 建筑面积:145.88 ㎡ 设计:Katsutoshi Sasaki Associates 竣工时间:2020.07 摄影:Katsutoshi Sasaki Associates

