印象中我们的幼儿园喜欢把各种颜色“堆”在一起,其实让孩子过早接触到太多色彩和图案,容易破坏掉他们对美的认知,幼儿园最大的功能,不是培育知识,而是培养和释放想象力,好的幼儿园设计就是让孩子充分释放天性。
随着教育理念的变化,国内越来越多的幼儿园设计也不断发展创新,今天甄选了国内10个有设计感的幼儿园案例,和大家一起鉴赏。
01.北京城里的四合院幼儿园|乐成四合院幼儿园
02.云南童话风幼儿园|棒棒糖理想园
03.留守儿童的五彩家园|富文乡中心小学
04.极简风幼儿园|心蒙·蒙特梭利幼儿园
05.甜甜圈幼儿园|天津环路幼儿园
06.四川灾后重建极简盒子幼儿园|乌斯河镇中心幼儿园养正
07.黄土高坡上的彩色幼儿园|养正幼儿园
08.农田中的幼儿园|北沙幼儿园
09.没有围墙的乐园|灵宝儿童成长中心
10.北欧风幼儿园|北京亦庄半岛幼儿园
建筑设计| MAD建筑事务所
这所老北京风幼儿园,将优雅的现代建筑与传统的清代四合院巧妙相连,创造出了一种绚丽又实用、古典又现代的融合之美,展现多层次的城市历史和谐并存的场景。
MAD选择将原址上四合院外的仿古四合院拆除,取而代之新建一处将四合院“捧在手心”、与四合院相望、连通的新建空间,以低矮平缓的姿态展开,环绕着四合院。
四合院俨然的布局秩序与新建空间的流动形成了鲜明的对比和呼应。来自不同时间维度的两者,新不盖旧,古不越今,相互的张力让建筑产生新生命力。
将原本各不相关的场地各部整合成一体的是新建的“漂浮的屋顶”。这处二层户外平台让人仿佛进入到全新的境地。
在老北京,除了紫禁城的红墙黄瓦,胡同巷里几乎尽是青砖灰瓦。在这里,二层屋顶平台色彩斑斓,像是火星表面,颜色鲜艳、温暖,仿佛充满了“魔力”。
“三天不打,上房揭瓦。”屋顶地形连绵起伏,吸引孩子们乐于在此奔跑、互动。面对眼前的“火星”、四合院、老树、天空,孩子们在这里“上天下地”,启发他们思考和追逐不同的可能性。
从二层走进一层室内,视线变得温暖明亮。为了照顾孩童对尺度的敏感及舒适感,室内采用了单元式铝格栅吊顶,建筑的视觉层高被稍稍压低的同时又给室内增添了温暖感,让孩子们有一种家庭的感觉。
阳光通过整墙落地玻璃射进室内,人们也可在此近观室外的古四合院。新旧建筑间的线性历史在这里变得立体。
四合院里的古树、庭院、屋檐、砖瓦,弥漫的是比个人生命长度更广的历史和自然氛围,这些也将启发儿童们的思维和加深对历史的认识。
中国北京2017-2020
基地面积:9,275平方米
建筑面积:10,778平方米
建筑设计:MAD建筑事务所
甲级设计院:中国建筑科学研究院
室内设计:MAD建筑事务所、蘑菇云设计工作室
景观设计:MAD建筑事务所、易兰(北京)规划设计股份有限公司
照明顾问:优米照明设计有限公司
吊顶研发:上海思友金属材料技术有限公司
摄影:存在建筑, Hufton Crow, 田方方, Iwan Baan, 肖莹
设计|西安迪卡幼儿园设计中心
这个造型独特形似棒棒糖的建筑位于云南,与其他幼儿园最大的不同在于,设计中所有的灵感均来自孩子的艺术世界,最突出的特点是外在造型上的设计,以“钥匙”为载体,主体也以棒棒糖为造型,就像小朋友的画作,加入更多顺其自然与童真的幻想。
校园色彩方面借用了黎明时分天空渐变的颜色,从下往上,由深转浅,充满神秘又变换无穷的气息,纯粹的渐变色使色彩更加的生动缓和,不单调也也不会给视觉增加负担,设计师在极力创造一个诗意且具有艺术的世界,想要给孩子们一个奇异的世界,让他们可以在这里体验,成长,感受四季。
户外活动平台成为幼儿活动扩展空间
设计团队将闽南福建土楼,哈尼族蘑菇屋的建筑结构保留下来,将传统文化元素与现代建筑相融合,置入当地特色艺术
设计团队将闽南福建土楼,哈尼族蘑菇屋的建筑结构保留下来
内部白色混凝土让建筑仿佛穿上了白色的羽毛,让你仿佛进入潘多拉之盒,拥有世间神力。
中庭空间增加了建筑的流畅感和流动性,内部空间以白色为主,地面则以彩色为主有活跃气氛的作用,中庭空间是孩子们最主要的交往场所,圆环路径,简单,统一,孩子们可以在明亮流畅的中庭肆意奔跑,也能让孩子们更自由自在的使用空间。
中庭内部宽敞的活动空间
项目位置:云南 项目名称:云南棒棒糖理想园 项目类型:幼儿园设计 总设计师:王俊宝 设计单位:西安迪卡幼儿园设计中心 摄影师:侯博文 建筑面积:9000平方米
设计|中国美术学院风景建筑研究院总院
这不是传统意义上的幼儿园,严格来说是一个乡村小学,但是它为100多名儿童提供了优质的学习环境,所以也加入了这次的名单。
这所乡村小学被大众熟知,应该是在电影《我和我的家乡》里面出现的梦幻学校,没想到存在现实中,这所小学是偏远农村的“落后学校”,设施落后,教师不足,原校舍如同中国大多数学校,呆板而又缺乏想象力,和自然环境更无关联。
设计师在校舍原有主楼基础上进行了改造设计,加建了6个公共学习空间,提供弹性的年龄混合学习与游戏空间。相比中国传统的乡村小学,在外观和内部上都做了很大的突破,“自然,多样,独特”,为100多名儿童提供更好的教育环境。
改建设计来自于学校儿童最熟悉的灰红色坡屋顶山村家园和起伏山峦形象的启示,一条由爬梯,索桥,斜坡,曲廊组成的宛如蜿蜒盘旋山中小径的立体通道与竹林,果树,山花,小池交织。
将不同标高,孩童尺度的各种主题小屋——教室,阅读,游戏,交流,探索,眺望等空间连接成一个微缩的山地村落式的魔幻立体新世界,它更像是孩子们在自然中自由成长的亲切的家。
虽地处乡野,本项目并未采用乡土,低技的“常规”建造方式,而试图探索在中国和全球传统建造工艺渐失,人力成本攀升的时代,将高效,经济,环保的现代预制轻型结构和适当的传统手工艺融合产生的新类型。
工厂定制的多种红,紫色系列PC板外立面,结合局部碎拼瓷砖镶嵌工艺,水磨石的地面,成品的仿竹波形塑木板,自由折叠开合的门窗营造了青山翠谷间明快,缤纷,与山色,天光,清风,星空对话的儿童世界,健康,艺术,自然的生活场所,这正是孩子,老师和家长们所希望的,也正是大多数城市或乡村学园所缺失的。
建筑师: 中国美术学院风景建筑研究院总院,王伟工作室
面积:2604.0 m²
摄影师:郎水龙, 郑佩文, 王红斌
这所位于厦门岛海边的极简风幼儿园,不同于我们认知里的样子,在这所幼儿园内没有尖角、没有边界、没有终点。
众所周知,对于幼儿园来说,采光和足够的活动空间是最基础要求,设计打造了一个贯穿三层的中庭,顶部的天窗,确保所有教室,实现双面采光,不再过分依赖人工照明。
设计师在二楼与一楼的楼梯间,还独特设计了一个全包滑梯满足了孩子们日常爱玩耍的天性。
这所幼儿园配色极其朴素,全园以浅木色为整体基调,大面积的超白透明夹胶安全玻璃创造出纯净、公平、宁静的空间环境。
所有空间均采用了圆弧形倒角设计最大程度避免了各类尖角所存在的安全隐患,孩子们可以恣意奔跑,不用担心磕碰。
让人惊叹的是内部的细节,孩子们的鞋凳、书柜、衣架、桌椅等所有使用到的产品,全部按照儿童的身高尺寸设计,更“魔鬼般”地区分了1.5-3岁的小童和3-6岁的大童,满足不同身体尺度孩子们的需求。
业主:厦门心蒙·蒙特梭利幼儿园 设计:立木 总建筑师:John 景观设计:IA 立木景观 摄影:胡义杰
天津环路幼儿园的外型,看上去像一个巨大的甜甜圈。它的圆形边缘和窗户,让整个建筑充满了流动的线条感,并且明丽的颜色,增加了建筑本身的动感和时尚,有着让人眼前一亮的惊艳。
除此之外,环路幼儿园值得赞不绝口的原因还包括,它的内部都是彩色的,总共由18种色调组成,就像个巨大的调色板。身处期间的孩子,能够在一个包容性圆形空间,彩色的视觉艺术中,极大的释放想象力和创造力。
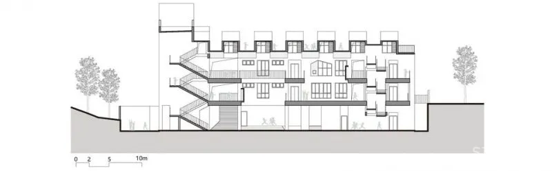
设计|广州市东意建筑设计咨询有限公司
乌斯河中心幼儿园是四川壹基金芦山地震灾后重建计划的一个项目,建成后是镇上第一所公立幼儿园。
幼儿园场地坐落在一个高地势之上,设计师将山地特征强化为空间营造策略。根据原有场地整理成东西两个大的台地。整个建筑体量坐落在两个平台之间,围绕一个共享中庭布置,首、二层可以分别与两个平台连接。通过各层露台和屋顶平台,将地形关系在建筑外观中表达出来。
屋顶提供了足以容纳6个班级的室外活动场地,视野开阔,横断山脉壮丽的景观尽收眼底,并可俯瞰整个城镇。儿童可以透过开敞的侧天窗与中庭内的小伙伴交流,形成有趣的互动。
屋顶上部突出的“老虎窗”造型与下部建筑的格栅式立面共同构成了强烈垂直感的建筑形体。立面采用干净的白色立面与周边环境的灰色主调形成对比,侧墙亮丽的色彩,含蓄地透射出幼儿园的活力。
从镇外十数里的盘山公路上,人们便可一眼看见山坡上的幼儿园,它通过与周边建筑群形式差异所带来的张力,成为视觉焦点,也承载了小镇未来的希望。
中庭强化了集聚的效果,并成为了整个建筑的空间核心。三层通高的中庭升腾向上迎接着上部的天光,不同于当地彝族民居固有的昏暗空间,创造一种明媚活力的精神场所。
交叉连续布置的侧天窗,将富有韵律的光线引入中庭,营造出温暖而阳光的氛围。
上下午的阳光分别投射在不同颜色的墙面,使室内空间强调出时间属性。中庭的墙面和走廊嵌入小尺度空间,是儿童欢乐的小游戏区。
▼首层平面 © 东意建筑
▼二层平面 © 东意建筑
▼三层平面 © 东意建筑
▼四层平面 © 东意建筑
▼立面图 © 东意建筑
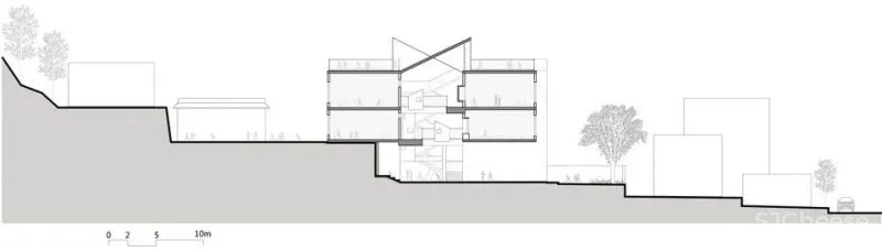
▼剖面图 © 东意建筑
▼剖面细部图© 东意建筑
项目名称:乌斯河镇中心幼儿园 设计方:广州市东意建筑设计咨询有限公司 建筑面积:2310 ㎡ 摄影版权:SouthArch南社•建筑 合作方:四川高地工程设计咨询有限公司 客户:汉源县乌斯河镇中心小学
这所位于甘肃天水市耗资3000万的:“养正幼儿园”,被誉为“最美乡村幼儿园”。幼儿园的现代化设计,与周遭的黄土高坡传统房屋,形成了强烈的视觉对比,已然成为了一道最靓的风景线。
养正幼儿园的整体外观非常圆润,没有钢筋水泥的冰冷感和距离感,纯白色搭配彩色玻璃,让人感觉十分亲近又和谐。
设计师用了10种颜色共计438块玻璃,运用在整个幼儿园的窗子上、走廊上,以及楼梯扶手的位置。
白天阳光通过彩色玻璃照进教室里,形成五颜六色的光影,随着太阳光照的变化,整个空间就像是不断转动的万花筒,十分浪漫。
而到了夜晚,从窗户透出来的彩色光线,则让幼儿园成为村里独特的风景。
幼儿园所有的开口的门窗都是拱形,由于天水位于黄土高原,设计灵感便来自当地的窑洞。
中庭上方覆盖有透明玻璃屋顶,自然的采光,让整体空间十分明亮。
屋顶上则是孩子们的室外操场,周围的风光尽收眼底。
设计|Crossboundaries
这个位于江苏平原乡农田中的幼儿园,呼应了村落的原生肌理,随处可见的高大树木将天空与田野切割成拼贴画般的背景;通过这些天然“柱廊”走向村中房舍时,会有桃源探秘般的新奇感。
“大自然、大社会都是活教材”,儿童需要在与自然和社会的直接接触中、在亲身观察中获取经验和知识。而空间的设计者要为孩子们营造这种环境,创造这些机会。
当地众多留守儿童的父母同当今全国各地的乡村青壮年一样,选择季节性地外出打工,错过了自己孩子成长的大部分时光。所以对于这些孩子而言,幼儿园确实就是他们的第二个家。
房前屋后到处都可以学知识或捉迷藏,就像在村里一样 ,幼儿园不仅是孩子的乐土,也成为村民喜欢的社交场所 。
立面材料选用了本地随处可得的老青砖和白色灰泥,每栋“小屋”的面貌都不尽相同。
每栋“小屋”底层开设了多处相互对望的方窗,形成通透、有趣的室内外关系 。
自建成以来,这两座幼儿园不仅是孩子们的乐土,亦成为村中居民喜欢的社交场所。父母或祖父母们聚集在此,在接送孩子之余,有了更多融洽的交流。
项目名称:江苏省北沙幼儿园 设计方:Crossboundaries,北京 完成时间:2018年8月 项目地址:江苏省,阜宁县 建筑面积:2815.4 平方米 摄影:吴清山,郝洪漪,刘敏玲 客户:江苏省阜宁县教育局
设计 | unarchitecte
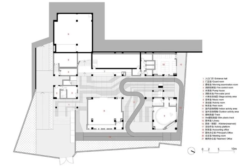
这是一座没有围墙的乐园,位于河南省灵宝市,属于社区内的建筑改造项目,改造后成为该区域的儿童成长中心。
设计师修造了一个有别于社区的洁白小世界,让孩子们从简洁而真实的空间中,专注地嬉戏与认知,探索与思考,从而获得真实的感受与快乐。
在局部运用高饱和度色彩的墙体,由外向内切入,跳跃而持续地建立白色空间深处的立体感,并引导着功能空间的转换秩序。
二层平面图(左),三层平面图(右)
建筑事务所:unarchitecte 项目完成年份:2020 建筑改造面积:7139.58m2 场地改造面积:4095.48m2 项目地址:河南省三门峡市灵宝市 摄影:一号公社 景观设计:unarchitecte 施工单位:江苏轩恒建筑智能化工程
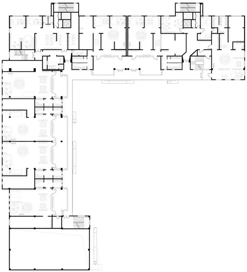
北京亦庄半岛幼儿园·中国北京
这所浪漫北欧风的幼儿园位于北京市,设计师在室内空间加入了很多小房屋设计,这样可以让孩子更具有主人感和安全感。
走廊设计成多功能的开放空间,孩子们可以便捷地到处活动,增加孩子们的社交技能。部分走廊还被打造成为田野的模样,让小朋友们可以体验季节的变化。
一个梦幻的蓝色大楼梯连接着每层楼,宽宽敞敞的公共活动空间,艺术手工配备了洗手池。
一人一格的洗手间,很注重保护小朋友的隐私。
▼二层平面图,second floor plan
▼三层平面图,third floor plan
排版校对 | Wanxin

