Ubalt Architects的两个作品
他们擅长用特殊的材料质感
塑造极简风格的室内空间
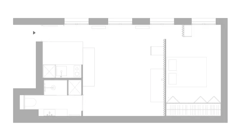
这套公寓改造前是一个占地 250㎡ 的数据中心
位于上世纪70年代的巴黎勒马拉斯郊区
该项目旨在唤起人们对公寓内1970年代的回忆
通过运用有机玻璃、彩色金属细木工制品
闪色窗帘、混凝土等复古材料来实现
为住户提供一个梦幻般的活力空间
整个空间位于首层,上方为露台花园
其最大的特点是看不到外面的景色
并且只有少量的室外光源引入
唯一实质性的光入口位于公寓绿植区上方
由于空间内具备双厨房、洗衣房、储物空间
投影室、健身房、卧室等功能
之后容易改造成为陈列室、工作场所或会议室
未来拥有十分灵活的改造可能
入口玄关过渡空间分别连接
三个卧室、浴室和起居室
中间灰色金属坐凳起引导及稳定功能
界定该区域的主要材质-灰白花纹饰面砖
广泛运用于地面、墙面甚至家具
材料游弋于各个房间,相互协调统一
成为空间内一处集中亮点
天花板和墙面均采用白色材质
与地面材质形成对比并更加凸显其个性纹理
顶上三条简洁线性灯与下方坐凳相平行
搭配后方的靠墙小花池及黄绿色金属门框
共同为入口空间带来一股生机活力
卧室床头面板同样使用灰白花纹饰面砖
床边还设有一个白色通顶大衣柜
保证住户足够的收纳空间
多功能起居空间由客厅、厨房、吧台
餐桌、阅读躺椅区块和植物墙联合构成
对角线长灯管横跨整个起居空间
设计师采取这种夸张明显的灯光配置
目的是强调与显示室内无阳光的空间特点
连同通体白色的墙面、地面及天花板
配合营造明亮大方的氛围
灰色布艺沙发区的大理石纹理茶几上方
由数条长短不一的灯管组成的圆状灯具组合
则为客厅提供了集中性光源
沙发对面的白色厨房收纳柜周边
紧密连接着一排黄色有机玻璃装饰构架
一路连接至起居室尽头的镜面
鲜明的色彩令空间更加灵巧活波
装饰柱底座贴面由地面延伸而成
形成一个良好和谐的材质过渡
有机玻璃装饰构架末端为一面植物墙
由高低错落的两段花池构成
这片休闲躺椅区上方为矩形天窗
是室内唯一一处自然光源
植物得以在此处实现光合作用
住户也可在柔和自然光线下舒心阅读
花池壁面继续使用灰白花纹饰面砖
还在一端设金属爬梯增加趣味性
地面采取光滑金属面与周围材质进行区分
金属爬梯旁为白色工作桌 灰色椅子
平时朋友聚会也可作为餐桌使用
走进起居室左侧后方的走廊
一条条竖条灯将指引人们前往其他功能区
其中一间卧室采用与客厅相似的圆状灯具组合
运用复古的闪亮窗帘限定就寝区
在灯光下整个空间金光闪闪,别具一格
土黄色绒面呈U型状包裹半个房间
提供给住户一个柔软舒服的休息场所
卫生间墙面铺满大理石饰面
白色陶瓷洗漱台上方配置长条镜面
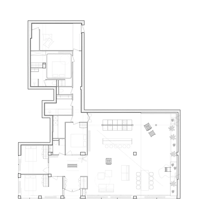
这间建于17世纪的公寓位于法国巴黎马莱中心
设计师在进行翻新过程中
使其历史悠久的外壳与当代室内形成对比
在 36㎡ 的空间内,将有卧室、晚餐区
其最大的装修特色包括定制的彩色镜面家具
像手风琴风箱一样折叠的白色隔墙
设计旨在最大限度地扩大公寓内的空间
入口一端设有一个布局紧凑高效的功能区
包括浴室、卫生间和厨房
以便为卧室和客厅腾出最大的空间
另一端卧室通过白色折叠隔墙与客厅隔开
中间开放空间同时作为起居室、餐厅和办公室
达成极致的极简主义设计风格
壁橱、置物架、厨房家具均布置在公寓纵轴
增强人们对纵向空间的细长印象
而生活区、办公区及吧台面则为横向布局
这套公寓通体刷成白色以强调与凸显
同时地面上的视觉连续性
收缩家居底座和半透明镜面家具腿来实现
大理石工作台面旁边的白色书架分四层
最下面为带柜门的收纳区
书架一侧的镜面反射四周事物
令整个家具更显轻盈通透
暴露在外的天花板横梁在公寓内纵向延伸
定制设计的灯具悬挂在家具和横梁之间
垂直于横梁布置以吸引人们关注光束
起居空间的每件家具都是定制的
办公桌粉色和餐桌绿色色调的玻璃桌子腿
成为公寓内的唯一色彩来源处
两个家具顶部都设有一片薄质大理石面板
花纹美观并且充满细腻质感
像手风琴风箱一样折叠的
一座通顶白色收纳架背面同样使用折叠隔墙
并在一侧形成隐蔽的卧室入口
卧室内顶天立地的衣柜几乎填满一面墙
折叠式的白色柜门呼应起居室隔墙
墙面一盏简约壁灯温暖室内空间
另一端餐桌一侧的门通往卫浴空间
墙面和地面均采用白色的马赛克瓷砖
搭配纯白色陶瓷洗漱台和马桶
工作室:Ubalt Architects

