起居室 ©金伟琦
该项目位于北京市东城区,楼房身处胡同内,总六层,项目在第二层,南邻胡同,视野是青砖灰瓦,北侧可观赏一颗玉兰树,南北侧均有几颗超过50年树龄的大树,使用面积约43平米,是为一位男士设计的居所,屋主爱好阅读与摄影品尝美食与酒。
▼项目位于住宅楼二层 ©金伟琦
因房屋所处于的位置与环境相对特殊,考虑到胡同的文化背景,与胡同的关系,街道的市井气息,因此将设计的重心由室内向室外延展,南北两侧的窗景作为设计的重点,同时也在小的空间内营造大的气场,化零为整,通过深色调营造包裹感的生活场景。
▼室内空间一瞥 ©金伟琦
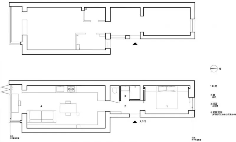
是典型的一字型户型,南北方向瘦长,两端的起居室与卧室采光较好,位于中间部分的门厅与厨房采光较暗,因为房屋处于六层楼的第二层,这两个位置的窗是靠天井采光,几乎没有日光,卫生间面积较小,使用起来比较局促。
▼改造前(上)和改造后(下)户型对比 ©罗秀达
1: 将卫生间移至原门厅的位置,形成马桶区、洗漱区、淋浴区三个空间分离使用的模式。
2: 门厅被卫浴空间占用一部分面积后,压缩成条形空间,透过两侧开口可看向卧室与起居室,直至两端窗外美景,形成了暗厅两侧向光的延展效果。
3: 卧室作为纯休息的空间,移门作为隔断划分与门厅的界限,北侧的方形窗作为取景框看室外玉兰花。
4: 由门厅走向起居室空间,从狭小空间走向更大空间,有一种豁然开朗的感受,起居室作为多功能空间,包含了餐厅、厨房、收纳、看球赛、以及客人临时住的沙发床,最南端的位置是可观胡同街景的书桌位置。
▼改造后室内概览 ©金伟琦
入户门面对是门厅与浴室共用的一面隔墙,顶面用深色木地板、墙面、地面材料也与其它空间统一,凸显质感。
作为全家最大的空间,这里承担了很多功能,厨房位置设计在靠墙一侧,敞开式的厨房,小而精,与电视柜和收纳柜在一个立面,备餐用的抽拉板隐藏在收纳柜里,餐桌靠近的立柱是用金属材料包起来的燃气管道,沙发选择可以睡眠使用的款式,沙发后吊柜是收纳屋主喜爱的书籍柜,电视柜到起居室入口两侧柜,再到沙发后吊柜,三面具备收纳功能。为了突出空间的包裹感,顶面用了深色地板,深色木纹地板与餐桌材质呼应。灯光设计在立面。
天气暖和的时候,打开最南端折叠窗,室内与室外融为一体,坐在这里感受胡同的市井气息。
▼厨房位置设计在靠墙一侧 ©金伟琦
室外是老旧的楼房,胡同里的平房,停的很靠近墙的车,电线杆,空调外机,金属护栏,街道上不时有过往的行人,也有街坊邻居站在胡同里聊天,室内住着的是一位对每一件物品都很讲究的屋主,室外室内形成很有趣的反差,同时也有些某些连接。这种特殊而鲜活的生活状态,是在北京胡同里独有的氛围。
▼胡同里的生活 ©金伟琦
▼起居室窗景细节 ©金伟琦
卧室作为纯休息空间,床尾走道很窄,所以调整床的比例,将高度降低,插座与开关整合在床头柜与墙面的凹槽中,布窗帘与金属暖气罩,形成了柔软与硬朗的材质对比。摄影作品是屋主拍摄的故宫。
▼卧室内部:柔软与硬朗的材质形成对比 ©金伟琦
三个功能独立划分开,马桶区、洗漱区、淋浴区分离使用的模式。
项目信息 设计师:罗秀达 施工图深化:何沙 摄影:金伟琦 主要材料:微水泥、水泥漆、木地板、不锈钢金属
材料品牌 全屋定制:班尔奇 微水泥: 宅匠 推拉门:和玺木门 家具:北欧表情、梵几 灯具:本土创造、FLUA 窗帘:米夫家居 洁具:卡斯科KASKADE


暗黑系,墙面微水泥吗?