南昆秘境艺术餐厅,惠州

南昆秘境艺术餐厅,惠州

南昆秘境艺术餐厅,惠州

南昆秘境艺术餐厅,惠州

南昆秘境艺术餐厅,惠州

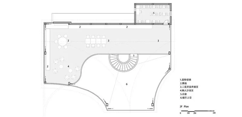
传统原型的拓扑演进;建筑与空间同步完成

南昆秘境艺术餐厅,惠州

南昆秘境艺术餐厅,惠州

南昆秘境艺术餐厅,惠州

南昆秘境艺术餐厅,惠州

南昆秘境艺术餐厅,惠州

南昆秘境艺术餐厅,惠州

南昆秘境艺术餐厅,惠州

南昆秘境艺术餐厅,惠州

南昆秘境艺术餐厅,惠州

南昆秘境艺术餐厅,惠州

南昆秘境艺术餐厅,惠州

南昆秘境艺术餐厅,惠州

南昆秘境艺术餐厅,惠州

南昆秘境艺术餐厅,惠州

版权声明:本文内容由用户自行发布上传或投稿由设计芝士代为发布,版权归原作者所有,设计芝士不拥有其著作权,亦不承担相应法律责任。如果您发现本站中有涉嫌抄袭或侵权的内容,请点此提交工单进行举报,一经查实,本站将立刻删除涉嫌侵权内容。
餐饮

拉面界最会玩的一风堂!设计出彩,又爱开脑洞!网友:年纪不大,搞好多花样!

2021-1-12 17:40:26

餐饮

这一年 石朝思 保持自知,保持思想独立

2021-1-12 23:33:58

0 条回复 A文章作者 M管理员
    暂无讨论,说说你的看法吧
个人中心
购物车
优惠劵
今日签到
有新私信 私信列表
搜索