“打造一座建筑就是在清晰澄澈的逻辑思考里,以空间结构传达真实世界里的概念,像是大自然、历史、传统及社会。”
看过新锐导演Damien Chazelle拍摄的歌舞片《爱乐之城》(LALALAND)的人,绝对不会忘记男女主在格里菲斯公园、天文馆、贺茂沙海滩的踢踏舞和浪漫约会。
影片将城市、天空、山、水、人联系在一起,撷取如梦似幻的洛杉矶风景,创造出充满20世纪四五十年代的复古风情,又现代范十足的瑰丽氛围。
依湖而生,三山围合的旭辉敔山公元也将对城市的礼赞融入建筑中,把多样的生命之美切面升格,以不同的艺术形式定义敔山湾的森林、湖水与城市,使建筑、人文、自然三个维度相互融合衬托,成就卓越的居住样板。
空间作为一种卓越的媒介,提供了追寻美的动力,充满魅力的对人文、艺术的体验和探索,是旭辉敔山公元为居住其中的人描绘出的新时代城市图景。
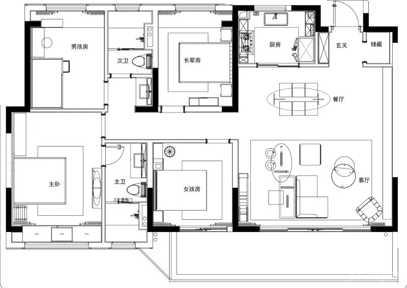
森之美——旭辉敔山公元125㎡户型 森林 · 光
在敔山湾,植物终年生长不息,自然无所不在,光线日日变化,季季更迭。面对着窗外的碧色风景,随太阳转移,时而灿烂、时而温柔的阳光,美好的生活瞬间就此定格。
四时不同的森林光影被敏锐的设计师记录于心,都市人对自然的向往亦得到珍视,旭辉敔山公元打造的是自然光影与城市相融合的一种印迹。自然与艺术融合,过去,现在,未来种种交汇,也成为这座城市和品牌美好理念的象征艺术。
层层叠叠的绿是客餐厅的色彩主旋律,沙发后的植物手绘墙与对面的植物主题挂画遥相呼应。阔大的落地窗犹如取景框,太阳的东升西落调节着室内的光影氛围,若隐若现的白色纱帘引入大量光线与自然风景,使人舒适地体会到自然的节奏。
客厅用双面沙发贯穿整个方厅,充分利用空间,一侧是客厅功能,聚会交谈,另一侧是体现绘画和书房办公结合的主题空间。
满眼绿意和通透的清风安慰了平日被繁杂工作侵扰的心,转过身来,餐厅空间一样被植物环绕。手绘墙的画面从客厅一直延伸到餐厅一角, 形成统一的整体。餐厅吊灯选择了顶级意大利玻璃灯具,晶莹剔透,弯曲的半圆形犹如灿烂微笑的嘴角,让人心情大好。
卧室空间的情绪,既是安静的,又是温和的。降低了色温的绿色展现出低调的隐退效果,将自然光分解柔化,显得轻盈,柔和。
儿童房布局优化,将床和柜子结合并靠床摆放,释放活动区域。墙面的攀岩道具可以满足儿童活泼好动的天性。大面积的手绘墙描绘出森林美景,家具和软装选择的原木色与绿色进一步加强了画面感。
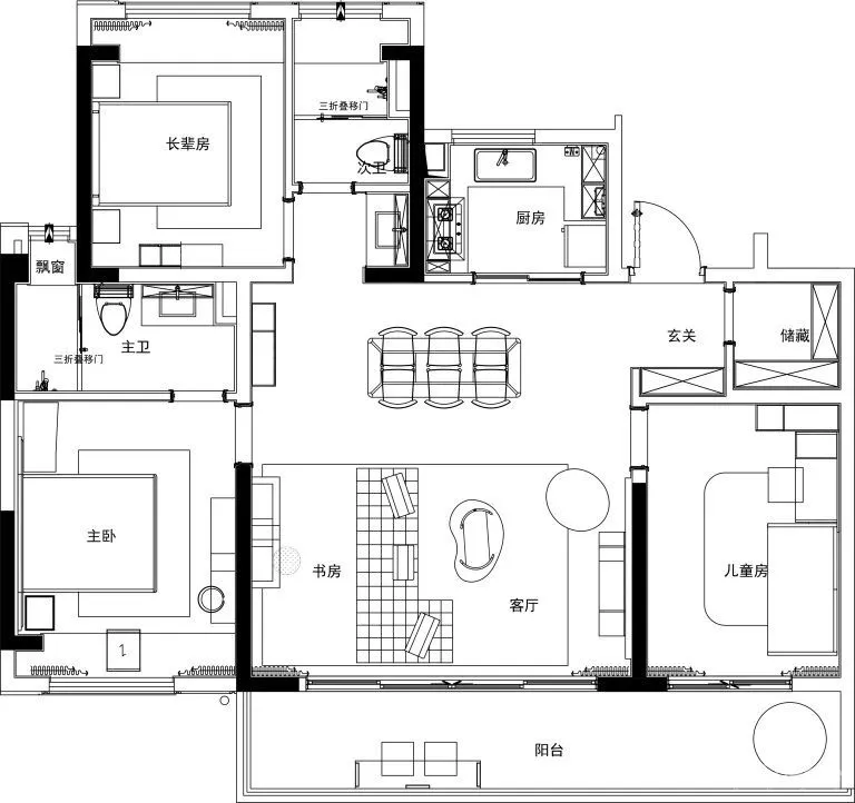
人文之美——旭辉敔山公元165㎡户型 自然 · 共生
城市与自然生态的结合包罗万象,山水树木空灵叠加,共生形成了不一样的艺术形态。将其解构融入空间中,成就了新时代的“雅奢”风范。
自然给予人的生命感即是美感,生命的内在丰富而浓烈,整个空间以流畅利落的线条秩序对比浓厚色彩,从内而外地传达自然共生,隐归本真的生活方式,让居住其间的人,真正领略生活,在呼吸之间,捕捉到瞬息万变的美妙。
客厅打破传统布局,采用双弧形沙发的围合形式凸显空间优势,并提升方厅气势。现代感十足的室内基调,点缀着考究的经典元素,稳重的灰白色调与飘逸的局部线条形成了前卫的视觉结构。单人躺椅兼具人体美学功能考量的流畅线条,浓郁的红穿插其间,实现了视觉的平衡。
音乐是陪伴,是慰藉,唱片装饰、复古唱机,乃至曲线边几,处处透露着音乐的气息。从客厅到卧室、书房,音乐元素在连贯之余形成强烈的视觉符号。
主卧以细腻、素雅为基调,装饰细节中带有幽微的诗意。功能上将衣帽间的梳妆台移至主卧,避免了衣柜在主卧功能的重复性,使飘窗功能得到释放。
为保证其他房间的私密性,将南侧最靠近客厅的次卧改为书房。用书架结合沙发的布局形式,具备休闲、影音多项功能,同时留足面积,创造出安静悠闲的合家欢场景。
次卧落落大方,以浅米色系为底色,大面积素色彰显温润与雅致的品位,陈设饰品亦极为考究,品质与格调在不知不觉间提升。
水之美——旭辉敔山公元143㎡户型 艺术 · 水
在敔山湾,植物终年生长不息,自然无所不在,光线日日变化,季季更迭。面对着窗外的碧色风景,随太阳转移,时而灿烂、时而温柔的阳光,美好的生活瞬间就此定格。
敔山湖是这座城市的养分,亦为在地文化的一部分,此户型设计以水为点,引水入室,构思空间物体形态与色彩。
普列兹克奖得主包赞巴克认为,最为抽象的部分往往最为卓越。不易被直接看穿或是理解的事物往往更耐人寻味。“水”在此空间的体现也并非是以水流或瀑布这般具象地存在,而是将其淬炼为抽象写意的形式,在行走间感受水姿意奔流的视觉体验。
客厅既是家的中心点,也是家人休闲互动的天地,组合的沙发和办公亲子的布局形式,营造了一个活力的SOHO亲子活动的客厅氛围。
蓝是水的专属色,充满艺术张力的克莱因蓝饱和度极高,纯粹利落。大面积的米灰色与克莱因蓝碰撞,对比鲜明。曲线设计家具和波浪纹地毯为空间增加节奏感,仿佛层层浪花被魔法固定,不自觉地让焦点停留。
餐厅以蓝白为基础色调,银色蜡烛与餐具为色彩增添金属的质感,精致的生活情愫于曼妙的光影间流淌。
卧室的设计延续了客厅的用意,从墙体到软装,均以淡色调为主,搭配蓝色布艺,色调深浅错落有序。极具特色的墙面装饰及摆件,跳脱出轻灵的节奏感,生活和艺术在此紧密融合。
男孩房改变传统布局方式,将书房和儿童活动空间结合,飘窗与书桌结合做收纳,小朋友和父母有了共同的活动空间,父母更能兼顾孩子的成长。
女儿房优化空间增加了书桌功能。爱丽丝梦游仙境的二次元女孩主题构成了属于孩子的私人空间,充满浪漫的想象。
项目名称:旭辉敔山公元样板间
设计时间:2020.9
完工时间:2020.11
项目摄影:又与空间——普尤
元禾大千——艺术成就空间价值
元禾大千艺术品有限公司,是一个以艺术为驱动力的软装设计品牌。元禾大千诞生自2007年,专注为售楼中心、样板间、酒店、会所等公共空间,提供深度、全面、专业的软装设计和定制艺术化空间服务。
业务SERVICES:空间装饰设计、采购与落地布场、艺术定制化生产、推广宣传
态度ATTITUDE:专业、全面、深度、高配合度

