项目名称丨 落霞
项目坐标丨 揭阳榕江明珠
项目类型丨 私宅
项目面积丨 180㎡
设计机构丨 深圳市欧素娜空间设计有限公司
施工团队丨 榕岐装饰
软装团队丨 OUA
摄影机构丨广州大象摄影
主要材質丨KD板、劳伦黑金大理石、岩板、柔光砖
业主要求:不喜欢累赘的装饰,更追求功能的实用,希望用细节塑造空间质感,打造有格调的家居氛围。同时也要有足够的储物空间,方便打理。喜欢现代时尚的酷感氛围,能包容一些成熟男性的精致品味。
天光不动晚云垂,芳草初长衬马蹄。
新月已生飞鸟外,落霞更在夕阳西。
花开有客时携酒,门冷无车出畏泥。
修禊洛滨期一醉,天津春浪绿浮堤。
–北宋诗人张耒
本案业主为多年好友,装修期间单身。为人低调而讲义气,犹如黄昏中的一抹落霞,让人感觉深沉而温暖。此次为他打造的住宅,灰色调为主,橘黄色为点缀,犹如他的为人,沉稳而有温度。
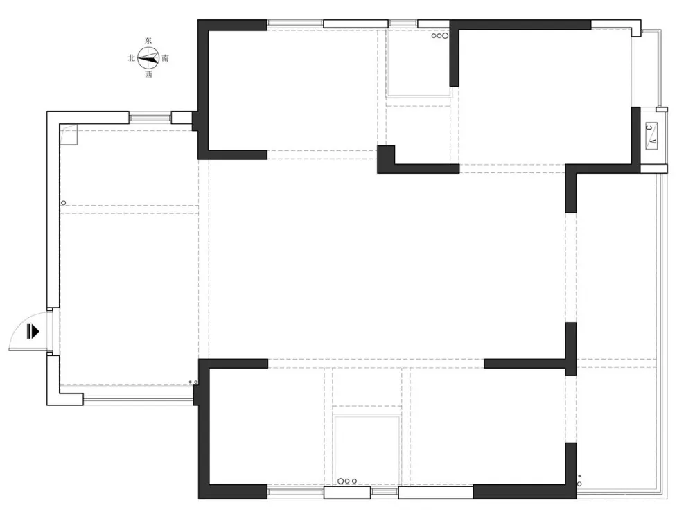
The Origial Structure 原始结构
Plan 平面布置图
Living room 客厅
无需过多装饰 舒适就是回家的唯一感受
全开放的布局,整个客餐厅毫无阻隔,餐厅和客厅之间没有隔墙,减少了两个功能区的隔阂,增加了使用面积,同时也让采光和通风性得到了大大加强。无主灯的设计,只在餐厅区域悬挂低垂的吊灯搭配暖光,营造良好的就餐氛围。
客厅大平顶设计简洁干净,拉伸视觉层高,光线能够均匀散落,有层次地利用光线,使空间氛围更具格调,在细碎美好中感受世间的温柔。
电视背景墙还做了部分开放层格来拓展收纳,紧凑的胡桃木格栅条排列与疏朗的肚白岩板巧妙结合,节奏清晰分明带来变化的视觉体验,柔软细腻相互平衡,材质的碰撞与融合,丰富空间层次,同时赋予空间高级质感,明度上形成强烈对比,使空间质感更显硬朗简洁干净,进而打破单调界限。
劳伦特黑石板地台落地,右侧壁炉中跳动的火光凸显品质和复古温暖的情怀,宛若夕阳中的一抹落霞,生机盎然。
景观阳台纳入客厅,使整个客厅更加宽敞通透。
”新月已生飞鸟外,落霞更在夕阳西。”
在客厅的阳台做了储物柜,封闭空间用来收纳不常用的物品。夕阳映衬在柜门犹如天边的一抹云霞,让人心生暖意。
沙发背景使用意大利灰大理石与木饰面对撞,石是自然的矿物质,有着坚硬冰冷的属性,却可以在设计师的手中变得柔软而温暖。“木”的温和坚韧最易带来亲切感,与人类居所密不可分。
Dining-hall餐厅
百味皆尝
餐厅开放式的布局,餐厅+岛台的设计营造出明亮且宽敞的空间氛围,把餐桌上的酸甜苦辣咸,和生活的每一个瞬间都连接了起来。
黑色大理石吧台延,与白色岩板餐桌相接,一黑一白,一木一石,温润与冰冷相遇,成就了彼此最美好的模样。一张餐桌,几把餐椅,一家人来来往往、品尝美味,满足,却又不拥挤,一切都是从容优雅的。
“花开有客时携酒,门冷无车出畏泥”
吧台下设计有红酒柜,吧台与酒柜的结合增添了高档精致的气息,寄托主人的喜乐,折射出主人的内心浪漫。在闲暇时光喝喝小酒,一切尽在不言中。厨房与餐厅仅一步之遥,玻璃移门总给人犹抱琵琶半遮面的效果。
厨房 Kitchen
白日焰火
厨房是最生活的地方,虽不是现代青年最常需要之处,但也最能体现出生活态度。
简明的色彩,让厨房有了整洁的视觉基调。黑白烤漆柜面门搭配,白色大理石纹理瓷砖,在无形间给厨房获得了扩容,不同肌理与光泽度材质的对比变化,让厨房空间更具质感与韵律。在这样一个干净的厨房里,期待业主做出丰富可口的美食,为这个空间带来更多生活气息和温馨色彩。
Master bedroom 主卧
岁月的温柔一如既往
主卧采用木皮饰面,与沙发背景呼应,金属镜面拉槽做结合配上进口灰色大理石,多样化的材质使用及融合,空间更加温馨洁净,搭配简约造型的家具,融入暖光烘托氛围,让空间富有现代感而舒适温馨。
一张舒适的大床,极简的床头柜,搭配点光源灯装饰,为休憩提供一个宁静舒适浪漫的睡眠环境。
窗台的处理兼顾了晾晒和阅读的功能性。墙面铺贴饰面板与墙布,宽窄相间的比例线条让空间有律动的节
奏感。
Walk-in Closet衣帽间
精致生活的表现形式
一整片衣帽间,整齐条理地陈列摆放衣物。一抹粉色暗示着女主人即将来临。
利用隔板和抽屉搭建合理的展示柜,业主生活中爱好的物品在空间中被谨慎地呈现出来,机械表,邮票等。
Kids bedroom 小孩房
美好的期待
未能知道你的性别,却对你的到来充满期待。小孩房采用中性的设计,结合空间及小孩爱玩天性采用高低错落的榻榻米,希望ta拥有一个快乐的童年。
Conclusion结语
“我是无名的行窃者,黄昏落霞时偷来你的名字酿酒,一饮便是一生,我醉得甘愿。”
装修完成,好友也结束了单身生活,迎来了属于自己的幸福。


?