项目名称:空间等级与层次的边界营造——泰宏建业接待小楼
设计公司:边界空间设计
www.boundaryspacedesign.com
bsd_tom@aliyun.com
项目设计 – 完成年份:2020年
主创及团队:黄三秀、高魏东、施甫、吴尚明、林智峰、彭小玉
项目地址:中国郑州市泰宏建业国际城
建筑面积:2000m2
品 牌:西顿、富美家、捷易成石材、宝泽金属
空间等级与层次的边界营造
Boundary Creation of Spatial Hierarchy and Layers
——Tihome – Jianye Reception building
从外部到内部的空间关系中,空间等级层次的建立与营造,对空间氛围有着极大的作用。在项目改造的的初期,我们意识到了这一点,随着项目的推进,这种感受愈加强烈。
In the outside-to-inside spatial relations, to construct a spatial hierarchy plays a significant role in the creation of space atmosphere. Actually, in the early stage of renovation project, we have been aware of this; moreover, with the progress of the project, this feeling became more and more intense.
本项目是一栋临时用于公寓样板展示的接待小楼改造。我们利用原建筑的结构框架,将展示的几个“盒子”插在框架内,像是养花用的架子,散乱养几盆植物。整个建筑,我们就看做是一个立体的花园……
This project is the renovation of a small building for temporary apartment model display. By utilizing the structural framework of old building, we insert several “boxes” to be displayed into the frame, just as we place scattered pots of plants in the shelf for flowers. The whole building is considered as a three-dimensional garden…
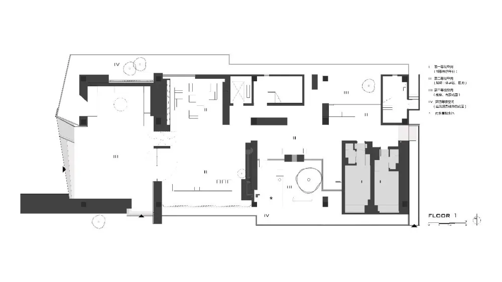
这几个盒子我们看作是空间的第一等级,毕竟是为了展示才改造这个建筑。作为商业样板的第一空间,在此不作分析,重点是作为第二等级空间的接待公区及之后的几个层次以及他们之间的关系。从另一个角度,其实我们更愿意反向来排序,将展示样板放在最后一个层次里,排在空间体验过程的末端。
These “boxes” are regarded as the first layer of space. After all, the building is renovated for display. The first space as a commercial model will not be analyzed here. We will lay our emphasis on the reception area as the second-layer space, the subsequent layers and their relationship between them. From another perspective, we pfer the reverse order; namely, we place the display template in the last layer — at the end of space experience process.
第二层次的空间就是室内的公区,这是诸多空间里感受最丰富的区域,它是我们空间的重点。我们希望这个区域有着由外到内的模糊、暧昧的空间氛围,有室外的自然与放松,又有室内的舒适与安静。怎样处理这个区域的建筑气候边界,无疑是实现这一想法的有力途径。我们尝试打破与移动建筑原有的室内外的边界,重组整个空间的内外关系。使得外部空间侵入进建筑,又不进入室内,形成建筑内的室内的外化空间。通过这样的操作,在作为第二层次的公区室内和作为第四层次的外部花园相互作用下,产生了各自相邻的外延模糊空间, 与入口的门廊并列作为空间的第三等级。
The second-layer space is the indoor public area — an area bringing the greatest experience. Obviously, it is the focus of our space. We hope that this area strikes us as vague and ambiguous from outside to inside, specifically, a harmonious space atmosphere integrating outdoor ease and relaxation with indoor comfort and quiet. Undoubtedly, how to deal with the architectural climatic boundary in this area is a powerful way to make this idea come true. We try to break original indoor and outdoor boundaries with mobile buildings and rebuild the internal and external relationships of the whole space. The external space is driven into the building, but it does not invade the interior, forming an outer space inside the building. By doing this, under the interaction of the interior public area as the second layer and the external garden as the fourth layer, their respective fuzzy extension spaces adjacent to each other are generated, which, together with the entrance porch, is regarded as the third layer of space.
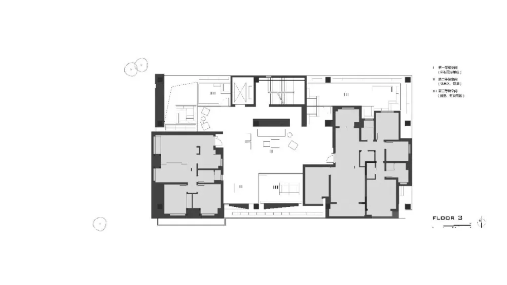
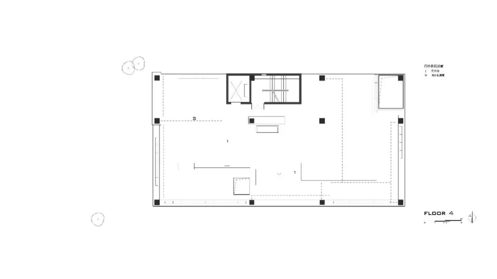
小楼有四层,一至三层是有展示功能,四层是作为下面植物休养生息的过渡花园,各层之间有着它们各自的生态联系。我们在各层楼板开洞,使得每一层都有挑空,空间纵向之间得到了新的空间层次,每层的挑空区域则各有不同,建筑主体形成了一个真正上下通透的“架子”。
There are four floors in this small building. The first to the third floors have the display function, and the fourth floor is the transitional garden for free growth of the plants below. For each floor, it has its own ecological connection. We dig a hole in the floor slabs on each floor so that each floor can have a new void. Meanwhile, a new spatial layer is obtained longitudinally between voids. The void area of each floor varies, hence making the main body of building form a “shelf” truly transparent from top to bottom.
平面范畴的内外进退关系与每层之间的挑空连通关系,让各个空间之间有了多维的丰富性,形成内与外的、上与下的多等级的空间层次。空间之间不自觉的会形成诸多的对望,让整个建筑的公区犹如自然山体意向,盘桓其中,虽不能居,但可观,可游……
The relationship of advance and retreat formed horizontally between interior and exterior spaces and the relationship of void connection formed between floors enable spaces to be endowed with multi-dimensional richness, creating a multi-layer spatial hierarchy between the inside and outside, the upper part and lower part. Naturally, many scenes of face-to-face gaze are formed between spaces, making the public area of the whole building be like a natural mountain “intention”, surrounded by them. Although it is not possible to live, it is impssive to visit and tour…
原建筑的屋面排水管随柱而下,本来包括在墙体内,因我们只要结构,它便暴露无遗。使的本来干净的“架子”显得杂乱。园冶中讲到”巧于因借,精在体宜”,我们何不做一番改造,让它体宜呢?于是有了整合屋面排水引到一层作为水景的装置。如逢落雨,在室内均能听到水响。晴天打开循环系统,收集的雨水也会如注般落如水池,为空间增添一层诗意的氛围。
The roof drainage pipe of the old building was paralleled down with the column, which was originally placed inside the wall. But as what we want in this renovation was the framework, it had to be exposed, which made the clean “shelf” look messy. The book of The Craft of Gardens said that the ingenuity lies in skillful use of original conditions and the beauty lies in appropriate shape and size. So, why don’t we make some transformation to make it suitable for the psent style? Therefore, a smart device is designed for roof drainage to the first floor as a waterscape. In case of rain, the sound of water can be heard indoors. On sunny days, when the circulation system is opened, the rainwater collected will pour into the pool, adding a poetic atmosphere to the space.
Project name:Boundary Creation of Spatial Hierarchy and Layers——Tihome – Jianye Reception building
Design:Boundary Space Design
www.boundaryspacedesign.com
Contact e-mail:
bsd_tom@aliyun.com
Design year – Completion Year:2020
Leader designer – Team:Tom Huang、Fu Shi、Allen Gao、shangming Wu 、Zhifeng Lin、Xiaoyu Peng
Project location:Tihome – Jianye Guojicheng,Zhengzhou City, Henan Prov,China
Gross Built Area (square meters):2000m2
Photo credits:Chen Bing
Partners:Tihome Construction
Clients:Tihome – Jianye
Brands / Products used in the projrct:CDN Light、Formica、Jieyicheng Stone、Valuable Metal
边界空间设计公司由黄三秀、高巍东、施甫成立于中国杭州,拥有一支优秀的设计师团队。 主要从事室内和中小型建筑物的空间设计研究,提供专业的可行性设计解决方案和咨询。 研究项目的独特背景包括文化,场所,空间,照明和通风以及局限性。 更加注意空间中的“人”,并从感知和理性的角度处理边界之间的关系。 通过处理空间比例和光线,探索空间和组成元素的边界及其合理的处理方法,使空间具有遵循主线的独特质感和氛围。
地址:杭州市江汉路1785号双城国际1号楼401室
电话:0571-86950521 18957162037
Address: 401,Building1,Gemini Mansion,1785 Jianghan Roa,Hangzhou
TEL:0571-86950521 18957162037

