 
 
Mango Bay Resort度假村是越南富国岛上的一个著名景点,度假村因良好的生态环境吸引着八方游客,面积约10公顷的土地上洒落着44个客房,舒适的居住环境,成为富国岛上的室外桃园。但是度假村经过漫长的运营以及建筑自身的老旧问题成为度假村翻新的必要因素。
 
 
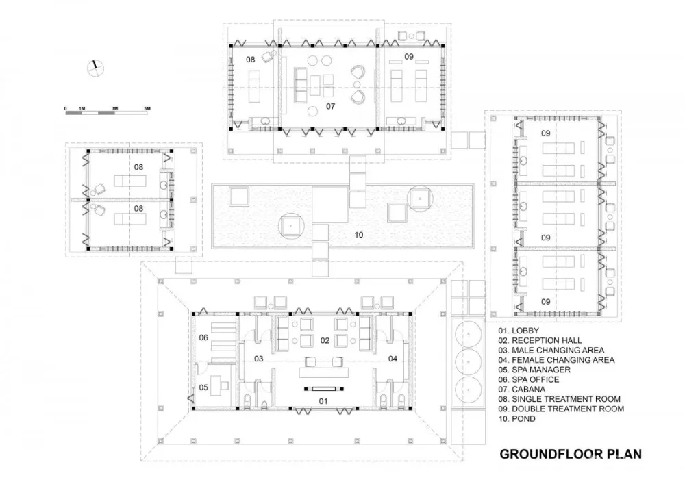
这次由新加坡的建筑设计工作室PI Architects担纲水疗中心的翻新设计。一条天然的未经修饰的小路链接新的水疗中心和旧的水疗中心,旧水疗被重新规划为瑜伽和太极拳的练习场地。新的水疗中心由4座独立矩形建筑组成,有连廊链接,连廊四周围绕着一个景观池塘。
 
 
PI Architects设计过程中始终遵循以下原则:继承整个度假胜地的简单,质朴但舒适的精神。
PI Architects经过多次现场踏勘分析,最终水疗中心被设置在朝海的小坡上,隐藏在原有建筑平房后面,四周被丛林包围,私密性很好。
 
 
 
 
 
 
两个主要建筑物包括接待区、更衣室、淋浴、治疗、治疗后的放松区,而两附属的建筑物的功能是理疗室。每个理疗室都有私人露台而且与一个小花园相连。
 
 
该项目的特点是使用夯土墙。这也是该度假村先前建造的平房的工艺做法的延续。那些厚厚的墙壁,再加上伸挑的屋顶和木制百叶窗门户,营造出通风效果极好的舒适内部空间,这样的房间不需要空调从而节省能源。
 
 
这些带有百叶窗系统的木制百叶窗,可以根据客人需求和心情自由开启,人工控制室内的光的照度。
 
 
 
 
整个度假村的景观还遵循度假村建造初期的理念,在花园中使用当地的植物和花卉。唯一的例外是景观池塘中种植特殊的鸡蛋花,代表了祈求和平和希望的愿望。
 
 
 
 
 
 
 
 
 
 
 
 
在施工阶段,我们尽量避免破坏周围的丛林。在建筑物成型后,园丁立即开始种植新的树木以替代砍伐的树木,保持生态的平衡和修复。
 
 
这些树木以前是在度假村自己的苗圃里种植的的。因此建筑主体完工以后这些苗圃的植物移栽到建筑周围,经过时间的洗礼和热带雨季后展露出勃勃生机,完美的衬托了度假村的主体建筑。
 
 
 
 
 
 
 
 
 
 
 
 
 
 
 
 
 
 
 
 
 
 
 
 
 
 
 
 
 
 


