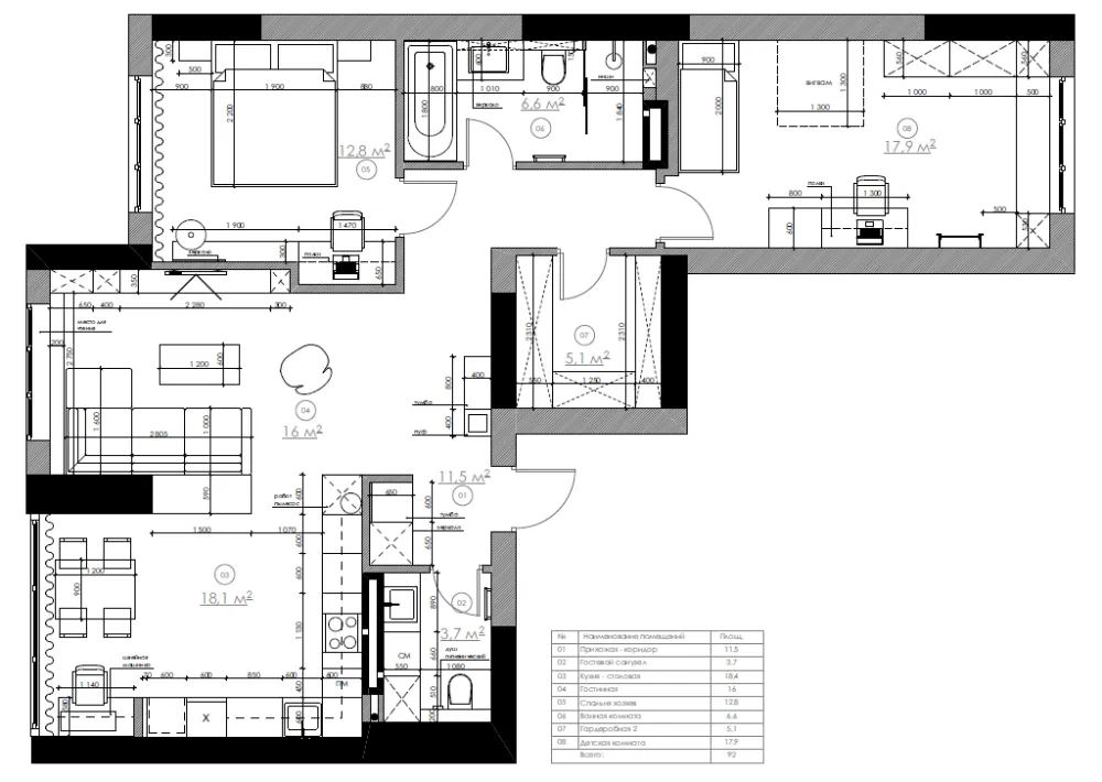
Taras Belik新作,这套两室公寓面积88㎡,天花板高度2.71米,设计师规划一个宽敞的开放式空间,包括厨房,饭厅和业主的工作室,客厅以及卧室,儿童房,更衣室,主浴室,客用浴室和大厅。
年轻的业主希望他们的家,
轻快舒适,设计师采用了自然轻巧的配色,结合质朴的材料,打造治愈的居住空间。
Taras Belik新作,这套两室公寓面积88㎡,天花板高度2.71米,设计师规划一个宽敞的开放式空间,包括厨房,饭厅和业主的工作室,客厅以及卧室,儿童房,更衣室,主浴室,客用浴室和大厅。
年轻的业主希望他们的家,
轻快舒适,设计师采用了自然轻巧的配色,结合质朴的材料,打造治愈的居住空间。
之前
