杭州,山水相依,湖城合璧,古老文明与创新创意交迭,延伸为当代的城市文脉。而这座最能代表江南韵味的城市,已连续第14年蝉联“中国最具幸福感城市”榜单。
Lights are either dotted or inlaid with geometric patterns on the ceiling. The lighting coordinates with natural light, and helps create a warm, cozy working atmosphere.
 
 
中豪·五福国际,位于钱江新城江河汇流区核心,以世界级标准打造多元城市综合体。继国际售楼处项目合作之后,如墨设计再度受邀为其办公室样板间进行室内一体化设计,以适变的思考探究人的本质需求,创造出既兼具人文美学与自由,又给予多元选择的国际化办公场景。
Located in Qianjiang New Town, Hangzhou, Zonhow · 5Fook International is a world-class urban complex that integrates working, exhibition, commercial and residential functions. After finishing the sales center of the complex, RUMO DESIGN was invited to conceive its model offices. The design team explored the essential demands of people based on the idea of adaptability, and created diverse modern office scenes that combine humanistic aesthetics and flexibility.
 
 
 
 
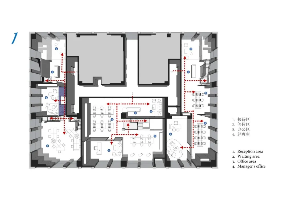
一变三|以“空中会客厅”为概念,
演绎Loft办公样板空间想象
One floor, three offices | Taking
Urban living room in the air
as the design concept, RUMO DESIGN
conceived 3 loft-style model offices
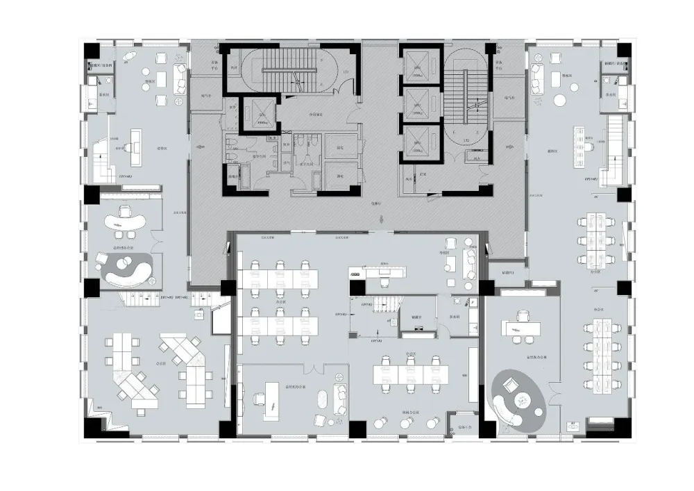
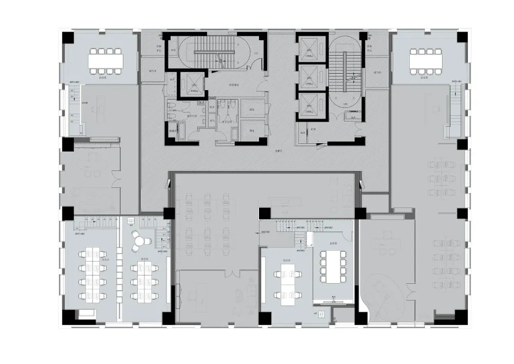
三个办公样板位于这座5A级写字楼的同一层,设计团队依据空间构造和使用者偏好,推导出各不相同的定位与风格,但都兼顾商务办公、社交及休闲等多重需要,完成人性化布局的同时充分雕琢每一个细节。
The three offices sit on the same floor of a 5A-class office building. Based on spatial structures and the pference of users, the designers worked out different styles and positioning for the three workspaces. However, they all satisfy multiple demands such as working, socializing and leisure, and showcase human-centric layout as well as meticulous details.
 
 
 
 
 
 
West model office: stylish
静谧且耀眼的蓝映衬在白、灰铺陈的底色中,以极具冲击力的视觉元素激活空间活力。前台空间糅合多元却不失惊喜,给予进入者无限的遐想。
The space is dominated by white, gray hues and highlighted by eye-catching blue color. Contrasting tones produce dramatic visual effects, and at the same time energize the space. The reception area integrates diversified elements, to create the unexpected and evoke infinite imagination.
 
 
犹如绚烂绽放的花朵造型座椅静置于等候区,中央则安放着交错叠层的透明茶几。其间碰撞交融的烈焰红与经典蓝抢夺了所有目光,衍生出兼具时尚新潮与艺术气息的场景。
Flower-like chairs are set at the waiting area, where a layered transparent tea able is placed at the middle. The collision of red and blue creates a visual highlight, and generates a stylish, artistic scene.
 
 
工作区通道演绎潮流前线,极富创意的时尚大片与蓝色所代表的潮流色彩席卷而来,创造出充满趣味的互动区域。
The passageway is trendy. Creative fashion photographs and stylish blue hues make this area playful and attractive.
 
 
内部私密的工作空间反之呈现出舒适的氛围。
The inner working area is comfortable and private.
 
 
 
 
向里推进,愈加自然和时尚的细节设计全面舒展。天花处纵横交错的线条在灯光的渲染下为空间注入律动节奏,经典且优美的座椅尽显时尚元素的美感。
Its accentuated by natural and fashionable details. Intersecting strip lights on the ceiling inject a sense of rhythm into the space, while the classical and graceful chairs showcase a fashionable aesthetic.
 
 
 
 
 
 
经典永不落的黑白配描绘着阶梯通道,与脚下间隔闪耀的星光共同焕新先锋格调,行走中旁侧点缀的艺术装置随即成为一处景观。
The staircase area is depicted by white and black hues. Starry lights inserted into stairs as well as the artistic installation beside create fantastic visual and walking experiences.
 
 
二层会议室与办公室延续时尚简约的风格元素。利用前沿且通透的亚克力柜分隔办公区域,同时为场景营造了独特的画面。抛弃繁杂的修饰,空间以设计的质感和色彩的感染力演绎时尚先锋之所。
The meeting room and working areas on the second floor adopt a modern, simplistic design style. A stylish and transparent acrylic cabinet separate the two working areas, while at the same time creating unique spatial scenes. The interior design shakes off complicated adornments, and produces a trendy workspace via tasteful elements and a powerful color palette.
 
 
 
 
 
 
 
 
South model office: natural and elegant
木质显露的肌理与原始的木色于前台处强烈地霸占了视觉画面,一直延展至旁侧的等候区。塑造一面通体绿植墙,将自然的气息扩充到极致,以开阔的姿态和亲近的色彩为进入者带去生机与活力。
The warm tone and textures of natural wood dominate the reception desk area, and extend to waiting area on the side. The full-height greenery wall creates a breathing space, and injects natural vigor into it.
 
 
 
 
顺应空间格局将办公区位穿插其中,自然形成不同角度的排位特点。不规则线条与跳跃的色彩灯光相互协作,为天花设计解构个性且特有的美感,营造出激活办公空间的视觉律动。
Working zones are subtly arranged within the space. Irregular lines and alternating colors of lights make the ceiling distinctive, and activate the workspace visually.
 
 
 
 
 
 
处于场景中心的阶梯通道沿用木质铺陈且交错柔和的灯光,给予悠长深邃的感受,同时以独特的位置创造了人与景的趣味互动。旁侧另陈设的艺术装置,帮助增添了人文艺术的气息。
Set at the center, the stairs are paved in wooden materials and complemented by soft light, which generate a sense of depth. The design tries to stimulate users to interact with spatial scenes as walking on the staircase. Moreover, the art installation on the side adds a humanistic and artistic touch to the space.
 
 
打破传统布局,以开放式设计打造茶水区域,毗邻办公区位则为员工提供了及时所需。休憩放松的时刻静坐于窗边,或远眺室外的风景,或放空自我。
Situated next to working area, the break area adopts an open spatial pattern. It allows the employees to relax, enjoy outdoor view and meditate.
 
 
奇特的镜像隔断连接二层会议室与办公室,扩展了小空间的视觉尺度,同时形成相应的趣味。
The conference room and the working area on the second floor are partitioned by glass, which visually expands the space and injects playfulness into it.
 
 
 
 
独立且开敞的办公空间充盈着自然温馨的气息,以高质感的表达营造轻松惬意的环境氛围。
The working area is independent yet open, infused with a natural, cozy and warm atmosphere.
East model office: geometric and modern
洁净的空间基底中流淌着独具魅力的几何语汇,以多样的姿态充盈了视觉感官。摩登奇异的画面意境完美呼应着每一个点、线、面的配合,摆脱平庸的同时引导了注意力。
The white, clean space is enriched by geometric design languages. Fantastic modern scenes echo with the mix of points, lines and planes, together creating attractive visual effects.
 
 
错落叠层的大理石阶梯与曲折婉转的灯饰于前台处演绎极致的几何律动,等候区则以留白手法匹配富有设计感且高品质的舒适配置。
Stacked marble stairs and the twisting lighting fixture produce charming geometric rhythm at the reception area. The waiting zone features large areas of white surfaces, which are complemented by comfortable modern furniture.
 
 
 
 
横向舒展的开放式布局给予一层空间通透且自由的氛围,隐约之美的线性隔断让场景相对分隔又绝不割裂,由此显露出交互的趣味性与工作的灵活性。
The horizontal and open spatial pattern gives the first floor a transparent and free ambience. Besides, grille partitions separate yet connect different scenes, hence showcasing flexibility and stimulating interaction.
 
 
几何图案拼接而成的地毯丰富了色彩层次与张力,延伸至空间整体。
The carpet is highlighted by geometric patterns, which extends throughout the space and enriches its color palette and tension.
 
 
 
 
平行交错的通体收藏柜以独特的视角创造了靓丽的景观,也为内侧私密的工作区域戴上了华丽的面具。
Several full-height cabinets are brought in, which not only optimizes visual experiences but also offers privacy for the inner working area.
 
 
 
 
 
 
柔和的灯光分布于天花处,或照亮四周边界,或聚焦主题。同样作为局部修饰与自然光相互协作,帮助营造温馨、舒适的工作氛围。
Lights are either dotted or inlaid with geometric patterns on the ceiling. The lighting coordinates with natural light, and helps create a warm, cozy working atmosphere.
 
 
以简洁的曲线勾勒二层空间变化,设计与人文艺术的美感弥漫于每个角落,办公时间同样也能享受自由与“家”的舒适。
Neat curves add changes to the second floor section. Characterized by unique design details and an artistic aesthetic, the second floor enables employees to enjoy a free, comfortable home-like atmosphere in the workspace.
 
 
 
 
 
 
项目名称:中豪·五福国际办公样板
Project name: Zonhow · 5Fook International Model Offices
Location: Hangzhou, Zhejiang, China
项目面积:西边套304m²、南边套266m²、东边套224m²
Project area: west model office – 304 m²; south model office – 266 m²; east model office – 224 m²
完成时间:2020年7月
Completion time: July 2020
Interior design: RUMO DESIGN
软装设计及执行:如墨设计
Decoration design – execution: RUMO DESIGN
主要材质:编织地毯、镀膜玻璃、木饰面、金属
Main materials: woven carpet, coated glass, wooden veneer, metal
Photography: Threeimages
 
 
 
 
如墨设计于2013年成立,坐落中国上海,致力于提供室内设计咨询、照明设计咨询、软装设计与采购服务、配套技术支持及现场服务。设计服务类型涵盖:高端地产、精品酒店、豪华住宅、商业及医疗等领域。
设计团队拥有卓越的专业技能和严谨的职业态度,兼纳艺术美学与人文精髓的空间演绎,为其在业内权威设计大奖中屡获殊荣,包括意大利A’设计大奖、德国标志性建筑设计奖ICONIC、法国巴黎DNA设计大奖、墨尔本设计奖、世界设计奖、加拿大GPD、亚太IAI等国际级专业奖项。
“一如既往,不拘绳墨”,秉承追求完美解决方案的信念,坚持从客户感受和体验出发,与众多知名上市地产公司建立了长期合作关系。以全球先进专业技术和设计理念为核心、可持续发展为基础,竭力为客户提供创新、高效、切实的综合性空间解决方案。



现在这个浮躁的世界,能细心整理一些东西发上来的越来越少了。要么就是敷衍的图片,要么就是枯燥的文字。之后就是AI生成的预制菜类的打包便捷快餐了。感谢楼主的分享,让我能在大智能无人化来临之前,看到同类发出的项目。有幸与您互动,缘分2
是不是一直复制,人就会变懒,变笨,第一次的复制粘贴,可能还略带羞赧,第二次再复制,内心的自责就少了一分,第三次毫不犹豫的ctrl+v 是那么的心安理得。回头一看,重复的留言已经700多条了。心安理得么?得到了什么呢?
人生本就短暂,走了除了家里三代人能记得,谁有会记得谁呢?反倒是这数字世界会多多少少留下我们的印记,然而周而复始的评论终究无法让人看上一眼,注定成为网络垃圾。
垃圾+6
昨天看到儿子在家里玩儿我的世界积木。突然发现小孩子每天都能摆出不同的造型,比之以前已经创造出很多有意思的空间设计了,除了地上建筑里刚需的客餐卧,还有地下室活动空间,储藏室,战备工具间。。。。。儿子是彩色的,而我的色彩饱和度越来越低了。
宝剑锋从磨砺出,梅花香自苦寒出。