It is the eldest daughter of God——Joe fowler 光是上帝的长女——托·富勒
光线是建筑的生命力和灵魂。同心同盟设计以光和金诠释港式轻奢的设计美学,负责整个空 间的硬装设计,以石材、金属、皮革的中性色调为主,用色彩的纯度传递细腻的质感,力图 在时代新贵的礼序功能要求与舒适生活之间找到完美平衡。
宣传片视频放置
腾讯视频连接:https://v.qq.com/x/page/u3208l1xopi.html
(建筑外观) 水月镜花,光影交错,浪漫的法式风格建筑外观,带来独一无二的异域风情,就像一座内敛低调的城堡,静候归家的旅人。
(过厅)
引光造景 引光入室,引景相伴,大面积的窗户,带来更加通透的空间感,室外美景一览无遗。作为分 隔空间的屏风选用皮质包被,带来更精致的细节。 金与光相互呼应,则氤氲出一种品质的奢华感。金边线条的应用,延伸了视觉,在方正的秩 序感上,增加一丝浪漫和灵动,勾勒出最具灵性的空间。
(会谈区)
心频碰撞 会谈区的设计,排布出空间的疏密节奏,在整体形成了中正有序的格局,层次分明,使得空 间与人的频率产生对话和交流,使之彼此契合。 它是一种对称的美,是一种秩序的美,是一种理性的美,是一种干净澄澈的美。好像坐在这 里,就可以放松自己紧张疲惫的心。
(沙盘区)
别有洞天 步入沙盘区,大气与轻奢跃然于眼帘。曲线、色彩、质感,在这里彼此碰撞,更显层次丰富。 金属、水晶、大理石、光、线的应用,带来华美而璀璨的视觉盛宴。 值得一提的是,我们将墙体与不锈钢架子作虚实结合处理,更显节奏序列感。没有大面积使 用墙,显得空间大,这种设计灵感来源于日本设计大师隈研吾,他追求建筑的融合和透明性, 把老的、新的、大的、小的、人工的、自然的,所有一切都杂乱无章地混合在一起,从而让 设计别有洞天,从不同的角度去看,就会有不同的感觉。
(楼梯)
光影漫步 我们对水吧台酒柜的背体进行发光处理,让整体的层次感更丰富,简约舒适却优雅高级。
(VIP 室)
又见静谧
VIP 室整体延续了暖白色的色系,自然光与人工光源的相互配合,雕刻了静谧的时光,让空 间的优雅质感恰到好处。
步梯蜿蜒,拾阶而上,在光的沐浴中,人生的前进步伐,仿佛豁然开朗。
你知道
我们向往家的感觉
也朝着期待的世界努力
我们追逐光
也追逐滚烫的金色梦想
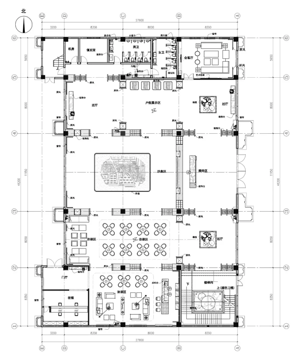
售楼处一楼平面图
项目主题 | 金色光华 向光生长
项目名称 | 西安沣西香榭汇丰营销会所
硬装设计 | 深圳市同心同盟装饰设计有限公司
甲方单位 | 西安谷郡房地产开发有限公司 项目地址|陕西西安
设计主创 | 陈伟文 秦航 翁煜生 徐卉慧
设计面积 | 2156 平方米
完成时间 | 2020年11月
摄影单位 | RICCI 睿奇空间摄影
关于 TT.DESIGN
TT DESIGN(深圳市同心同盟装饰设计有限公司)专业为地产开发商、酒 店管理公司、商贾名流等提供顶级定制室内设计、陈设设计及专业顾问服务, 是中国启用“英式管家”室内设计顶级服务机构,业务涉及品牌酒店、顶级 会所、地产样板、商业办公、私人豪宅等多元领域。TT DESIGN 自 2011 年创立至今,项目足迹遍布 65 座城市,完成了 300 多个精品项目, 斩 获了近百项国内外权威机构颁发的重量级奖项。充分得到了华夏幸福、花样 年、金茂、龙光、佳兆业、卓越、京基、招商地产、 HILTON(希尔顿)、 ACCOR(雅高)、STAR.WOOD(喜达屋)、IHG (洲际)等知名地产商 及国际品牌酒店管理集团的高度认可。
陈伟文 Wayman
TT Design 创始人、总设计师
深圳市十杰设计大师
大中华区十佳酒店设计师
国际注册高级室内设计师
中国高级室内建筑师
长江商学院 EMBA
中国最具影响力设计师
深圳室内设计师协会第三届理事会副秘书长
湛江设计力量发起人兼总监事长
陈伟文先生作为同心同盟设计的创始人、深圳市十杰设计师,曾担任室内 设计师协会副秘书长,凭借近二十年的高端空间设计经验,在私宅、会所、酒店、 样板房等业务领域颇有建树。他曾为 HILTON 希尔顿、ACCOR 雅高、RAFFLES 莱佛士、IHG 洲际等国际知名品牌酒店管理集团提供专业设计服务,创造卓越价 值,成就蜚声业界。
王红微 VIvi
TT Design 联合创始人、软装总设计师
大中华区十佳软装设计师
国际注册高级室内设计师
王红微女士作为同心同盟设计的合伙人、大中华区十佳软装设计师、国际 注册高级室内设计师。她曾主持设计 HILTON(希尔顿)、ACCOR(雅高)、 STAR.WOOD(喜达屋)、RAFFLES(莱佛士)、IHG (洲际)、MARRIOTT (万豪)等高端品牌酒店的设计项目。其细心认真的工作态度深得业主称赞,敏 锐的审美视角和多元的创意思维在空间设计领域不断创造惊喜。

