湄洲岛紧靠福建省“黃金海岸”湄洲湾,是莆田市第二大岛,包括大小岛、屿、礁30多个。全岛南北长9.6千米,东西宽1.3千米,中部为平原,海岸线长30.4千米。南北纵向狭长,因形如娥眉而得名,被誉为“南国蓬莱”。更有2亿妈祖信众,每年朝圣旅游盛况空前,被誉为“东方麦加”。
湄屿·南巷就在这海岸际上。
White House
这是一个关于旧房改造的项目,原建筑是一栋占地110~120㎡,很具当地人文外观的房子,自带一个加分院落,临近沙滩海边。投资者想改造成一个在当地比较有代表性的集休闲,改善型的民宿空间。
为了将周边环境利用到极致,设计师苏清华使用大面积的落地玻璃让窗外的自然景观与空间融为一体,整幢建筑犹如一个向大海开放的空间,满足了人对自然与纯粹的向往,在这样一个自由的空间中,感受时间的静止,享受唯美的意境。
▼落地玻璃让窗外的自然景观与空间融为一体
设计不为别的, 就是为了引领一种生活态度和方式。 让时光和自然碰撞, 生活与理想融合。
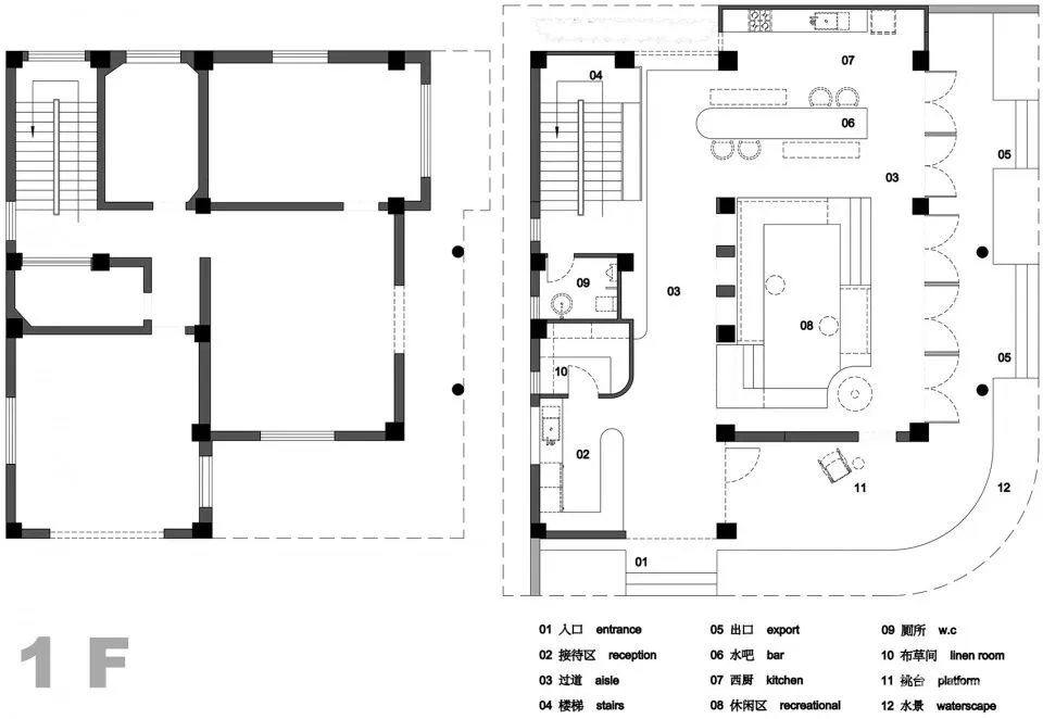
在SOUTHLANE,一种现代的生活方式渗入每一个细节中。设计师打开原来封闭的围墙和外墙,空间内尽可能将海景尽收眼底。1F功能区域的划分为下沉式休闲区,吧台餐厨,接待控区,娱乐区。模糊边界的分割方式,满足了不同的需求,空间最大化又不凌乱。微风拂动,蓝色的海面在阳光下波光粼粼,静谧,灵动。
空性,精确,节制。用设计的方式,解决建筑本身与功能布局上的核心问题。休闲区拱形隔墙隔而不断,有效落化了结构柱,划分空间同时形成纵深对比,更有层次感,黄昏时,光影很柔美。多处设计地台,起到分区的作用,低成本投入,空间上有趣不会过于单调。
▼休闲区拱形隔墙隔而不断
通过交错铺设的汀步走道,来到庭院处,这里特别设置了户外派对区,白色拱形墙面为空间增加了亮点,在夜晚的灯光映衬下显得富有造型感。
▼户外庭院,the courtyard ©杨耿亮
▼露天座位区,open air seating ©杨耿亮
把时光还给时光, 把生活还给生活。 只要用心探索, 就能发现生活真谛。
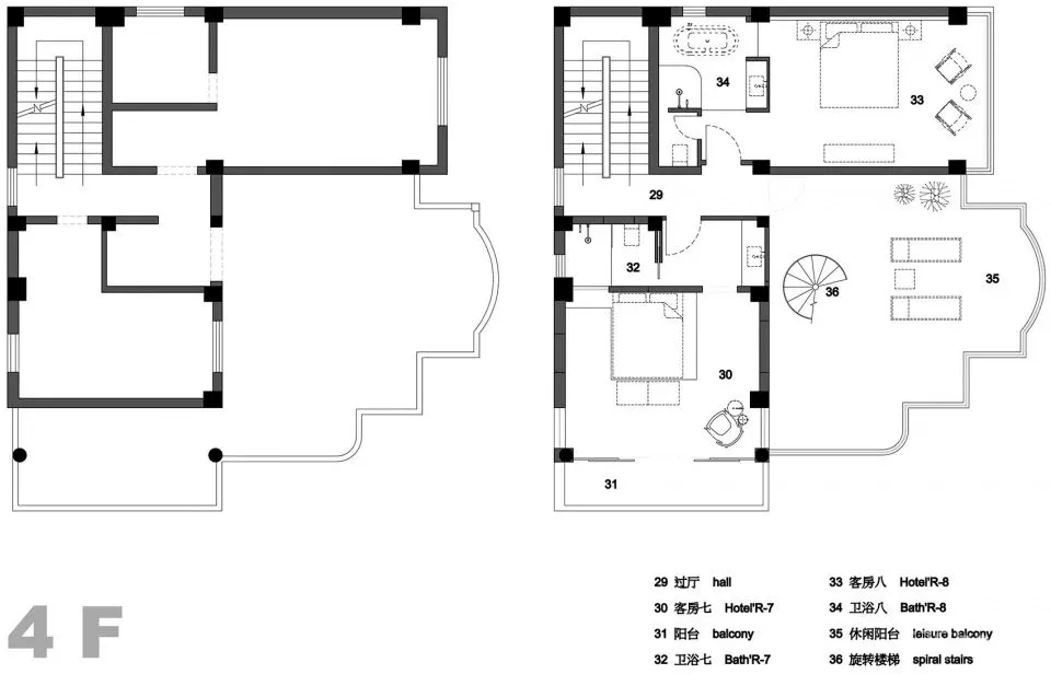
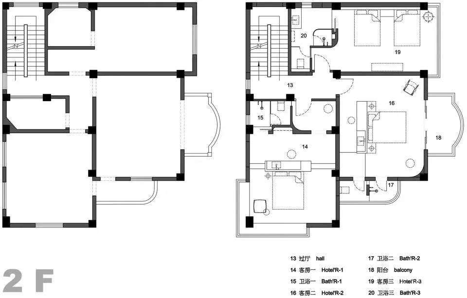
SOUTHLANE共有八房一厅,以”唐九牧林的诗和远方”命名/今湄洲岛的九州客房:端州、容州、简州、韶州、通州、偱州、司州、唐州、邵州。为了注入“每个房间都是一个独立空间”的概念,设计师在相同的空间内,优化了不同的方案布局,视野变得更加开阔,同时也能够保证房间拥有互不打扰的隐私性。每间房都能全方位地感受到周围的自然景观,犹如睡在大自然中,享受自然中的慢活。
在2F,3F房子另一侧,原结构两扇独立开窗,形体没有整体统一,设计师通过置入盒子的概念,引入凸窗,不仅增设了休闲飘窗台,外观形体上更加立体有说服力。
▼每间房都能全方位地感受到周围的自然景观
▼睡眠区,sleeping area ©杨耿亮
▼客房,guest rooms ©杨耿亮
▼在相同的空间内优化不同的方案布局,the layout of different schemes has been optimized in the same space ©杨耿亮
▼客房露台,balcony
卫浴的设计也比较前卫,干湿分离,设置了淋浴间和马桶间,更有仪式感,体验感俱佳。
▼浴室,bathroom ©杨耿亮
艺术与自然都有治愈和启发的力量, 空间承载着生活的想象力, 而美的沉淀, 源于生活营造的延续性。
穿越城市的重重藩篱,我们试图通过设计,与天空、大海、自然重新建立连接。这种稀缺性的场地也成为设计的关键所在,是美好的第一重昭示。
▼一层公共区域,1F public area ©杨耿亮
基于对这种生活场景的想象,我们在空间中,创造了不同的体验点和主题功能模块,让美好场景与生活方式融合。在流动的空间中,不同生活模块互相穿透与交融,形成一种生活的漫游。这也是场所体验对于生活方式的引领所在。
Based on the imagination of this kind of life scene, we create different experience points and theme function modules in the space, so as to integrate the beautiful scene and lifestyle. In the flowing space, different life modules penetrate and blend with each other, forming a kind of roaming life. This is where the place experience leads the way of life.
▼夜景,night view ©杨耿亮
▼1层平面图,1F plan ©大小设计
▼2层平面图,2F plan ©大小设计
▼3层平面图,3F plan ©大小设计
▼4层平面图,4F plan ©大小设计
项目名称:湄屿南巷 项目地址:福建省 莆田市 湄洲岛 项目面积:480㎡ 计师团队:苏清华 黄萍萍 设计师公司:大小空间设计研究室 施工单位:李建工作室 完工时间:2020.09 摄影:杨耿亮

