这是Casa 100 Arquitetura为一对夫妇以及他们三个孩子改造的住宅,夫妇两人都从事金融行业,每天高强度的头脑风暴让他们精疲力尽,只希望回到家可以享受放松、惬意的无压氛围,260平米的建筑面积足够一家五口居住,设计师却依旧进行了大量的拆改,没有拆迁,怎么能证明你装修了呢?
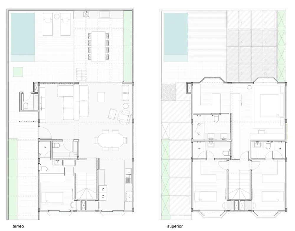
▲260平米的空间分为上下两层,从图片分析中可以看出,黄色线条为拆除部分,整个一层空间的隔墙几乎都被拆掉了,二层也不例外。
▲隔墙拆除后,设计师营造出了一个通透宽敞的空间,并利用露台的绿植,为室内引入森林般的清新感,对于疲劳了一天的夫妇来说,这样开放式的布局是最为合适的了。
▲入口进来即为客厅,双向摆放的模块式沙发对于一家五口来说也绰绰有余,全家人都可以坐在这里聊天,看电视,在欢声笑语中,解除一天的疲惫。
▲在本次的拆改计划中,客厅的这面墙也成为了重点之一,原先的混凝土墙被拆掉,重新改为了透明玻璃,并利用混凝土的线条作为装饰,做到透光与美观。
▲原先的露台是完全露天式的,在很多时候无法使用,如今设计师加盖了天花板,并将原先连接室内外的一扇小门拆除,替换为如今的超大玻璃移门。
▲移门打开,两处区域完全连接,也巧妙的将外部露台并入了室内空间。
▲在加盖了部分的天花板后,露台的烧烤区就不用在乎天气的问题了,不论是朋友聚会还是天气舒适的夜晚,这里都可以成为家中的另一个餐厅。
▲露台栽种的大量绿植不仅装点着外部,也通过玻璃门引入到室内,为屋主创造出惬意舒缓的自然无压空间。
▲回到室内,这个双面沙发一面对着电视区域,另一面则作为休息区使用,搭配单人椅、咖啡桌,非常的舒适惬意。
▲家中使用了大量的天然材质,从水泥地面到木质家具,设计师都希望营造出质朴、舒缓的自然气息。六人位的餐桌椅后方,是被“隐藏”的厨房,房门关闭时,这里就是一堵木质墙面,打开时才发现里面的乾坤。
▲当然,这面灵活的墙,也是设计师重新拆改出来的。
▲总览整个公共区域,白色的基底下,是明媚的光线,是质朴的水泥地,是温暖的木质元素,这就是设计师要为屋主打造的自然无压的空间。
▲在这条小路的尽头是一间洗浴室。
▲整个空间共有四间卧室,其中一间儿童房在一层,主卧以及另外两间儿童房在二层。主卧面积宽敞,从进门开始,就定制了一条悬空的置物柜,它拥有很强的储物空间,同时上不及天花板下不到地面的设计,很好的避免了拥挤与压迫感。
▲主卧的配色以白色为底,在搭配了大量的木质元素后,选用了米白色的针织品,看起来非常的清爽舒适。
▲办公桌前还配了一副蓝色底的艺术品,舒缓工作上的情绪,这里也可以作为梳妆台使用。
▲设计师延伸了这个桌面,划分整齐的置物格里摆放着两人的皮带、手表等物件。
▲主卧采用了双台盆的洗漱池设计,这对于都需要在早上起来急忙梳妆的屋主来说,是非常实用的。
▲这间男孩房的特色非常鲜明,用白砖铺贴的墙面、悬挂着的装饰品,都很像这个时期的少年略有不羁与个性。
▲利用墙面之间的凹槽,定制三块木板,孩子的学习桌与书架就完成了。
▲洗浴室得到地面也呼应卧室,选择了蓝色调。
▲女孩房出现了粉色的元素,看起来更加梦幻可爱。
▲当然,洗浴室的地面也改为了女孩子的红色调。
设计/Casa100 Arquitetura
摄影/Maira Acayaba

