MATRIX DESIGN
設計化作生活的容器,為閱歷風雨者綻放摩登時代的花樣年華,在時間的長河裏複刻經典的印跡,於一磚一瓦一扇門的繁華書頁上,摹寫風華絕代的倩影。
本案位於紹興市鏡湖中心站核心區塊,臨解放大道、面向梅山江,擁有獨一無二的交通和自然景觀資源,是成熟的高端人居核心區。矩陣縱橫作為室內設計方,力求將千百年紹興文化在此交疊,時光在此碰撞,不再只是再現經典,而是中鐵建花語堂文旅居所的再創造。
一步亦景,移步易景,伴著古典江南園林的韻律步入花園,開啟一場引人入勝的華麗演出。
踏入室內,映入眼簾的花園,不經意間將生活、詩、遠方連成一體,用它鮮活的綻放,召喚著每一位歸家的人。牆面深色的飾面與條形燈帶,映著溫柔的燈光和牆面的奢石,體現了主人不凡的品味與氣質。
池院、廊亭、屏風的連用,在原有的近代文化氣質之上,嫵媚的園林意趣充盈空間所有角落,別有壹番風韻。
美,是理念的感性彰顯。
我們通過比例尺度、材質色澤與造型藝術的專業手法,融入劍麻編織、水墨絲綢面料、立體金屬性和手工刺繡工藝至各個環節中,以豐饒的創意表達,讓設計與優質人居完美融合,賦予其更具深度的多維認知與感悟。
客餐廳是最能表達整體設計風格調性的,水墨版的黑白灰與暖木質感的交織,黑色木質與水墨大理石臺面的碰撞,在光影恍惚中,仿佛置身中古的水墨畫里。金屬點綴的藝術飾品,打破直線氛圍,融入傳統山水情懷,在深沉中釋放東方氣質,于中式古典中彰顯精緻大氣。
人,是自然界中的群居性動物,因為社交文化、飲食文化的興起與流變,才使得後來的人類成為了更高級的社會性動物。
如果說空間是一種對生命的禮贊,那麼藝術則當之無愧是對這種禮贊的注解。
家庭廳在躍層空間中運用簡化了繁複線條的中式傢俱兼具品質與格調,有溫度的原木材質是空間呈現復古寧靜的感受,內景觀的植入不僅為封閉空間增添了自然的生機,也與沙發、茶几的軟裝紋樣產生抽象對話,仿佛是田園入室的藝術感知。
宴會廳設計追求在寧靜中慢慢吸收能量,簡明的線條與樸素色調的組合靜謐裝點著整個空間,傳遞著新中式花藝的美學內涵,古典之美兼具現代之明麗。
枝葉果實觸及之處,滿是長長的遐想與回味,各種原材紋路在中和著空間內冷靜的氣氛,仿佛器物與器物之間話著又一季“春華秋實”。橙紅與黑色、金屬與木調,讓生命力在此穿透與匯合。
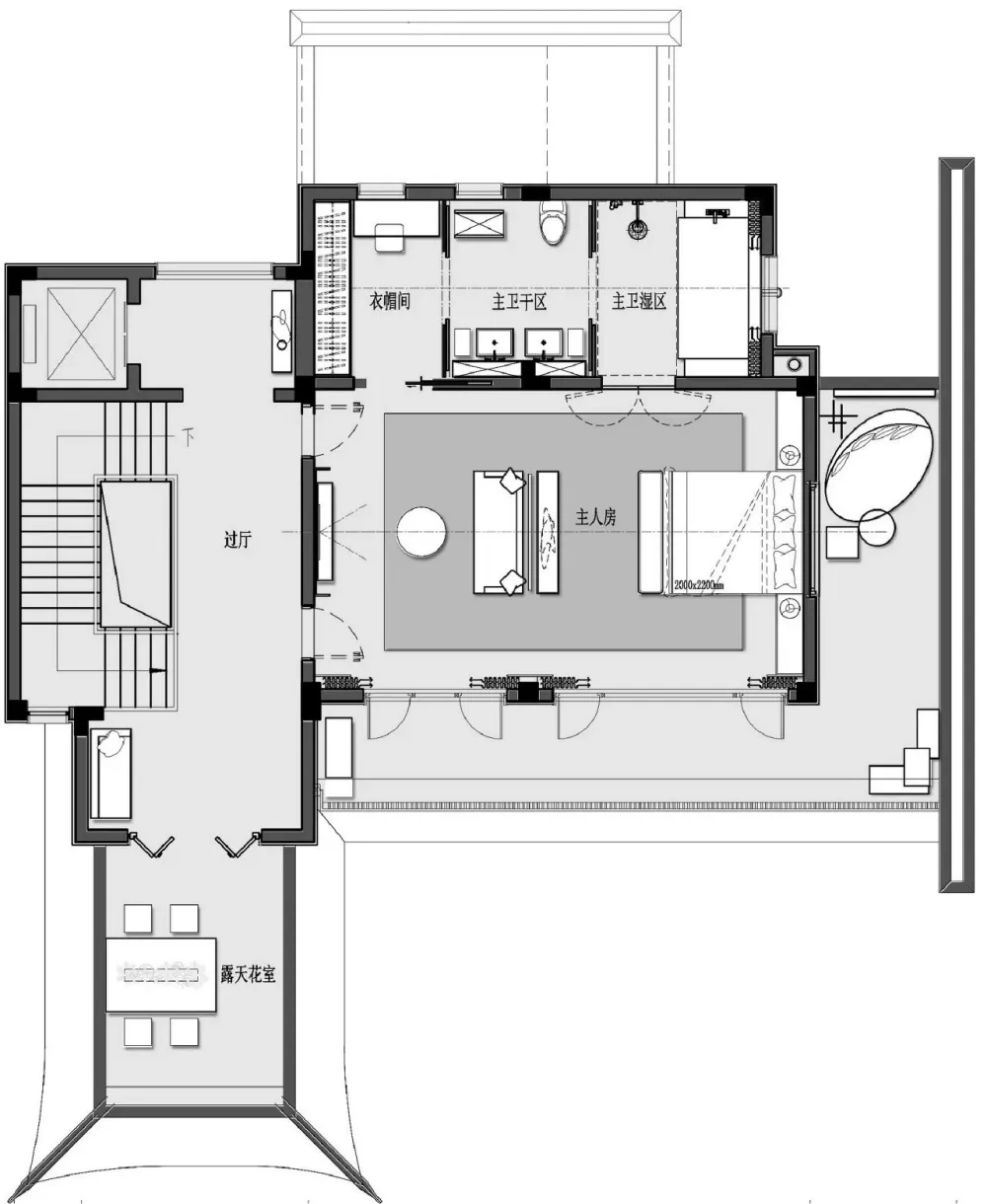
主臥醞釀在東方韻律裏,感受著最好的時光。木色的溫馨鑲以深色線條的結合,讓人從匆忙的生活節奏中慢下來,簡單、自然,不戀浮華,只追求內心的純淨。
床頭背景牆以屏風狀的起伏含蓄展示著自然山景的紋樣,內藏式櫃體表面關不住的青山白霧,以現代抽象的手法表現中式韻味,當置身這種輕鬆舒適的空間裏,切身感受到最好的時光就在此刻。
主衛延續主臥基調,馬賽克裝飾掛畫活躍了整個靜謐安詳的氛圍,黑色潔具與金屬色推門提升了主衛的質感。
質樸的木飾面,清冽的墨畫,影幢的古燈,為老人房定下主基調,素雅閑靜。
書房的設定,除了紙墨筆硯的陳列,最好去打開兩扇窗,擁抱自然,迎接竹林鳥趣,做壹回真正的文人騷客。
選用一件懸浮的霓裳羽衣,為起居室增添出別致的流光溢彩,去打破空間單壹的公共屬性,是尊重場域的絕佳點綴。
女孩房的繽紛甜美,男孩房的簡潔闊達,依靠粉藍兩色的調配,同樣的空間,流瀉著迥然不同的旨趣。
當設計成為建築的人文表達,它就開始變得溫暖如斯,出現在每一次手到之處的體認裏,回味無窮。
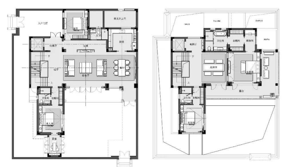
△ 負一層 △ 負一層夾層
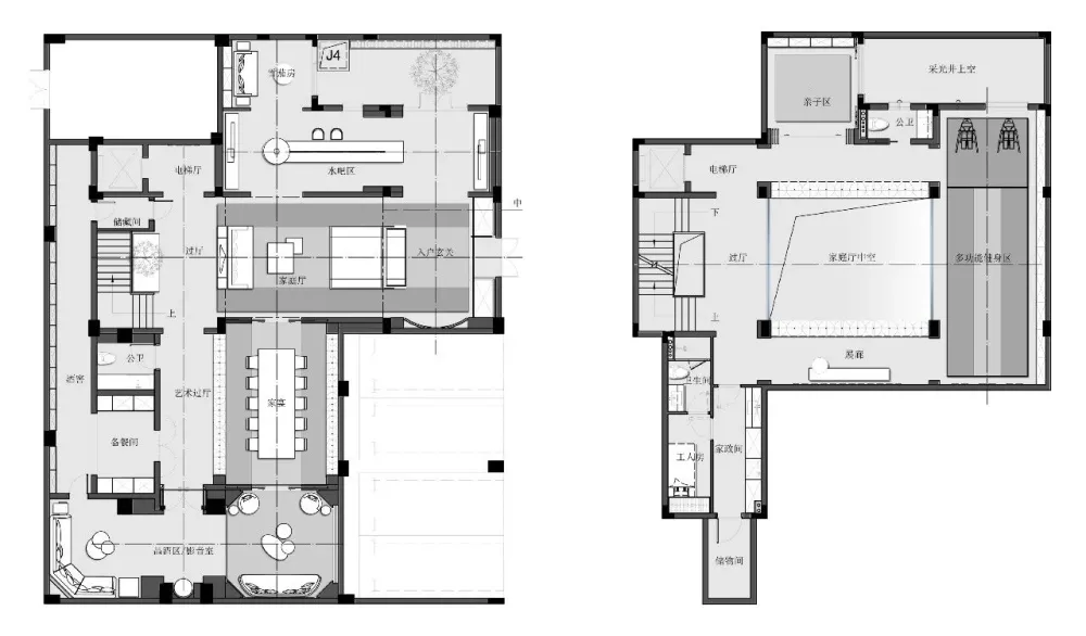
△ 一層 △ 三層 △ 二層
項目名稱| 紹興中鐵建花語堂合院 硬裝設計| 矩陣縱橫 軟裝設計| 矩陣鳴翠 攝影公司| 釋象萬合 項目類型| 合院樣板間 設計面積| 800㎡ 硬裝造價| 4500元/㎡ 軟裝造價| 5000元/㎡ 主要材料| 高雅灰大理石 雪花灰石材 熊貓白大理石 藝術玻璃 木飾面 刺繡墻布 設計時間| 2019年05月 完工時間| 2020年10月
以矩為方圓 萬物皆成陣
深圳市矩陣室內裝飾設計有限公司
Shenzhen Matrix Interior Design Co,Ltd 地址:深圳 福田保稅區 市花路福年廣場 B3棟411、413、420及421號 No.411,B3,Fortune Plaza,Shihua Road,Futian Free Trade Zone,Futian District,ShenZhen City,Guangdong Province,China 北京 朝陽區 廣渠路競園藝術中心18號 No.18, Jingyuan Art Center, Guangqu Road, Chaoyang District, Beijing 上海 黃浦區 瑞金二路38號2、3層 2nd and 3rd floor, 38 Ruijin 2nd Road, Huangpu District, Shanghai 成都 武侯區 高新萬科大廈6層625室 No.625,Hi-tech Vanke Building,Wuhou District,Chengdu,China 商務Marketing Dept. 電話Tel: 86 755 83222578 郵件Mail: zyd@matrixdesign.cn 人事Personnel Dept. 郵件Mail: hr@matrixdesign.cn 品牌Brand Development Dept. 郵件Mail: zyd@matrixdesign.cn 官網Site: www.matrixdesign.cn 微博Weibo: https://weibo.com/matrixdesign 微信公眾號Wechat: MatrixDesign矩陣縱橫
Creative design | Global opportunities | Award-winning projects

