地址:四川成都 保利百合花园
升级成三口之家的Cherryllt夫妇,希望打造成符合他们生活方式及审美的家。除却基本的日常生活以外,做手工、看剧、看书、备课、陪女儿玩耍,将会是主要休闲活动。他们希望家是简约、有质感、有柔和光线和慵懒氛围。
本案更多的是在解决问题,在合理的需求和成本下,通过各关系的梳理,构造,拉近与环境、光的关系,以一种温暖和简约朴质的气质呈现。空间本质得以真正回归且映照居住者的内心意境。
一回家就能看到开阔的客餐厅空间,因为墙体的拆掉,让自然光线可以在空间中自然流窜,客厅窗帘采用百叶的方式,可以任意调节室内光线的明暗。
屋主家藏书比较多,在客餐厅靠墙背后设置一排6.5米长的书架,上部分为开架形式,方便平时生活中对物品的取放,下部分为悬空推拉门柜体,方便机器人平时工作的打扫。一整面墙都是收纳空间,收纳很充足。
书架隔板上暗埋的灯带采用调光开关来控制,可以根据氛围光线的需要调节强弱。书架每一隔靠外侧都设置了灯带,目的是使光线能均匀撒在书页上。
为了防止隔板变形,在下方用钢板作为立柱的方式来承重,视觉上钢板更纤薄同时也可以作为书挡使用。
客厅顶面无主灯设计,弱化顶面的形式感。
楼梯间下方的门和卫生间门采用隐形门墙板的形式,视觉上归纳的更加整洁,顶面设置投影幕布槽,有观影需求的时候可以打开进入影音模式。
楼梯下方的剩余空间设置入户换鞋柜使用,左边楼梯墙面、卫生间门、楼梯下方储物间门,采用统一的木皮元素,弱化门洞的存在,视觉上更干净。
楼梯扶手采用钢板冲孔的方式,图案的形式根据设计图纸来量身定制的。
静谧质感的居家氛围。皮质长沙发可以同时容纳一家三口,圆形镜面茶几方便平时打理。
沙发背后书架隔板上,可以同时容纳音箱、投影机器等接电设备的放置。
客厅看向餐厅的通透感。
改造后的客餐厅实现了双面采光与通风;光线与视觉更加通透、互动性更强。小朋友在一楼玩时,屋主也能够很清楚看到她。
餐厅2.6米长的餐桌可以满足一家三口的进餐需求,同时屋主备课,亲子手工都可以在这里实现。
左边玻璃移门进去是生活阳台,洗衣池、洗衣机、烘干机等一系列家政用品可以归置在此;右边灰色玻璃移门里面是厨房,厨房可封闭可开敞,冰箱和电器柜拿到外面,厨房里面操作区域更加规整、宽敞。
屋主开启备课模式时,旁边的书柜更方便资料的取用。最下面一排开架预留给小孩日后使用。
厨房采用“U”字型摆放方式,冰箱和电器柜拿到餐厅区域后,厨房操作台面更加宽敞,洗菜和切菜对着窗外景观,视觉更加通透。
楼梯间墙体拆除后解决了视线拥堵的情况,顶面软膜天花的使用改善了楼梯间的采光不足。
楼梯踏步采用实木地板碰尖的方式,踏步与地面一个材质更加协调。
楼梯旁设置开放式多功能区,桌板翻起来,小朋友可以在这里做作业;桌板放下去,瑜伽垫铺上屋主可以在这里做一些拉伸动作。
在小孩房做了一些跳色点缀,上下楼梯与收纳做整合,并且利用床体下方的空间作为收纳。
主卧地板采用橡木,与床头板木皮搭配,整个空间更加统一、温润,化妆桌的部分将它放在右侧靠窗的位置。
床头灯带依然采用调光开关来控制,可以根据不同的使用情况来调节灯光的强弱不锈钢薄踢脚线的使用不易积灰,减少变形几率。
带抽屉式的悬空梳妆台方便放脚与卫生的打扫。
二楼卫生间采用1200*600mm的同色墙地砖,统一、干净,采用双台盆形式,卫浴柜不落地,方便卫生的打理,镜柜可以容纳一家人的卫浴储物;靠窗的位置设置浴缸,可以缓解一整天的辛劳。
镜柜下方设置感应灯带,方便洗漱时的照明使用。
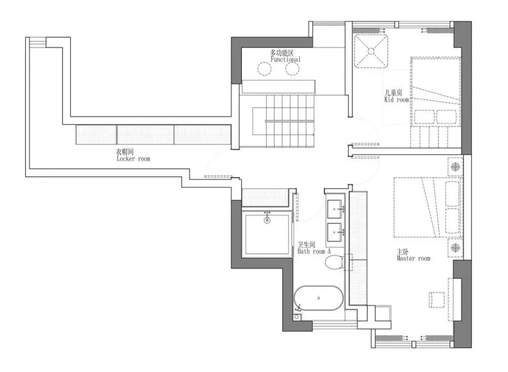
原始格局是三室的跃层住宅,楼下一个房间,楼上两个房间;一层靠窗有一个卧室,挡住了客餐厅的通风和采光,让客餐厅变成一个暗室。
由于屋主一家三口居住(父母在附近小区,平时照顾比较方便),且只需要两个卧室,所以把一楼靠窗原有的房间取消掉,纳入客厅使用,把卫生间楼梯前面那面墙拆掉,希望一楼整个公区空间的开阔度做到最大化。
通过有实际意义的结构与材质来梳理地面、墙面、楼梯、顶面的关系,达到统一性和形成合理动线的同时,为每个功能区在封闭与开放之间寻求一个最舒适的平衡点,空气可以形成对流,阳光可以洒进来。
把休闲、互动、操作区安排在一楼,睡眠休息区安排在二楼,功能分区、动静分明。
二层主要为休息区域,两个卧室和卫生间的分布不合理,主卧不规整占了一大半的空间,二楼卫生间在主卧里面,次卧的人使用不方便。
把主卧和楼梯间所有隔墙拆除保留小孩房的完整性,正方形的卫生间往前扩展,方便主卧与小孩房的使用。
二楼休息区重新规划,主卧变的方正,既有储物又能实现独立的梳妆台区域;主卫设置双台盆,淋浴间能同时容纳两人洗浴,靠窗的位置同时还能设置独立浴缸。

