这是由Viktor Serhey和DUDES Architects共同设计的一座住宅,面积约为132平米,整个空间规划了三间卧室,两间卫生间以及厨餐厅,这里有温暖的木料,也有石材、金属等冷硬的元素,这是一个美丽又现代的生活空间。
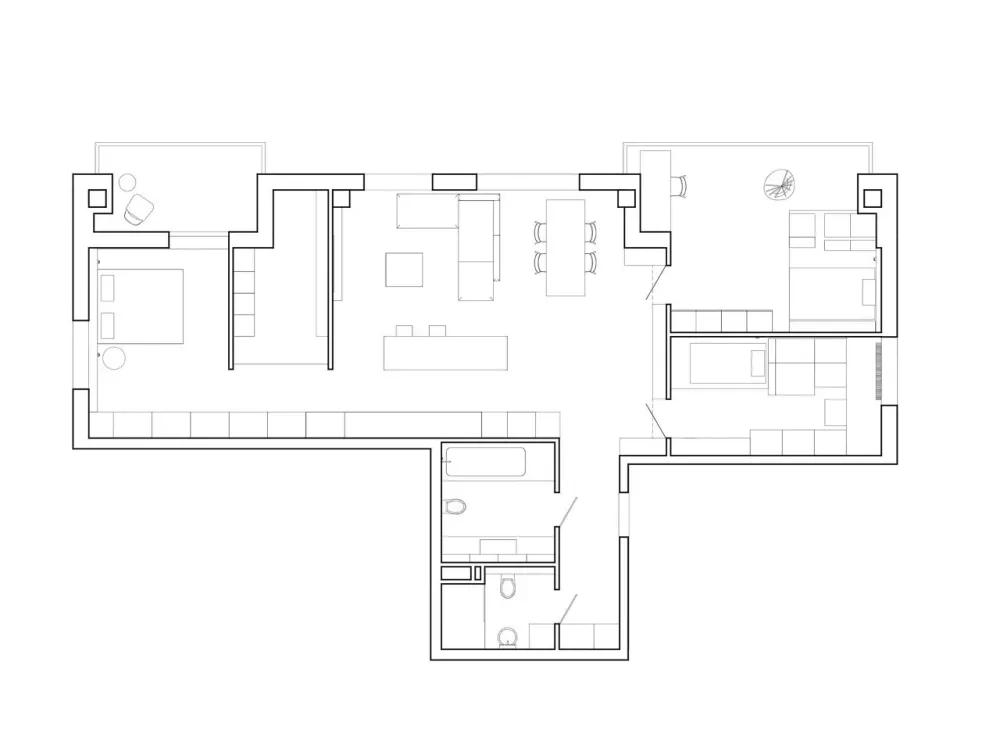
▲这个房型也是有点怪异,一字型的空间却多了凸出了一块,变成了T字型,更为令小编感到惊讶的是,凸出的部分,两位设计师一致决定:做两个卫生间!
▲所以一进门,直接就是两个卫生间,一间是马桶 淋浴区,另一间是配备了浴缸,这可能是设计师想让功能区的划分更加独立吧。
▲从凸起的部分进入到一字型的空间,就来到了住宅的主要区域,在这里可以看到水磨石与木质地板的无缝拼接,它们意味着功能区的转换,有冷硬也有温润,这是一个平衡又和谐的空间。
▲整个厨房区定制了深色的木质柜体,首先保证功能区内的实用性,电器等物品都可以被收纳在内,地面搭配灰色的石材,清爽利落,这让空间整体在温暖中又有非常棒的高级感。
▲昏黄的灯光照射在不同的材质上,光影下的空间充满了悠闲与惬意。
▲整个客餐厅选择了无主灯的设计,窗外的自然光线、灯带、天花板上的射灯,都成为了空间的光线来源,没有了主灯,空间的层高被拉长,使用上也更加灵活,更加彰显高雅的品位。
▲定制的整面书架替代了传统的装饰物,书籍不同色彩的封面产生了十分丰富的视觉效果,并且相较于购买回来的成品画作,这些属于自己的书籍,更具有代表性。
▲餐桌贴着窗边摆放,纯木质的元素呼应着整体的氛围,舒缓惬意。
▲这面柜体从厨房延续至此,拥有非常充足的储物空间,而有趣的是,卧室区并没有利用门来划分,而是采用了开放式的布局,地面从石材转为木质地板,也成为了划分这里的唯一方式。
▲主卧摆放了一张双人床,定制的木质床头板不仅作为装饰,还可以放置一些书籍、手机等物品。
▲主卧拥有整个空间唯一的一个阳台,设计师摆放了舒适的单人椅与咖啡桌,将这里打造成一个无压的空间。
设计师为男孩和女孩各规划了一间房,男孩房的色彩以黄、浅蓝为主,房间一侧定制高矮不等的柜体,足以收纳孩子的各种物品,另一侧是一张小型单人床,看似有些平平无奇的房间,却发现设计师在整个墙面都安装了攀爬支点,这里瞬间就成为了攀爬地,对于精力过于旺盛的孩子来说,这样的方式非常的可行。
▲软垫起到了安全保护的作用,一旁的绳索,让孩子在此感受到攀爬的乐趣。
▲定制的长条形木桌非常的实用,内部嵌有储物的抽屉,不仅可以给孩子摆放玩具等物品,还可以成为学习的地方。
▲女孩子最爱的粉色,设计师进行了充分的发挥,粉色的书桌与地毯,让疲劳的学习时光也变得舒缓。
▲这张床可以说是儿童房最大的特色了,整体框架包含了单人床、两张卧榻以及书架的功能,所有尺寸都经过了测量规划,家具摆放的正合适,梦幻独特又不缺少必要的功能性。

