EXPLORATION OF
NEW LADY’S SELF-EXPRESSION
图文提供 | QHD Studio
现代主义建筑师艾琳·格雷(Eileen Grey)
所强调感官与结构的相互依存,
空间上,QHD用直线条的廓形来凸显女性的力量,
再用不同的材质做碰撞,
让女性通过服装来展示理性和感性并存。
品牌续写 /Brand update
从而构成一个新的空间,续写新的故事。
这是一场关于女性服装变迁的制造机,
它们不停地运作着、传输着、赋予着,
新时代女性自我的精神力量。
不用活成别人眼中标准定义的女性的样子。
空间诉求 /Space appeal
NEW LADY探寻符合现如今潮流的新表达,
平衡服装文化和体验式消费的商业诉求,
打造独树一帜的买手店。
是为了彰显人所赋予对待生活的态度,
如今人们对于服装的包容度更高,
服装的多样性也带来不同的选择。
一个凸显女性对服装的态度,
描绘女性精神力量的买手店,
正在为中国传统批发市场带来改变。
空间介质 /Space medium
空间材料以不锈钢为主体,
通过微弱的反射光线和镜面的叠加,
人影走过形成互动的虚影,增添空间灵活度。
QHD Studio希望通过简单而现代的介质,
构成空间的线条感,又具有细节弧线的起伏,
创造出空间的层次和空间的维度。
搭配丝绒、棉料、麻布、纱布等富有质感的材质,
形成反差对比,互相烘托空间氛围,
空间细节 /Detail
它是整个空间续集能量的地方,
并将能量传送到这里收集起来,
场景中间树立着一根圆柱,
它本是原始空间支撑的槽钢,
设计师巧妙运用,与楼梯平台一起搭配起来,
粗砂的真石漆搭配曲折凸显的环形,
寓意作为新女性要摆脱世人传统的枷锁,
悬挂在楼梯上方的亚克力圆管,
在秋千上荡漾的快乐,推向空中自由的时光,
是每个外表独立的女性,
其内心依旧保留着那一份的向往。
材质上选取米白色混有贝壳珠光的水磨石,
表达每个女性都有自己独特的一面和闪光的优点,
认识自己从而展现自己。
它们是new lady成长的见证者,
有着独特的使命和意义,
于是我们保留了其中两个,继续陪伴。
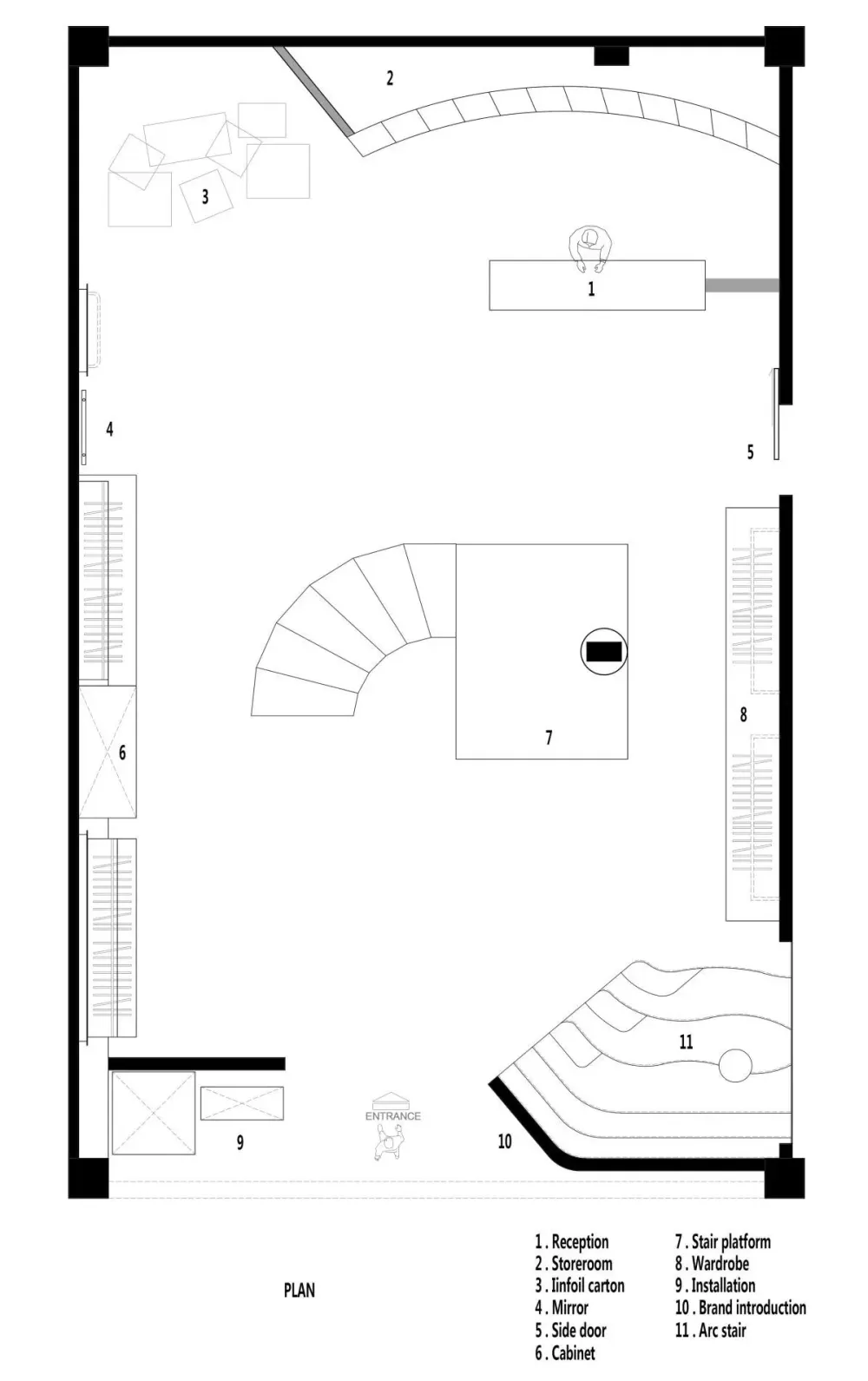
大大小小规格不同的锡箔纸箱,
随意堆砌在角落,上面可摆放三两件物品。
锡箔的特殊纹理是在表达时代发展下,
对于女性穿衣打扮的别人之言碎语的看法,
倡导依然要坚守自我个性,武装女性力量,
批判性地看待时尚对人们生活的影响。
长短不一的铝制风管,点缀着整个空间,
这些机器的组合,仿佛一个按钮按下去,
它们随时都会“轰隆隆”地运作起来,
机械组件也暗示着快时代下的生产速度和人们观念,
每个人都在争做一个不从众的形象。
ABOUT PROJECT
▪ Interior facade ▪
▪ Interior facade ▪
| New Lady买手店
| QHD Studio
| 李海冉 邱淑怡 陈玉 杨鹏飞 李东 洪圆圆 王音
| QHD Studio
| QHD Studio
| 艺术漆 真石漆 不锈钢 水磨石 钢材
ABOUT DESIGNER
QHD Studio 创始人、设计总监
英国伦敦艺术大学 ISD空间艺术 硕士
基于国际化的视野,致力于专业的空间前中后端综合服务,着重空间艺术与生活化的理解去营造场所。设计团队秉承四个核心理念,探索 创造 平衡 生活为主导。以人为本,探索人与空间的行为关系为根基,以空间美学研究作为植入方式和手法,创造独特的艺术视觉与体验空间,以项目实际需求出发,思考商业与设计的良好互融逻辑关系,增强产品附加值。同时着重加强设计,艺术相关行业的跨界联系。

