“东方威尼斯”和“世界纺织之都”的美誉
让NIKO买手店有出身世家名门之天资
白色盒子是空间呈现的明线
流动则是心理与行为导向的暗线
于是建筑、室内、元素、光线皆为此服务
FIRST SENSE
是项目所在地柯桥的金名片
独具天时地利与时尚魅力的
买手店以店主之名NIKO冠名
皆被融入于空间的表达之中
个性与品味定位了其调性
是设计自始至终遵循的理念
将空间所要传达的情绪体验
穿插于每个空间部分的表达
既是充满小意趣的欢迎仪式
又似以手势指引的动线走向
心灵的体验,动线的暗示
IIMITED-INFINITE
调性 · 独特与玩趣味
一切让位于空间陈列的展示
一切都导向于产品的跳出
功能性与艺术性完美统一
RELATIONSHIP
制造一层与二层独特关系
C促使上下空间氛围流动
材质,色彩,形式以延续与创新
呼应与个性不断变幻出新的空间氛围
1F平面图 P. 30
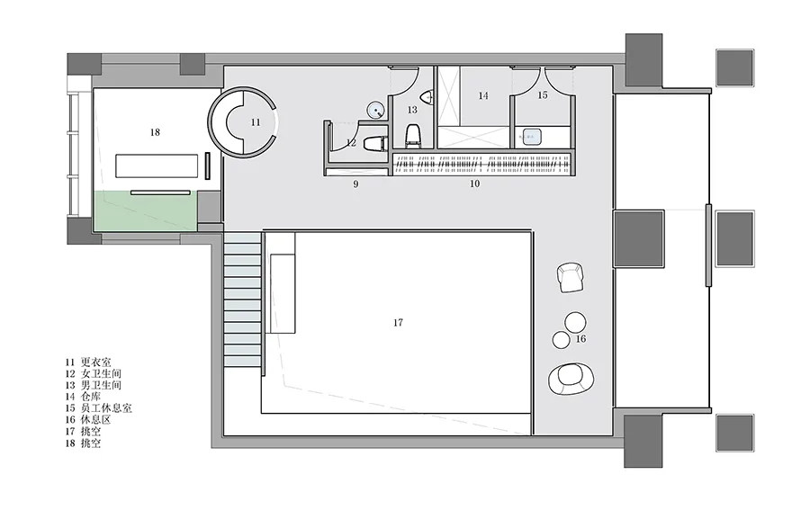
2F平面图 P. 31
通过不同区位,不同尺度手法的运用
设计始终成全着整体空间上的沟通
安生设计创始人/创意总监:吴振宝
项目名称:NIKO买手店
设计团队:吴振宝 陈钇达 陈建东 王家烨
软装设计:1637ART

