这栋位于澳大利亚的多层住宅
Austin Maynard Architects
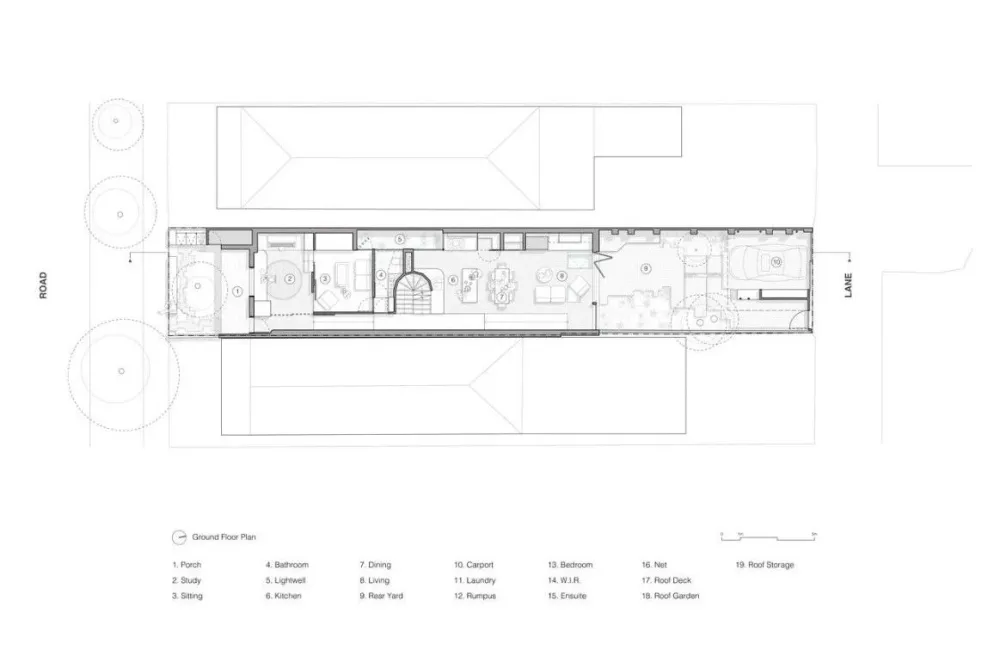
狭长的建筑体块被很好的利用起来
构成一个趣味十足的生活空间
包含 4 间卧室和 3 间浴室
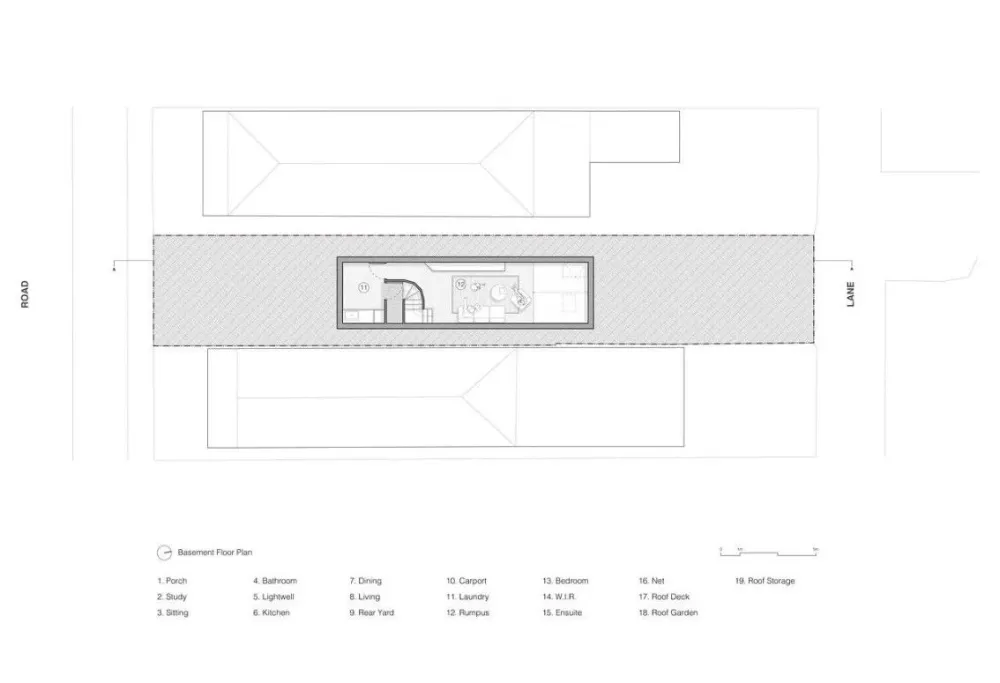
还设有书房、地下室、客厅、屋顶阳台等等
利用高度差、开口和滑动墙
开放式的厨房、餐厅以及客厅
让原本狭窄的空间更显开阔
镜子墙面增加了视觉空间
复古的砖墙作为一种元素
小起居室也是被木材包围
独有的纹路让人分外放松
绿色的布艺沙发与木制书架、边柜
共同营造出自然、沉稳的氛围
一楼的书房正对着户外玄关
大面积的窗户带来充足的光源
让阳光可以撒到地下室里
家里的楼梯由黑色钢材制成
实心钢板与穿孔面板的结合
一旁的墙面还开了几个方形小口
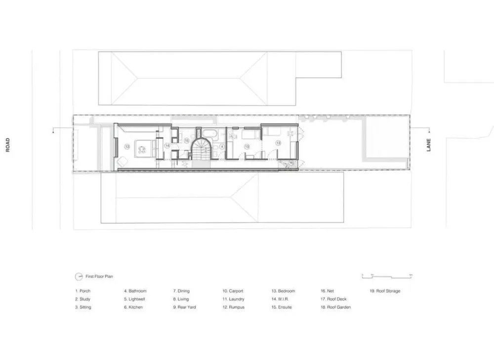
二楼便是家里的私人空间
木材被大量使用在走廊和卧室之中
走廊尽头还有攀岩墙和悬空网床
给孩子们创造出有趣的休闲空间
卧室内的家具也都用木材制成
设计师在每个房间都增加了多彩的窗户面板
同时每个房间都拥有良好的采光和大量储物空间
孩子的房间可以通过旋转移动木墙
主卫有一种超现实的感觉
光滑的蓝色浴缸在光线的反射下
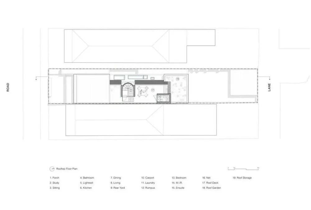
屋顶也设置了休闲的空间
使一家人可以尽情享受户外的新鲜空气
木制甲板加上黑色的栏杆

