Norra Tornen
OMA 在斯德哥尔摩的高层公寓 Norra Tornen 斩获了2020国际高层建筑奖(Internationalen Hochhaus Preises 2020,以下简称 IHP 2020)。
同时也 PK 掉了入围决赛的其他 4 个大咖事务所的项目,包括 BIG、Zaha Hadid Architects,Skidmore Owings&Merrill 和 Heatherwick Studio ▽
说实话,这个结果挺让人惊讶的,OMA 的项目从外形还是高度(只有125米)似乎都不占优势,是什么魅力让它能披荆斩棘脱颖而出呢?
△Norra Tornen
关键就在于「平衡」二字。它的设计避免了将外立面的粗野形式照搬到建筑内部,同时中和了新旧外墙结构。
首先来看一下外观,Norra Tornen 在瑞典语中意为“北境之塔”,是两座隔着马路的双子塔,粗野的立面带有浓重斯堪的纳维亚风格。
建筑材料选用带肋纹的混凝土,混合了不同颜色的石子,彰显野兽派的典型特征。
但是,内饰细节却格外的温馨优雅,双层挑高的大堂公区,建筑的线条融于细腻材质中。
凹凸有致的阳台、大开窗的独特户型,
让每间公寓都可以拥有开阔的户外空间,充分考虑到了瑞典缺乏日晒的环境因素。
从外到内,是野兽派到「瑞典风」的鲜明对照。
为什么说它是「新旧建筑的中和」呢?这是因为,原本项目是由建筑师Aleksander Wolodarskihe 规划好了的,地基、轮廓都是现成的。
OMA 是后来才接手进行设计的。
这就意味着,设计师必须要在规划好的「坯子」上进行设计,还得做出更大突破。
最终交出的方案,让大楼不再是两座直溜溜的平板,而是由不同高度的预制混凝土板组成,像堆叠的乐高积木,逐渐升高,外立面不至在城市中显得过于突兀。
标志着从最初建于 1930 年代的瓦萨斯塔登(Vasastaden)居住区到新兴的哈加斯塔登(Hagastaden)地区的过渡。
也因此,获得了 IHP 2020 评委团的一致赞赏,评价 Norra Tornen 公寓楼是一座新旧结合的“永恒建筑”,为构建和谐的城市结构做出了重要贡献。
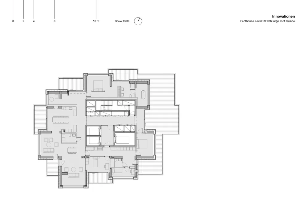
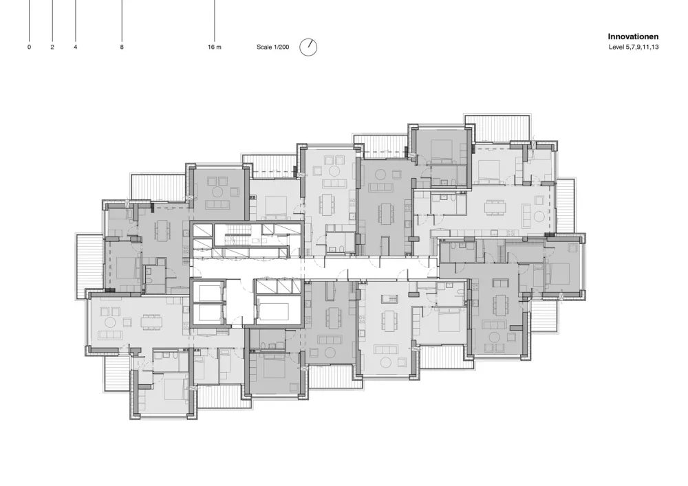
方正的户型呼应外立面结构,开放式布局和大开窗让室内拥有充足采光。
不同的高度楼层分布也不同,一居室、两居室的刚需户型为主。
IHP 国际高层建筑奖自 2004 年以来,每两年评选一次,奖金为 50,000 欧元。下面就是入围这次决赛的项目,一起来看一下吧。
建筑设计:BIG – Bjarke Ingels Group(丹麦)
高度:190 m 竣工时间:2019年12月 地点:德国 法兰克福
EDEN Singapore Apartments
建筑设计:Heatherwick Studio(英国)
高度:105 m 竣工时间:2019年12月 地点:新加坡
建筑设计:Skidmore Owings – Merrill(英国)
高度:143米 完成:2019年10月 地点:伦敦/英国
建筑设计:Zaha Hadid Architects(英国)
高度:200 m 竣工时间:2019年11月 地点:北京/中国
IHP 是由德国建筑博物馆和德卡银行(Deka Bank)共同举办,注重高层建筑内外空间的平衡、可持续性。奖杯是由国际知名艺术家 Thomas Demand 设计的雕像。
今年由于疫情原因,未能现场颁奖,而是选择了虚拟典礼的方式。
△ 2018年颁奖现场

