木质楼梯,从视觉上连接了餐厅和会议空间 ©Ivar Kvaal
能源部门和建筑业产生的致温室效应气体占据全球排放总量的40%以上。全球人口的增长和日益加剧的气候危机也激化了诸如COVID-19的全球性混乱。建筑师们如今正面临着跨行业合作的挑战,并被期望以更加具有责任感的方式来完成项目。
▼建筑外观 ©Ivar Kvaal
Snøhetta的合伙创始人Kjetil Trædal Thorsen表示:“除了努力让我们的地球尽可能地保持健康,我们还必须借此机会来优先考虑可持续的设计实践,尤其是要思考如何让我们的工作对人类和非人类居民产生积极影响。虽然与新冠疫情相比,气候的问题显得不那么尖锐,但对于建筑师而言,保护建筑环境和自然环境均有着无比重要的意义。我们需要更多像Powerhouse这样的全行业联盟,从经济、社会和环境等多个维度去推动可持续建筑和城市的行业标准的建立。”
▼建筑外观 ©Ivar Kvaal
高11层的新能源大楼坐落在挪威韦斯特福尔和泰勒马克郡之间的历史工业城市波什格伦,象征着当地辉煌的工业历史的延续(泰勒马克是19世纪初期最大的水力发电厂之一的所在地)。新的能源大楼体现了当地对于绿色经济的持续投入,确立了泰勒马克郡在脱碳新型建设方面的领军地位。Powerhouse Telemark的东南立面和屋顶每年将产生256,000千瓦时的电能,大约是挪威家庭年均用电量的20倍,多出的部分将回售至能源网。
▼场地平面图 ©Snøhetta
建筑拥有一个类似于圆锥形的倾斜体量,其东立面上开有一道清晰的、呈45°内倾的凹槽,为建筑赋予了显著的外观特征,使其从附近Herøya工业园的环境中脱颖而出。
▼鸟瞰 ©Ivar Kvaal
▼建筑外观 ©Ivar Kvaal
建筑内部设有接待吧台、办公空间(包括两层共享办公空间)、员工共享餐厅、顶层会议空间和能够俯瞰峡湾的屋顶露台。两座宽阔的楼梯从接待区域一路上升至员工餐厅和楼顶会议室,贯穿了建筑的上下楼层。建筑的第九层设有一座笔直的木质楼梯,从视觉上连接了餐厅和会议空间,同时将来访者引向建筑的屋顶平台。
除了获得BREEAM的优秀级认证、彰显其在可持续方面的远大志向之外,Powerhouses还为当地社区乃至全世界的可持续设计提供了示范性的案例。
▼员工餐厅 ©Ivar Kvaal
▼木质楼梯,从视觉上连接了餐厅和会议空间 ©Ivar Kvaal
呈24°倾斜的独特屋顶超越了建筑体量的极限,使屋顶的表面积扩展至最大,确保建筑能够从光伏板棚顶以及被光伏电池板包覆的南立面获取尽可能多的太阳能。
建筑的西立面、西北立面和东北立面以木板条包覆,为光照最强的立面提供自然的遮阳系统。木质外壳的后方是Cembrit纤维水泥板立面,为建筑赋予了统一的表达。项目作为被动式建筑拥有卓越的隔热性能,所有楼层均安装了三层隔热窗。水泥板为建筑提供了类似于石砌结构的密度,能够在白天储存热能,在夜间缓慢地释放热量。每个楼层的边界区域都安装了带有水环路的低排放系统,能够通过位于地下350米处的地热井确保高效的制冷和制热。
▼木板条为光照最强的立面提供自然的遮阳系统 ©Ivar Kvaal
▼木质外壳的后方是Cembrit纤维水泥板立面 ©Ivar Kvaal
▼立面细节 ©Ivar Kvaal
▼从室内望向立面 ©Ivar Kvaal
Powerhouse Telemark还采用了一系列低技术解决方案,确保将使用者的舒适度放在优先地位,使办公楼的潜力得到充分发挥。微微倾斜的西立面和东南立面在保证光照和遮阳的同时带来开阔的视野和灵活的内部空间。建筑的东北立面保持了垂直,以容纳更加传统的、带有封闭空间的办公环境。在整座建筑中,较为隐蔽的小尺寸空间被策略性地设置在远离外墙的位置,不仅能够降低对制冷的需求,还有助于保持空间本身的舒适度。
▼立面细节 ©Ivar Kvaal
建筑的内部空间遵循了标准化的原则,以避免新租户入驻时产生不必要的浪费。在所有楼层,地面、玻璃墙、办公室隔断、厨房、灯具和卫生间均采用了相同的设计、色彩与材质。同时,灵活的室内设计方案加上两个楼层的共享办公空间,共同确保了业主和未来租户能够轻松地对建筑进行重新规划,在无需搬迁的情况下也能够扩大或缩小他们的商业规模。这也意味着,办公空间可以直接过渡为资源空间,在传统办公布局需求受到远程办公场景的影响时,也能实现空间的最大效用。
▼办公空间 ©Ivar Kvaal
Powerhouse Telemark的材料选择以环境可持续为基础,整座建筑采用了高恢复力和低能耗的耐用材料,例如未经处理的木材、石膏和环保混凝土等。从厨房到地砖再到活动家具,建筑内的一切均是由坚固耐用的高品质材料制成。地面砖由70%的回收渔网制成,木地板则采用了由回收木屑制成的工业木料。此外,特别定制的标识系统为办公空间的视觉表达提供了一定程度的灵活性,减少了定做专用品牌标识造成的不必要的浪费。
▼一层接待区域 ©Ivar Kvaal
▼会议室 ©Ivar Kvaal
为了最大程度降低对人工照明的需求,大楼采用了保守却高效的照明系统。大楼的屋顶还安装了垂直的玻璃凹槽,使光线得以穿透顶部的三个楼层。与此同时,选用浅色调的活动家具也能够让室内采光得到微妙的补充。
▼屋顶视角 ©Ivar Kvaal
与Powerhouse Kjørbo、Powerhouse Montessori和Powerhouse Brattørkaia等雄心勃勃的姊妹项目一样,Powerhouse Telemark致力于成为在环境、社会与经济上可持续的建筑的典范,同时也向后疫情时代办公空间的概念和构思提出了挑战。
©Ivar Kvaal
▼一层平面图 ©Snøhetta
▼二层平面图 ©Snøhetta
▼九层平面图 ©Snøhetta
▼顶层平面图 ©Snøhetta
▼立面图 ©Snøhetta
▼剖面图 ©Snøhetta
Location Address: Dokkvegen 11 Municipality: Porsgrunn, Norway Client R8 Property
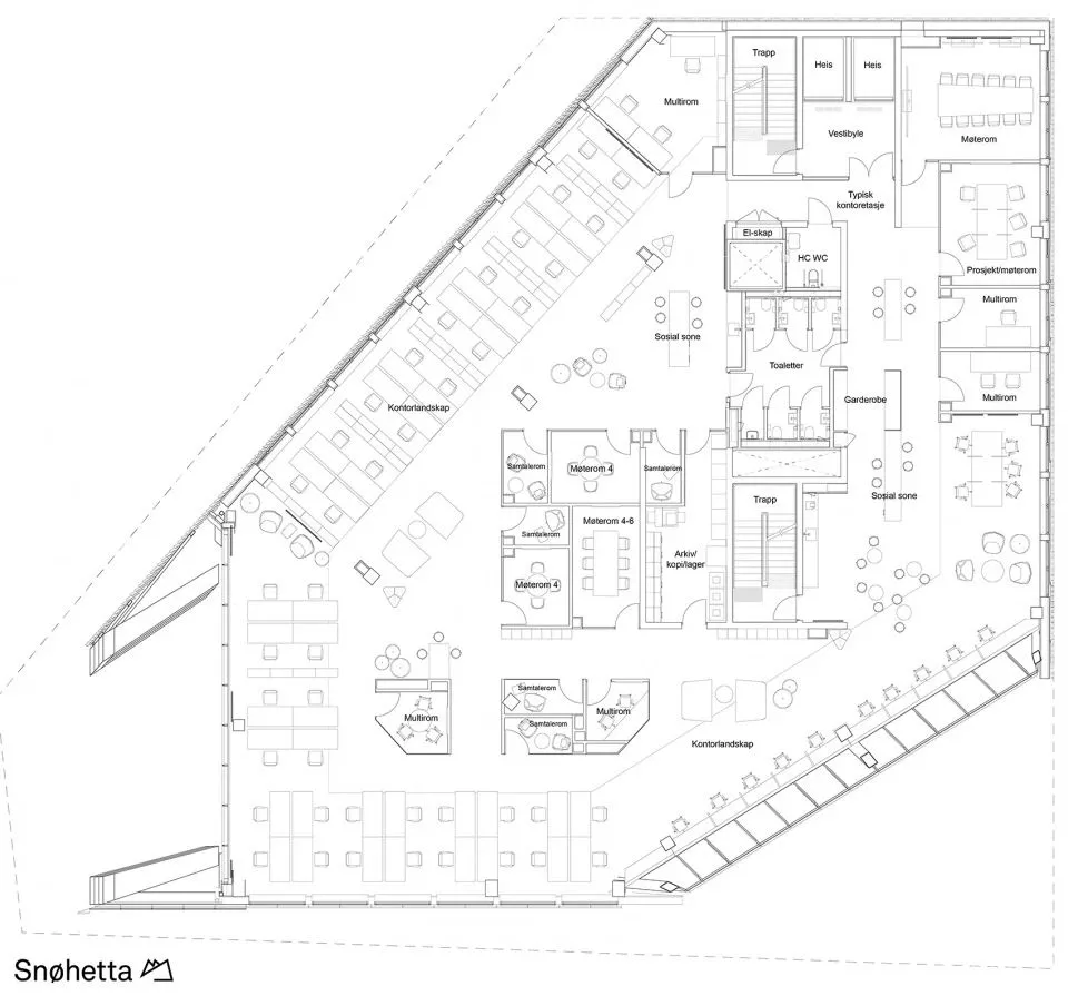
Timeline Building stared in Sept. 2018-handover 3 August 2020 Collaborators Turnkey Contract: Skanska Architect: Snøhetta Interior architect for 1st, 2nd, 4th floors, including restaurant and conference center: Snøhetta Landscape: Snøhetta Technical Design: Skanska teknikk and Asplan Viak Functions 11 story office building (no basement to reduce the amount of concrete) Plan 1 Barception, gym, co-working spaces, and technical rooms Plan 2 Co-working Plan 3-8 office space, free seating-clean desk principle Plan 9 Staff restaurant for all tenants Plan 10 Conference center/meeting rooms Plan 11 Rooftop terrace and technical rooms
Size: Gross: 7931 m2 Net: 8403 m2 Plot size: 3580 m2 Energy performance256000 kWh per year Solar panel surface (in total) : 1482 m2 Certifications: BREEAM Excellent 72, 88%points


?