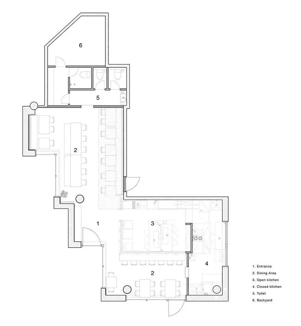
IZUMI Charlottenlund是丹麦哥本哈根一家餐厅的室内设计项目。IZUMI是一家连锁餐厅,供应北欧风味的日本料理,在大哥本哈根都市区内有数家分店。为了打造新的品牌形象,塑造空间形象,表达餐厅概念。通过设计将IZUMI的品牌宣言“Nordic twisted Japanese”成功地转化为具象的空间体验。
日本和北欧的文化交流历史悠久。特别是在设计领域,有很多源于日本的文化产物最终在北欧发展壮大。设计师正是从斯堪的纳维亚半岛和日本文化的交融中汲取灵感,打造出IZUMI品牌独特的概念。
▼丰富的木质元素来源于两种文化

