Artem Babayants认为建筑从诞生开始就围绕着我们,它让我们的生活充满魅力,激发灵感。
是传统奢侈品演化下的一种催生概念,更是人们对于品质生活的一种追求与向往。
因此对于空间的规划,不再千篇一律,而是根据使用者的真正需求、每个空间的特征来对空间进行个性化专业化的规划,使生活与空间融合交织,相映得彰。
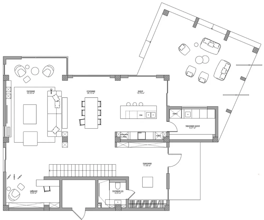
会客区通过家具,来形成了一个围合区域。在心理上提供了安全感和私密感。
各区域独立而又相互连通,功能分区明确但又没有冷硬的分隔。色系的碰撞也像一首欢快的乐曲,将一切融在一起。
用餐区选在了明亮的落地窗前
。让与家人围坐用餐的珍贵时光,或沐浴在阳光中,或沉浸在夜色里。
纯白人造石做台面的岛台除了用来收纳和制作冷餐烘培类食物,还起到了分隔空间的作用。
直梯下方的空间很大,做成了一个小书房。这里把多余的空间放置书架或者书桌用来阅读学习,是心灵回归宁静的一片小天地。
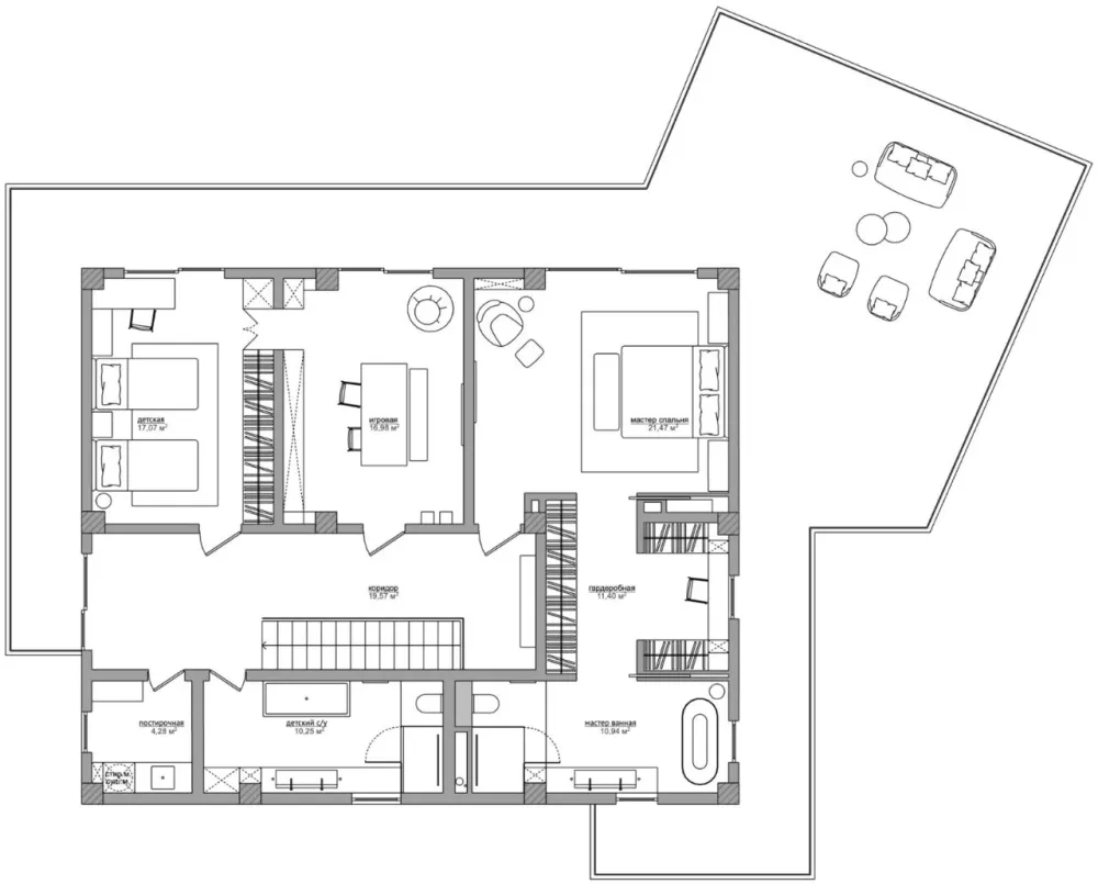
衣帽间的设计选择了低饱和度的色彩和硬朗的直线造型,打造出商务精英式的感觉。
卫浴间的借用大理石的纹理,打造了一个非常丰富的设计空间。悬空洗手台简约实用,同时也兼顾到了干湿分离。

