将面积有限的公寓拓展出功能
透过明亮色彩烘托时尚氛围
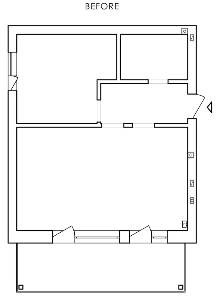
但也只是中规中矩的的一居室小户型
原本的采光面被阳台隔断门占据
甚至还能拥有视野开阔的公区和休闲阳台
拐入客厅,便是温润木质
简约的 L 型沙发形成清晰功能划分
深色柜体围合成的餐厨区
形成视觉重心,打破沉闷感
由阳台拓展出的次卧用玻璃门做隔断
让室内光线得以自由流转
白色吊柜与天花形成连续视感
下半段拼接木饰面,营造自然氛围
主卧以黑色壁纸打造空间主题
满足收纳需求,同时也形成拉阔空间尺度
顶部线性吊灯带出工业气息
温馨惬意,满满 Ins 风
卫生间配色与厨房相呼应
平时可以将洗衣机隐藏起来
热水器也同样被藏在吊柜里
装有灯带的收纳格简单实用

