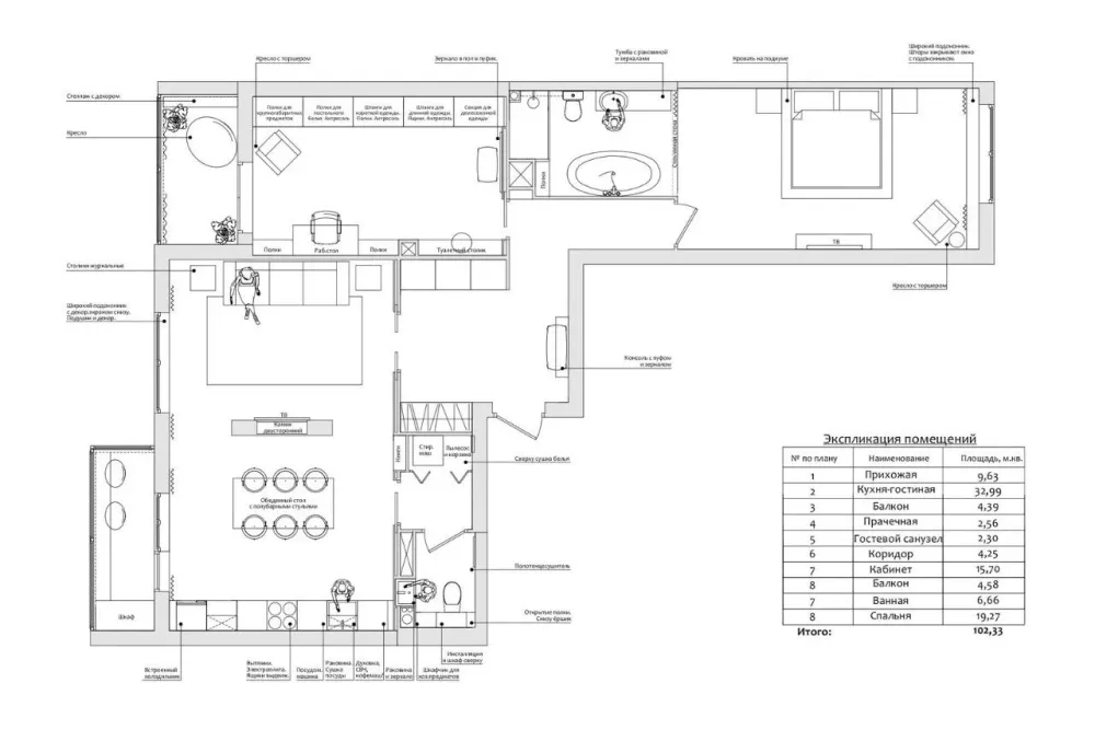
102㎡的公寓,由Plan A设计,业主是一位年轻女性,设计师利用浅灰色搭配金属色,营造出顶级轻奢质感,更为雅致迷人。
客厅没有过多杂色,以纯净的浅灰为主调,再以简约的金属灯具加以点缀,让空间简练之中不乏品质感。
灰色的沙发墙板,在光线的映衬下,营造出极富光泽感的视觉效果,金色的边几和落地灯架
,打破灰调的宁静,带动起空间活力的氛围。
电视背景墙把餐厅厨房分隔开,不影响整体的通风与采光。此处延续客厅的设计风格,以灰色为基底,以金属为点缀,尽显奢雅高贵。
利用阳台打造的工作休闲区域,光线充足,看着视觉上还是让人感觉挺放松,让自己除了工作之外还有生活。
小小的洗衣间隐藏在折叠门后,门的颜色和墙一样,融为一体
卫生间,白色和灰色搭配的墙,一种现代、亲切的美感。
主卧采用浅灰色的背景,以金色线条勾勒,搭配木色地板,打破了灰色的单调,丰富了空间层次,彰显出沉稳雅致的空间格调,静静享受悠闲时光。
主卫通过规划分割,完美实现功能与美感的结合,盎然有趣。
大大的衣帽间让人眼前重新一亮,拥有足够收纳,又不失美感,可悬挂的衣架与储物柜结合,内嵌灯带的设计,每一个格子都有它专属的物品摆放。
卧室阳台,摆放一个书架,不管是看书、小憩,都能够有更私密的空间,不会受到别人的打扰。
Elena Ivanova
Elena Ivanova,相比于许多“表层”的设计,她更擅于将空间代入“概念化”,从色彩、造型到材质的选择,全部从细节出发,让艺术弥漫室内。
zvezdnaya lcd
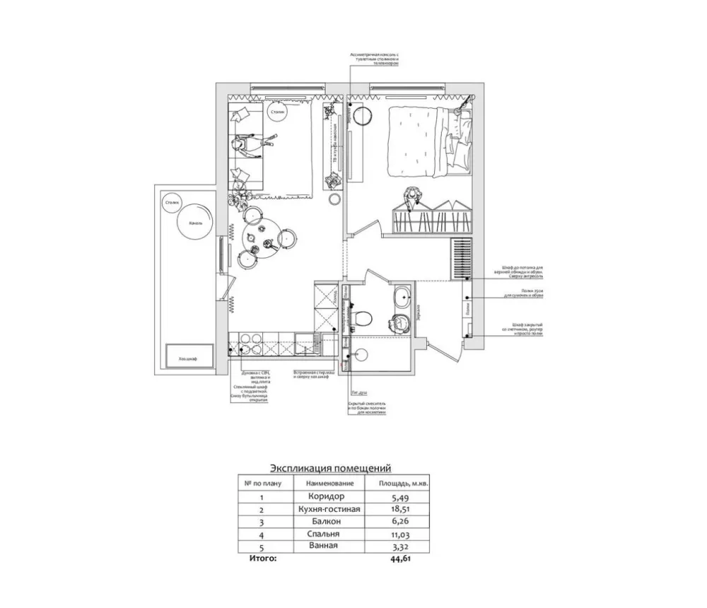
44㎡的小公寓,由于空间面积小,设计师便舍弃了过多装饰物的使用,仅保留生活必备的功能物品,以色彩的搭配塑造亮点,灰色 粉色,纯净而饱满的色彩交织出视觉上的丰富感。

