“我们的眼睛是生来观看光线下的各种形式的 。
基本的形式是美的形式,因为它们可以被辨认得一清二楚”
— Le Corbusier
DESIGN THINKING
“一个不显眼的位置,周边街道店铺形象混乱,如何让消费者看见-展示自身独特性是设计策略的重要内核”
在形形色色夹杂着浮躁的商业环境下,品牌的独特性与持久性更需要我们去思考;商业空间的体验感成为与消费者最直接的交流载体,让woood“做自己”是我们与业主不谋而合的想法。
*woood*是一家不被定义的集成店,包含咖啡,服装,饰品等周边产品,年轻的新生品牌。业主的诉求是呈现出与周边不一样的品牌新貌,建立这个品牌的力量。设计师希望通过空间视觉,空间情绪去传递出品牌的力量。
Free expssion
设计师尝试在体块/表面/平面基本空间维度探讨关于woood的可能性,去刻画woood温暖的空间表情;原空间面积较为局促,进深狭长,光照不佳,设计师用体块化的方式整理空间的功能属性,清晰且好辨认,让消费者最直接去感知空间,随意且自由。
Chase the light
设计师用天井的概念植入室内,让光在空间转换不同的功能属性,条形灯契合空间狭长形态且担当视觉指引,与镜面结合加深延伸感与纵深感,让表面的所有都适应于功能的需要而存在。
结构趣味与光影是我们表达空间情绪的载体,带着功能属性的结构在空间错落分排,“黑色烟囱天井”在空间是抓眼的存在,在室内植入建筑的概念,黑色的尽头是一片蓝,空间的色彩都在为一片蓝准备着,留下品牌印记。
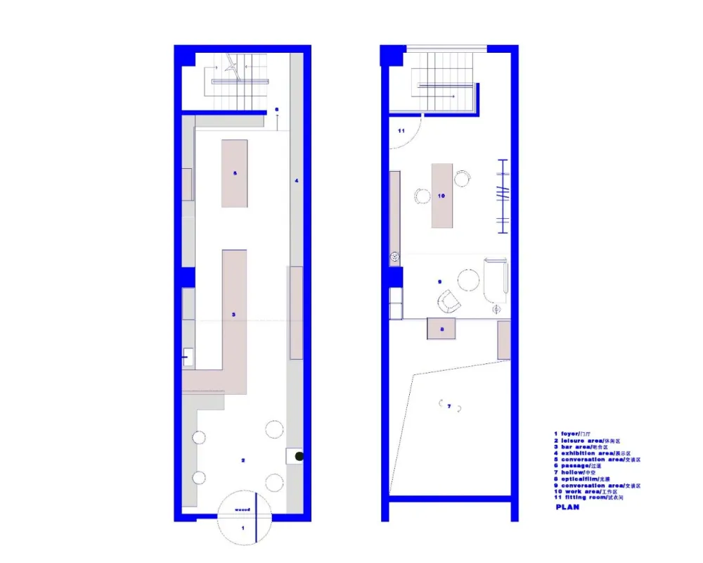
plan of wood
空间中木质感是核心元素,与光影的集合更加强化温暖的空间情绪,大量留白的白色肌理质感,让呼吸的范围更广,更惬意,且产生强烈的温暖感。我们探讨多种消费形态变化的可能,关于空间属性的重叠,一人至多人在空间中不同的行为模式,提供相对应的空间属性。
二楼为办公区域,兼带会客功能与时装展示,放松与自由是二楼的空间情绪。
在材料的设计上,我们将自然木质感/皮质感/肌理布艺进行碰撞,体现材料本身的张力,结合灯光的重要性去展现工作室舒适的状态。
“去寻找更接近真实原因的美,而不是循规蹈矩和麻木的复制”
项目名称:WOOOD集成店-大方笑作服装工作室
设计公司:Studio V3
设计时间:2019年10月
竣工时间:2020年5月
摄影:山外视觉 – apink
关于STUDIO V3
STUDIO V3的延伸意义: V 3=VOICE 3;方形 圆形 三角形为基础元,这三个基础形态是原始的出发点,设计的一切都这里开始,并在此找到设计的无限性和归宿,倾听几何美学的声音; V3视觉设计的形似一盏灯体,蕴含我们的第二个概念: BE A LIGHT,让光带来情绪,带来温暖。
我们的工作范围涉及 室内设计、软装设计、家具、产品及周边领域;专注于功能痕迹、美学痕迹、情感痕迹;旨在为客户带来具有生命力的空间感或者还原无法具体描述但曾经历过的美好体验。

