项目名称 | 公元壹品
项目地址 | 绍兴柯桥
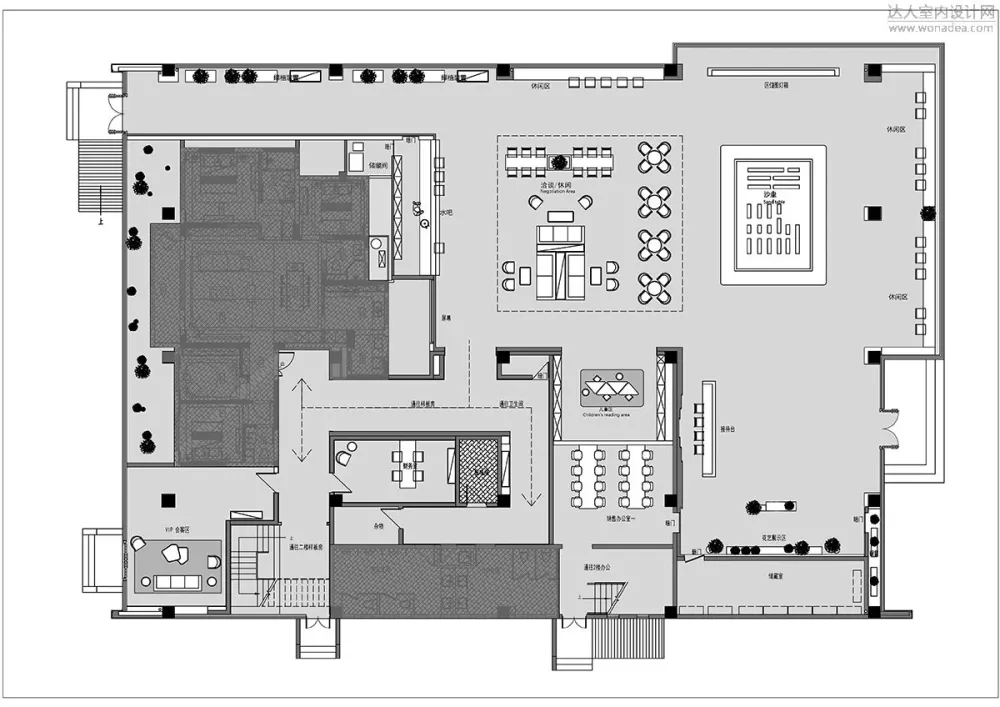
项目面积 | 售楼处-740㎡ 样板房-135㎡
设计公司 | 大器空间
硬装团队 丨 王权 潘文斌 童泽秉 冯彩彩 刘巧莉
软装团队 | 贺芳波 冯珏 王欣 陈文姝 胡奇远
室内摄影 | 刘鹰 顾一坡
从销售中心到未来社区中心的演变,是当下地产业的发展趋势。围绕生活的多样性,将空间的“共享性”贯穿其中,使其更加融入城市肌理与公共日常生活,相应而生的是一种不同以往的新的文化空间,从而表达对未来社区生活方式的理解与传递。在空间中融入生态花坊、休闲书吧、咖啡吧、童梦空间等多元功能区,让商业空间变为身心放松的休闲文化场馆。一杯咖啡,一本好书,忙碌的时光里寻得片刻宁静,无论外界如何喧嚣熙攘,这里始终提供着一种宁静、舒适的氛围。
A ECOLOGICAL FLOWER HOUSE
进入前厅,映入眼帘的便是专属打造的生态花坊,这里千姿百态,争妍斗艳的鲜花和葱郁的绿植,好似走进了一间花房,流淌着返璞归真的自然气息。一下子拉近了人与空间的距离,心情也随之愉悦起来。
A LIFE AESTHETICS MUSEUM
洽谈区以色彩感知空间,浅色的基调以 深邃绿 为点缀,从而去洞察生活,对未来的生活方式加以解读与诠释,让洽谈契合自然的美好,静享一刻平静意境。
A CUP OF STRONG COFFEE
LEISURE BOOK BAR
于林中阅读享午后之惬意
蓬勃的绿植营造自然舒适的氛围,仿佛置身于林中阅读,书香若隐若现。沿窗的吧台也是个休闲的好去处,阳光正好的午后,落地玻璃窗前,一杯咖啡,一本书,享受一段惬意时光。
CHILDRENS DREAM SPACE
满墙的彩色绘本与童趣玩意儿,吸引着好奇心满满的孩子们,造型圆润、谐趣十足的儿童桌椅,可供孩子们阅读绘本及各类儿童教育、亲子活动。墙面卡通造型的仙人掌装置希望孩子们对知识的渴望如植物对雨水的渴求。
ART COMES FROM LIFE
生活源于自然,艺术源于生活,沙盘区在寻觅纷扰的都市中,唤起最纯粹的记忆空间和开放自由的气息,创造生动的艺术社区。
生长衍生出人与城市、 人与自然相融
在这个复合功能的生活美学馆中
汇集了生活的艺术与智慧
创造一处让心灵停泊的空间
———— 在自然的生活中流淌 ————
客厅以黑白灰为主色调,以橘色点缀使原先沉闷的空间更显灵动,白色大理石电视背景墙,柔润的光泽使区域更为通透明亮。开阔的客厅空间,打造宜人尺度,聚会、娱乐、休息多种功能切换满足家庭使用的丰富需求。
主卧延续主基调橘色,家具方面以皮质搭配深沉木饰面,凸显出主卧应有的品质与气场,在卸下光环或疲惫,回归独属的静谧时光之时,读一本好书,或写下一段心情,希望充盈。
或许,内心早已厌倦了漂泊,所以才如此的青睐于每一个午后的时光。那份安然,那份静谧,让曾经粗糙而坚硬的灵魂,变得日益清澈温软,曾经的忧愁与悲伤,也在温润如玉的午后的时光中,化作片片碎玉,随风而逝-
空间创意中心|品牌中心|软饰中心|禾器中心|匠器中心
秉承|创意 效率的服务理念
致力|向业主提供专业的国际化的设计服务
提供|专业空间解决方案
大器空间创始人 设计总监 戚晓峰

