项目名称:无极之家 项目地址:南京/翠屏湾花园城 主创团队:云行设计 设计周期:2019.03-2019.05 建筑面积:4室2厅2卫 210㎡
施工造价:约95万(不含电器和土建)
主要材料:Topciment涂料、IG LIGHTING灯光、萨米特瓷砖、铁板、地板、石皮
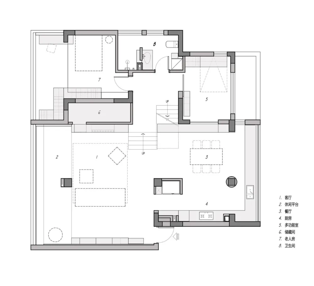
原复式房屋有两层空间四层错位,打开原来相对独立的空间格局,强化楼梯在空间中雕塑体块。初以深色定基调,灰色辅助贯穿,在统一中寻找不同质地的材料,控制光线和材质的变化,局部深入细节呈现细致度。设计师希望塑造出多种材料形体组成的具有深度和复杂性的和谐居住体验空间。
入户即开阔,黑色柜体反转顶板界定空间分割关系,超大柜体容量日常收纳,金色悬挑隔板渲染入户仪式感;家具放置出轻松状态,电视柜体和玄关柜体共同围合出空间稳定感,打开柜门可进入提前规划出来的家用储物间;
透过百叶窗过滤的光线落于天然石皮上,塑造空间情绪上变化和色彩肌理的平衡;
体块做为表达元素楼梯,几何堆叠层次将黑色延续连贯,在楼梯的步进过程中,和柜体墙体及天花串联引导至屋顶露台,扶手玻璃或铁线在光线的变化下营造不同结构层次。
客厅和厨房之间的体量分离出区域关系,利用柱体包覆住冰箱连接餐厅和客厅,厨房区域的柜体延续至窗边转至楼梯,兼顾餐厅日用收纳;
餐厅最大化面向厨房和客厅,充足的光线氛围下餐椅的跳色作为空间强调的变化元素,厨房对面的多功能房可在临时客房和孩子的娱乐区间方便切换;
第一层级空间,LDK一体保持开放流动,南向阳台利用反梁的高差结合地板材质塑造地台作为户外和是室内的缓冲空间,公共区域的改造直接暴露出房屋结构,顶面的建筑梁柱体和楼板也未作装饰,灰色天花让空间沉静,木色地板铺装协调温度,深色柜体、石皮、黑镜增加材质深度,而黑色电动百叶加深了立面的阴影感。
由楼梯串联起的第二、三层级作为卧房区域,卧房从需求内容出发,以实用功能为基础,主卧房延续整体的色调,床头柜体结合灯光和控制开关,结合光影的变化,利落有序。主卫镜柜悬挑于固定窗前,光线可以柔和补充引入,衣帽间在整体深色的围合中.

