这是一套带庭院的三层别墅,屋主是一对85后,宝宝还小,父母也同住。忙碌的工作之余,夫妻俩最喜欢待在家陪孩子玩耍、跟爸妈聊天,一起看电影、健身,减压治愈的家总能让人满血复活!
房子原始的结构比较零碎,动线也不太舒适,无法很好地满足屋主的生活需求。设计师从“采光通风,动线优化,家庭互动性”的考量上,重新进行规划。
全开放的客厅与餐厨,增加家人间的情感链接;改造楼梯,打通楼层之间的光线通路;而大尺度的起居套间照顾到独处的需要,身心得以放松,生活也变得丰富而饱满……
一楼客厅挑高,大面积的落地窗引景入室;为了营造更好的互动性和通透感,二楼也做了玻璃墙体,两层空间隔而不断。
原始结构中存在的梁和柱都隐藏在了设计中,对线与面进行简化处理,同时用清浅的色彩减弱它们的存在感。
高达两层楼的玻璃窗引入充足的自然天光,不同季节和时间为空间带来变幻的表情。
从二楼看向一楼,不同的材质平衡空间冷暖;利落大气的石材,柔软舒适的布艺,再加入壁炉的温暖火光,互相渗透为一个整体。
本着自然、舒适、淡雅的原则展开空间层次,材质的细分既能满足功能又能体现其本真质感。
我们把客厅与餐厨相连,打造成可会客、可用餐的社交厅。家人们在这里交谈、工作、游戏、阅读、用餐……丰富而生动的场景,正是屋主想要的生活状态。
屋主一家饮食偏西式,以少油的健康轻食为主,所以直接打开厨房设计成中西结合的餐厨空间。
女主人想要的中岛吧台,我们用了10mm的薄岩板来打造,简洁轻盈;搭配优雅的高脚吧椅,既体现形式美又保证功能性。
橱柜结合了中式与西式的设计,厨电都嵌入柜体,整体外立面非常简洁,不但匹配现代简约的风格,也便于后期清洁。
楼梯全部重做,改造之后的楼梯不再是笨重的功能件,光影交错,有种优雅的科幻感。
我们用简洁的钢结构 木踏步 玻璃护栏,打造出贯穿3个楼层的艺术装置;每层踏步安装灯带,拾级而上,保证安全的同时营造艺术氛围。
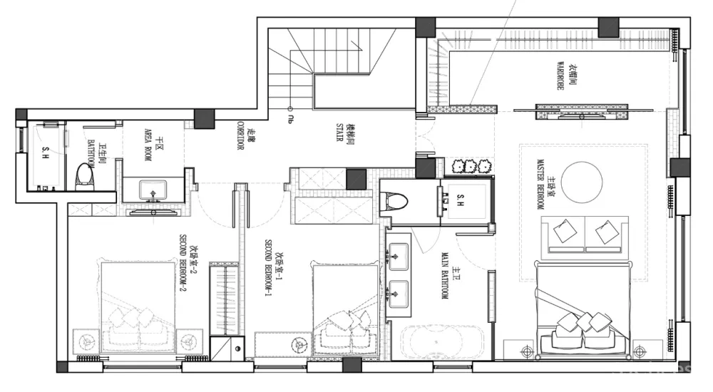
二楼是私密的起居室,经过墙体的改造,主卧形成一个集卧室、衣帽间、大浴室于一体的套间,让主人有了一个属于自己的私密生活区。
通透的玻璃隔断,纤细的不锈钢门套,隐形踢脚线…… 柔和的整体色调却保留着非常丰富的细部设计。
艺术造型的鱼线吊灯,暗藏温柔与浪漫。柔和的光线灯光带给人安宁、放松的心境,可以更好地与自己相处。
我们为简洁的衣帽间加入了“开放”元素,让主人的心头好可以大方地展示于外,容易找到,拿取也更方便。
卫生间由深浅不同的灰调组成,双面盆双镜柜,独立的马桶和淋浴间,私密空间带来的舒适和放松,是对自己最好的犒赏。
造型优雅的五金件是打造高级感的神器,精致的手感、舒服的水流和方便的台几,每一个精心处理过的小细节都能让人感到美好。
用防腐木与户外家具打造出一个露天咖啡吧,喝下午茶或者是休闲、读书都十分惬意;与自然比邻而居,于都市里,给自己建一处桃花源。
无论是慵懒的清晨,还是悠闲的傍晚,都可以与家人共享自然的美好;不必苦苦追寻都市里的净土,因为它就在这里,触手可及。
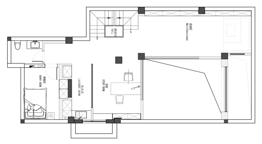
多功能、可扩展的「工作区」
负一楼包含保姆的起居室、洗衣房、书房,还有未来的健身活动区。
随着孩子的成长,家庭的需求也会改变,“可扩展性”的空间能够匹配人生阶段的变化。
开阔通透、交互共享的「社交厅」
一楼打开了原有的墙体隔断,空间的联动让人与人之间也有了更多的互动。
舒适流畅的生活动线,能够形成更为丰富的生活场景,带来欢乐治愈的体验。
功能齐全、适合独处的「私密空间」
将主卧变成一个集“卧室、衣帽间、浴室”于一体的超尺度大套间,不会被外界影响。
在这里每位家庭成员都拥有属于自己的小天地,能够更大程度满足居者独处的需求。
项目地点丨中国上海· 青浦区
设计团队丨赫设计 Huerne Space Design
使用材料丨玻璃、瓷砖、大理石、 木地板
HUERNE DESIGN 做有温度的设计 实现有情感的家

